Translate with 
MENU ZAVŘÍT

Pronájem obchodních prostor, Ostrava (ID 344-NP00717)

ulice 28. října, Ostrava – městská část Moravská Ostrava a Přívoz mapa

35 000 Kč (bez DPH, za měsíc)
GMimořádně
nehospodárná

60 m2

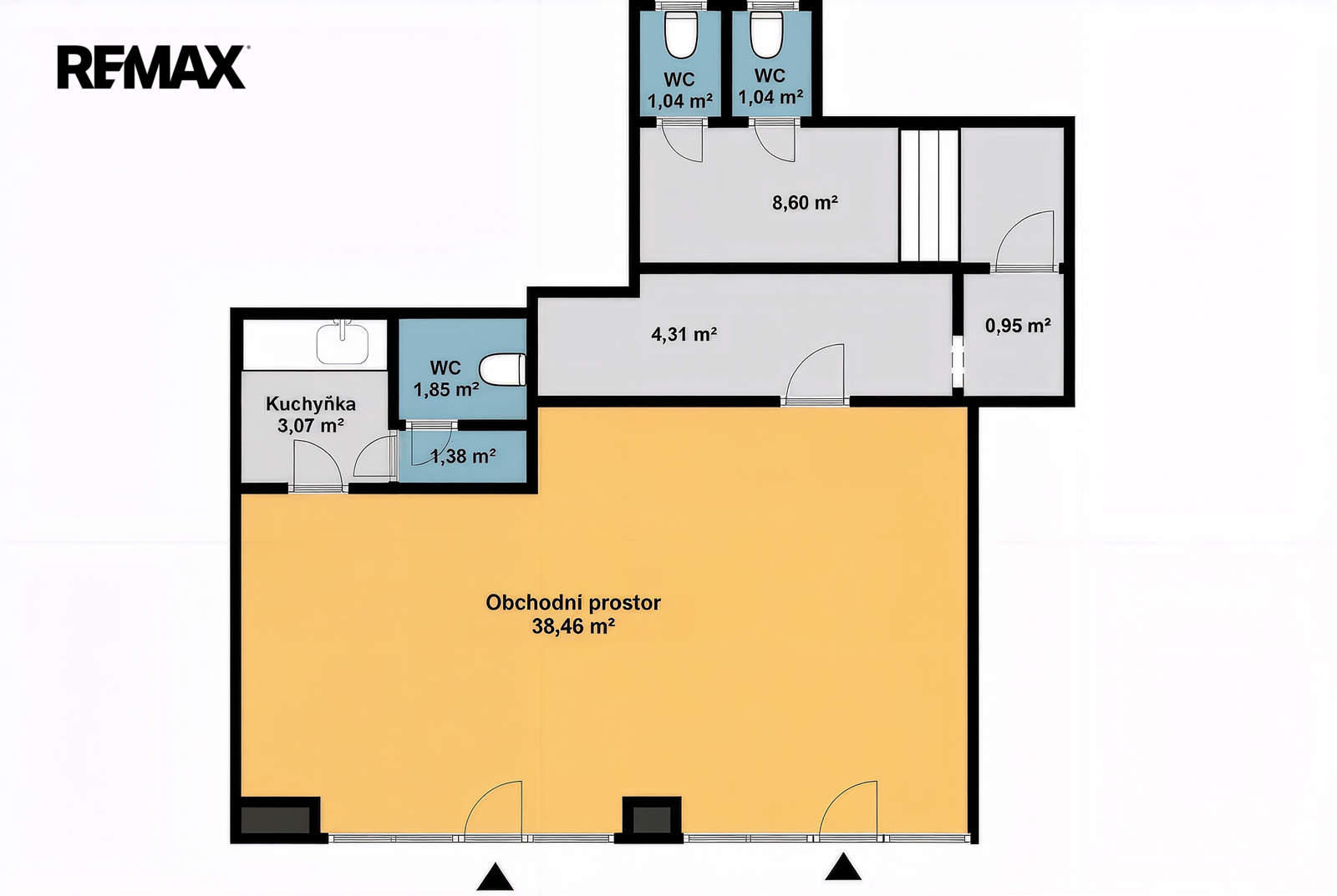
Pronájem komerčního prostoru, 60 m2, centrum Ostravy

Nabízíme k pronájmu atraktivní komerční prostory v jedné z nejvyhledávanějších lokalit centra Ostravy, v bezprostřední blízkosti Masarykova náměstí.
Prostory o celkové výměře 60 m² se nacházejí v přízemí a disponují přímým vstupem z frekventované ulice 28. října, což zajišťuje vysokou viditelnost a přirozený pohyb potenciálních klientů.
Dispozice zahrnuje hlavní obchodní místnost, zázemí vhodné jako sklad nebo šatna, kuchyňku a tři samostatné toalety. Prostor je ideální pro provoz prodejny, kanceláře či poskytování služeb.
Měsíční nájemné činí 35 000 Kč + DPH.
Vratná kauce ve výši tří měsíčních nájmů.
Prostory jsou k dispozici ihned.
V případě zájmu o více informací nebo sjednání prohlídky nás neváhejte kontaktovat.
Pronajímající si vyhrazuje právo vybrat nájemce na základě jím zvolených kritérií.
Cena:
35 000 CZK / za měsíc
David Patera
REMAX Easy
28. října 1610/95
Ostrava, 70200
Česká republika
Tel. na makléře: +420 725 878 423
Tel. do kanceláře: +420 722 484 787
E-mail: david.patera@re-max.cz

Potřebujete poradit/máte zájem o prohlídku?

* – toto pole je nutné vyplnit

Podrobné informace

Číslo zakázky:
ID 344-NP00717
Typ nemovitosti:
Komerční prostory
Druh prostor:
Obchodní
Číslo podlaží:
1
Počet podlaží v objektu:
5
Druh objektu:
Smíšená
Stav objektu:
Velmi dobrý
Charakter okolní zástavby:
Obchodní
K nastěhování:
22. 4. 2026
Doprava:
Vlak, Silnice, MHD, Autobus
Odpad:
Kanalizace
Plyn:
Plynovod
Typ domu:
Patrový
Umístění objektu:
Centrum obce
Voda:
Dálkový rozvod
Energetická náročnost budovy:
G