Translate with 
MENU ZAVŘÍT

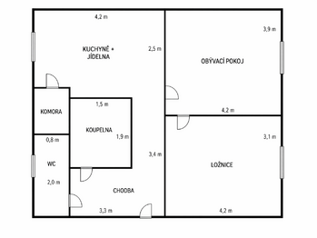
Pronájem bytu 2+1 v osobním vlastnictví 60 m², České Budějovice (ID 111-NP08796)

ulice Jeremiášova, České Budějovice – část obce České Budějovice 3 mapa

14 000 Kč ( za měsíc)
GMimořádně
nehospodárná

1x
2x
65 m2
4/0
Exkluzivně

Pronájem bytu 2+1, 60 m² – Jeremiášova ulice, České Budějovice

Nabízíme k pronájmu byt o dispozici 2+1 a celkové výměře 60 m², který se nachází ve 4. patře revitalizovaného domu bez výtahu v Jeremiášově ulici v Českých Budějovicích.

Byt prošel částečnou rekonstrukcí, je udržovaný a je orientovaný na dvě světové strany, díky čemuž nabízí příjemný výhled do zeleně – na jedné straně do klidného vnitrobloku, na druhé směrem k parku. Lokalita tak zajišťuje tiché bydlení bez rušivého hluku z ulice.

K bytu náleží sklep a k dispozici je také balkon umístěný v mezipatře domu. Vstup do domu je z vnitrobloku, kde je možné posedět na lavičce v klidném prostředí. Parkování je zajištěno přímo ve dvoře, kde je dostatek místa.

Byt se nachází v lokalitě s výbornou dostupností do centra města a kompletní občanskou vybaveností v okolí, včetně velmi dobrého dopravního spojení.

Měsíční nájemné činí 14 000 Kč, zálohy na služby jsou ve výši 3 000 Kč. Kauce je stanovena ve výši jednoho měsíčního nájmu. Byt je vhodný pro 2–3 osoby, majitel preferuje nekuřáky a zájemce bez domácích mazlíčků. Upřednostněn je dlouhodobý pronájem.

V případě zájmu o prohlídku nás neváhejte kontaktovat.
Pronajímající si vyhrazuje právo vybrat nájemce na základě jím zvolených kritérií.
Cena:
14 000 CZK / za měsíc
Poznámka k ceně:
+ 3000,- Kč zálohy na energie
Ing. Karel Exl
REMAX Dynamic
Kanovnická 75/4
České Budějovice, 37001
Česká republika
Tel. na makléře: +420 724 832 802
Tel. do kanceláře: +420 725 910 910
E-mail: karel.exl@re-max.cz

Potřebujete poradit/máte zájem o prohlídku?

* – toto pole je nutné vyplnit

Podrobné informace

Číslo zakázky:
ID 111-NP08796
Dispozice:
2+1
Číslo podlaží:
4
Užitná plocha:
60 m²
Druh objektu:
Smíšená
Stav objektu:
Dobrý
Vlastnictví:
Osobní
Typ nemovitosti:
Byty
Charakter okolní zástavby:
Obytná
K nastěhování:
24. 4. 2026
Doprava:
Vlak, Silnice, MHD, Autobus
Odpad:
Kanalizace
Podlahová plocha:
65 m²
Zastavěná plocha:
2 015 m²
Plyn:
Plynovod
Telekomunikace:
Internet
Umístění objektu:
Centrum obce
Voda:
Dálkový rozvod
Vybaveno:
Ano
Energetická náročnost budovy:
G