Translate with 
MENU ZAVŘÍT

Pronájem obchodních prostor 479 m², Ostrava (ID 344-NP00718)

ulice 28. října, Ostrava – městská část Moravská Ostrava a Přívoz mapa

100 000 Kč ( za měsíc)
ENehospodárná

479 m2
Exkluzivně

Pronájem komerčního objektu v centru Ostravy o užitné ploše 479 m2

Nabízíme k pronájmu prostornou komerční nemovitost v samotném centru města, přímo vedle hotelu Imperial. Prostor je vhodný pro obchod, restauraci, kanceláře či sídlo společnosti.
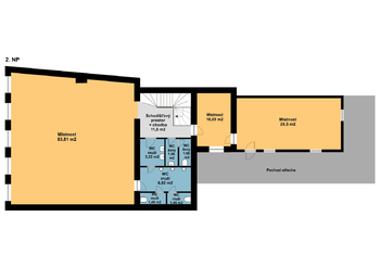
V přízemí o užitné ploše 205 m² se nachází otevřený prostor, dámské a pánské WC a menší sklad. První patro o ploše 150 m² nabízí dvě velké místnosti, spojovací prostor, dámské a pánské WC a vstup na střechu, kterou lze využít jako terasu. V podkroví o ploše 124 m² je k dispozici prostorná předsíň, tři samostatné místnosti, WC a malý sklad.
Budova je vybavena vzduchotechnikou a klimatizací. Za objektem se nachází pozemek vhodný k parkování až šesti vozidel, přičemž jednotlivá parkovací stání lze pronajmout za 2 000 Kč + DPH měsíčně.
Pronájem je možný ihned. Prostor je nabízen ve standardu Shell & Core, tedy ve stavu určeném k individuálnímu dokončení nájemcem. K dispozici je připojení na vodu a elektřinu, veškeré další úpravy jsou na náklady nájemce.
V současnosti je možné pronajmout buď pouze přízemí prostor o výměře 205 m² za 65 000 Kč měsíčně, prostor v 1. NP přístupný po schodech přímo z ulice, o výměře 150 m² za nájemné ve výši 29 000 Kč měsíčně, nebo celý objekt o celkové ploše za 100 000 Kč měsíčně.

Nemovitost nabízí atraktivní polohu a flexibilní možnosti využití pro různé typy podnikání. Fotografie v inzerci obsahují vizualizace, které slouží pouze k ilustračnímu znázornění možného budoucího využití prostoru.
Pronajímající si vyhrazuje právo vybrat nájemce na základě jím zvolených kritérií.
Cena:
100 000 CZK / za měsíc
David Patera
REMAX Easy
28. října 1610/95
Ostrava, 70200
Česká republika
Tel. na makléře: +420 725 878 423
Tel. do kanceláře: +420 722 484 787
E-mail: david.patera@re-max.cz

Potřebujete poradit/máte zájem o prohlídku?

* – toto pole je nutné vyplnit

Podrobné informace

Číslo zakázky:
ID 344-NP00718
Typ nemovitosti:
Komerční prostory
Druh prostor:
Obchodní
Číslo podlaží:
1
Počet podlaží v objektu:
3
Plocha kanceláří:
479 m²
Druh objektu:
Cihlová
Stav objektu:
Velmi dobrý
Charakter okolní zástavby:
Komerční
K nastěhování:
22. 4. 2026
Doprava:
Vlak, Silnice, MHD, Autobus
Elektřina:
230 V, 400 V
Občanská vybavenost:
Škola, Školka, Zdravotnická zařízení, Pošta, Supermarket, Kompletní síť obchodů a služeb
Odpad:
Kanalizace
Užitná plocha v přízemí:
220 m²
Plyn:
Plynovod
Počet parkovacích míst:
6
Telekomunikace:
Telefon, Internet
Typ domu:
Patrový
Voda:
Dálkový rozvod
Energetická náročnost budovy:
E