Translate with 
MENU ZAVŘÍT

Pronájem jiných prostor 174 m², Rychvald (ID 130-NP03569)

ulice Vléčná, Rychvald mapa

29 000 Kč ( za měsíc)
GMimořádně
nehospodárná

395 m2

Pronájem domu, 174m2, Rychvald

Nabízíme k pronájmu dům, situovaný na ulici Vléčná, v klidné rezidenční čtvrti Rychvaldu.
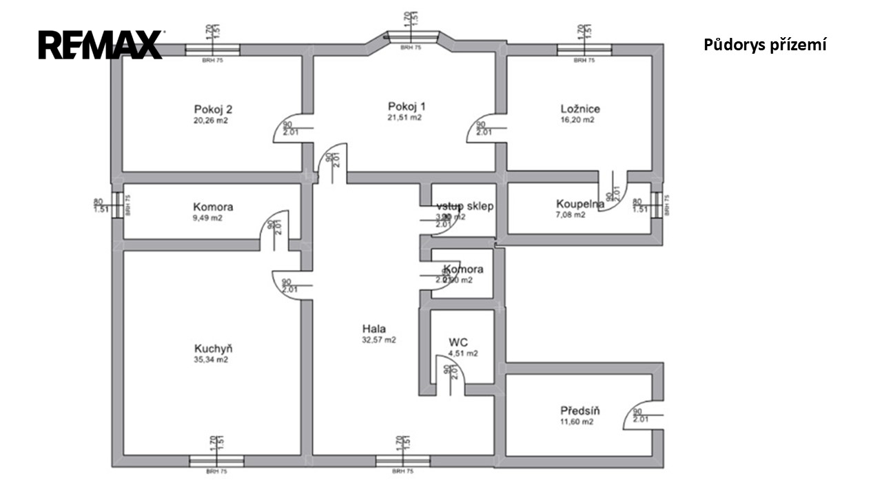
V domě jsou dvě samostatné jednotky, každá s dispozicí 3+1. Jednotka v přízemí má plochu 86m2, která může sloužit jak pro bydlení nebo jako kancelář či sídlo firmy, jednotka v 1.patře má plochu 88m2, a může sloužit jako byt pro majitele firmy nebo zaměstnance. Jednotky jsou po rekonstrukci - nová elektroinstalace, omítky a výmalba, podlahy, plastová okna, a další. Jednotky mají samostatné vchody i měřidla spotřeby energií. Vytápění je řešeno ústředním vytápěním samostatným plynovým kotlem pro každou jednotku zvlášť, vč. ohřevu TUV.
U domu je dostatek možností parkování: garáž pro 2vozidla, kryté parkovací stání pro 2vozidla, a dále přilehlé plochy se zámkovou dlažbou. Přilehlou zahradu je možné užívat.
V blízkosti domu veškerá občanská vybavenost – MHD, obchody, škola, školka i služby.
Velkou výhodou je klidné okolí a výborná dostupnost do okolních měst (Orlová, Bohumín, Ostrava).
Nájemné: 29.000,- Kč / měs.
Zálohy na vodné: 500,- Kč/osoba/měs.
Kauce: 58.000,- Kč
Provize RK: 29.000,- Kč
Dům je k dispozici ihned. V případě zájmu o více informací nebo domluvení prohlídky mě neváhejte kontaktovat.
Pronajímající si vyhrazuje právo vybrat nájemce na základě jím zvolených kritérií.
Cena:
29 000 CZK / za měsíc
Poznámka k ceně:
+ služby, vratná kauce 2x měs.nájemné, provize RK 1x měs.nájemné, energie přepisem na nájemce
Lukáš Dulava
REMAX Elite Reality 2
Dělnická 752/78
Havířov - Prostřední Suchá, 73564
Česká republika
Tel. na makléře: +420 731 633 328
Tel. do kanceláře: +420 733 373 964
E-mail: lukas.dulava@re-max.cz

Potřebujete poradit/máte zájem o prohlídku?

* – toto pole je nutné vyplnit

Podrobné informace

Číslo zakázky:
ID 130-NP03569
Typ nemovitosti:
Komerční prostory
Druh prostor:
Jiné
Počet podlaží v objektu:
2
Plocha kanceláří:
174 m²
Druh objektu:
Smíšená
Stav objektu:
Velmi dobrý
Charakter okolní zástavby:
Obytná
K nastěhování:
24. 4. 2026
Doprava:
Silnice, MHD, Autobus
Elektřina:
230 V, 400 V
Garáž:
Ano
Ostatní rozvody:
Kabelová televize, Kabelové rozvody
Plocha zahrady:
861 m²
Zastavěná plocha:
176 m²
Plyn:
Plynovod
Počet parkovacích míst:
2
Počet podlaží pod zemí:
1
Telekomunikace:
Telefon, Internet
Typ domu:
Patrový
Umístění objektu:
Klidná část obce
Voda:
Dálkový rozvod
Vybavení kanceláří:
Ano
Vybaveno:
Ano
Energetická náročnost budovy:
G
Měrná vypočtená roční spotřeba energie v kWh/m²/rok:
432