Translate with 
MENU ZAVŘÍT

Prodej restaurace 700 m², Vyškov (ID 058-NP04523)

ulice V Brňanech, Vyškov – část obce Brňany mapa

Cena na vyžádání v kanceláři
GMimořádně
nehospodárná

700 m2
790 m2
435 m2
2
Exkluzivně

Prodej víceúčelové budovy ve Vyškově

Nabízíme k prodeji prostornou víceúčelovou budovu ve Vyškově, ideální pro spojení podnikání i bydlení.
Jedná se o samostatně stojící nepodsklepený objekt občanského vybavení situovaný v místní části Brňany. K budově patří i pozemek o výměře 126 m2 využívaný jako parkoviště a manipulační prostor navazující na hlavní objekt.

Původní jednopodlažní restaurace byla povolena rozhodnutím stavebního úřadu v roce 1973 jako nepodsklepená přízemní budova z cihelného zdiva s plochou střechou z panelů SPIHOL, napojená na veřejný vodovod, kanalizaci a plynovod, s ústředním plynovým vytápěním a betonovými podlahami s finální úpravou PVC. V roce 2003–2004 byla nad stávající částí provedena nástavba 2. NP se zázemím restaurace, byty a kanceláří, řešená jako zděná konstrukce z tvárnic Ytong s plochou střechou, včetně předsazené pavlače a venkovního
schodiště, přičemž objekt zůstal funkčně využíván jako restaurace s byty a zázemím.

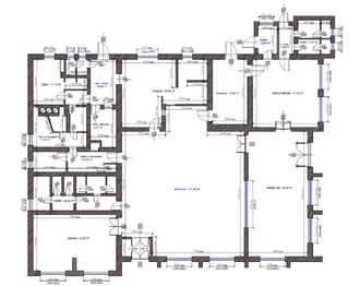
Dispozice:
1. Nadzemní podlaží – komerční část - hlavní sál s kapacitou 60 osob - o výměře 111,38 m2, vedlejší sál s kapacitou 42 osob o výměře 52,5 m2, bar s kapacitou 14 osob - o výměře 111,38 m2, salonek s kapacitou 25 osob - o výměře 111,38 m2, letní zahrádka s kapacitou 35 osob, kompletně vybavená nerezová kuchyně o výměře 33.53 m2, dále sklady, toalety, kancelář, zázemí pro zaměstnance, dvůr, parkovací místa..... (viz půdorysy a fotodokumentace)
2. Nadzemní podlaží – bytová část - schodiště 11,5m², pavlač 1 - 12,5m², pavlač 2 - 18,9m², byt č.1 (s terasou) 164m², byt č. 2 - 41,9m², byt č. 3 (s terasou) - 129,2m², kancelář s úklidovou místností - 15,1m² (viz půdorysy a fotodokumentace)

Restaurace s letní zahrádkou má více než 30-letou tradici a je stále provozována. Může být převzata i s vybavením. Byty v 2NP jsou také užívány a pronajímány.

Vyškov se nachází cca 35 km od Brna, 33 km od Kroměříže a 43 km od Olomouce. Leží na rozhraní Drahanské vrchoviny v nadmořské výšce okolo 250 m n. m.. Žije zde přibližně 21 tisíc obyvatel. Ve městě Vyškov je dobrá občanská vybavenost, nachází se zde síť mateřských, základních, středních škol a učilišť. Je zde i Základní umělecká škola, Knihovna Karla Dvořáčka nebo Dům dětí a mládeže. Občané Vyškova mají k dispozici široké možnosti kulturního i sportovního vyžití. Dopravní spojení s okolím zajišťuje pravidelná autobusová a železniční doprava. Lokalita V Brňanech blízko centra Vyškova, kam je možné dojít chůzí asi za 5 minut a obyvatelům nabízí dobrou logistiku díky blízkosti vlakového i autobusového nádraží a rychlému napojení na dálnici D1.

Průkaz energetické náročnosti se zpracovává, z toho důvodu je prozatím uvedena třída G.
S financováním nemovitosti Vám rádi pomůžeme. Pro více informací a termín prohlídky volejte makléře nabídky.
Prodávající si vyhrazuje právo vybrat kupujícího na základě jím zvolených kritérií.
Cena:
Cena na vyžádání v kanceláři
Renata Dvořáková
REMAX Atraktiv
Purkyňova 143/18
Vyškov, 68201
Česká republika
Tel. na makléře: +420 601 125 277
Tel. do kanceláře: +420 733 149 010
E-mail: renata.dvorakova@re-max.cz

Potřebujete poradit/máte zájem o prohlídku?

* – toto pole je nutné vyplnit

Podrobné informace

Číslo zakázky:
ID 058-NP04523
Počet podlaží v objektu:
2
Užitná plocha:
700 m²
Plocha parcely:
790 m²
Druh objektu:
Cihlová
Stav objektu:
Dobrý
Typ nemovitosti:
Hotely, penziony a restaurace
K nastěhování:
1. 6. 2026
Doprava:
Vlak, Dálnice, Silnice, MHD, Autobus
Elektřina:
230 V
Odpad:
Kanalizace
Celková plocha:
700 m²
Zastavěná plocha:
435 m²
Plyn:
Plynovod
Počet parkovacích míst:
10
Telekomunikace:
Internet
Typ domu:
Patrový
Voda:
Dálkový rozvod
Vybaveno:
Ano
Energetická náročnost budovy:
G