Translate with 
MENU ZAVŘÍT

Prodej domu 73 m², Pchery (ID 023-NP08894)

ulice Ivana Olbrachta, Pchery mapa

7 300 000 Kč ( za nemovitost)
GMimořádně
nehospodárná

3x
73 m2
358 m2
1
Exkluzivně

Prodej rodinného domu 3+1 s garáží, pozemek 358 m2, Pchery, ul. Ivana Olbrachta.

Prodej rodinného domu 3+1 s garáží, pozemek s celkovou výměrou 358 m2, klidné místo v obci Pchery, ul. Ivana Olbrachta č.p. 238.

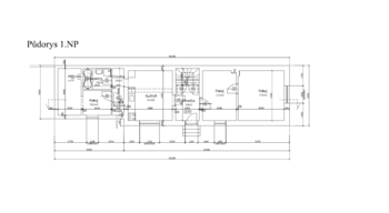
Jedná se o přízemní rodinný dům s obytnou plochou 73 m2. V přízemí se nachází zádveří se vstupy do sklepa a na půdu, kuchyň, koupelna s vanou, samostatné WC, 3 pokoje. Dům je částečně podsklepený. Nad domem je také prostorná půda s celkovou výměrou 43 m2, což nabízí velký potenciál pro budoucí využití. Na pozemku se dále nachází garáž s užitnou plochou 15 m2.

Dům prošel rekonstrukcí (plastová okna, rozvod ústředního topení a elektřiny v mědi, rozvod vody, plynový kotel, plovoucí podlaha, dlažba, SDK podhledy).

Připojené inženýrské sítě: vodovod, kanalizace, elektřina, plyn. Vytápění zajišťuje plynový kotel značky Junkers, ohřev teplé vody bojler na elektřinu značky Dražice.

Obec Pchery nabízí velmi dobrou občanskou vybavenost (mateřská škola, základní škola, pošta, supermarket, restaurace, knihovna).

Výborná dopravní dostupnost do Kladna, Slaného a do Prahy. Autobusová zastávka směr Kladno/Slaný je vzdálena 470 m od domu.

Koupi nemovitosti lze financovat hypotečním úvěrem, který Vám v případě zájmu vyřídíme v rámci našich služeb.

Těším se na Vás při prohlídce tohoto domu...
Prodávající si vyhrazuje právo vybrat kupujícího na základě jím zvolených kritérií.
Cena:
7 300 000 CZK / za nemovitost
Poznámka k ceně:
kupní cena vč. právního servisu, advokátní úschovy kupní ceny a odměny RK
RX finance

Spočítejte si splátku hypotéky

Na kolik vás vyjde pořízení vlastního bydlení? Zadejte pár informací do naší hypoteční kalkulačky a hned si prohlédněte výsledek.

Kupní cena nemovitosti

7 300 000 Kč

Výše hypotéky

Doba splácení

Vypočítaná měsíční splátka

Úroková sazba 3.6%

260 990 Kč

Hypotéku zařídíme za vás

Ušetřete svůj čas i nervy. Naši makléři zařídí veškeré papírování a dovedou vás až k úspěšnému podpisu smlouvy v bance.

Nechte nám kontakt, náš makléř se v pracovní dny ozve do 24 hodin

* – toto pole je nutné vyplnit
Lukáš Hajník
REMAX G8 Reality 2
Kleinerova 1466
Kladno, 27201
Česká republika
Tel. na makléře: +420 731 618 477
Tel. do kanceláře: +420 312 240 239
E-mail: lukas.hajnik@re-max.cz

Potřebujete poradit/máte zájem o prohlídku?

* – toto pole je nutné vyplnit

Podrobné informace

Číslo zakázky:
ID 023-NP08894
Poloha objektu:
Řadový
Počet podlaží v objektu:
1
Užitná plocha:
73 m²
Plocha parcely:
358 m²
Druh objektu:
Cihlová
Stav objektu:
Velmi dobrý
Typ nemovitosti:
Domy a vily
K nastěhování:
29. 4. 2026
Doprava:
Silnice, Autobus
Elektřina:
230 V, 400 V
Garáž:
Ano
Odpad:
Kanalizace
Ostatní rozvody:
Kabelové rozvody, Ostatní rozvody
Zastavěná plocha:
141 m²
Plyn:
Plynovod
Počet podlaží pod zemí:
1
Typ domu:
Přízemní
Umístění objektu:
Klidná část obce
Voda:
Dálkový rozvod
Energetická náročnost budovy:
G