Translate with 
MENU ZAVŘÍT

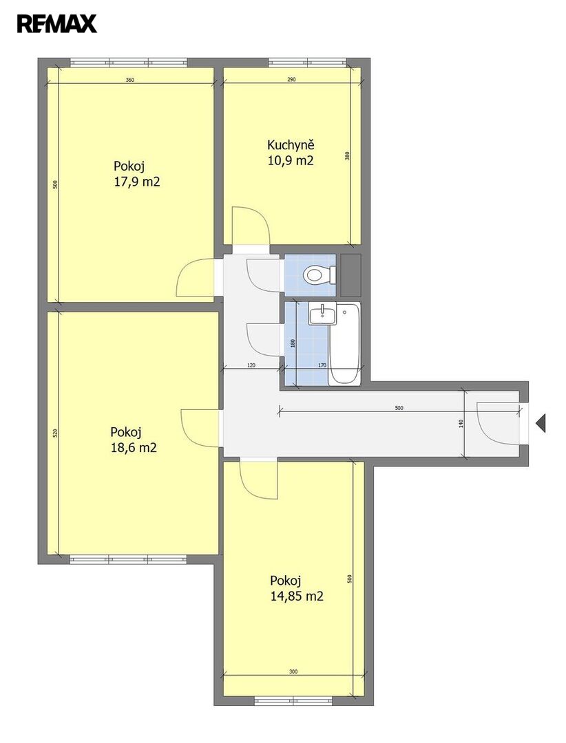
Prodej bytu 3+1 v osobním vlastnictví 78 m², Praha 10 - Strašnice (ID 259-NP01017)

ulice Krupská, Praha 10 – Strašnice mapa

1x
3x
78 m2
4/5
Exkluzivně Prodáno

Rodinný byt v klidné části Strašnic - u metra A Skalka.

V exkluzivním zastoupení majitele nabízím k prodeji hezký rodinný byt v klidné ulici v pražských Strašnicích.

Dům, ve kterém se byt nachází, je výjimečný svou polohou - ulice Krupská je klidná ulice - z jedné strany bytu je výhled do zeleného parčíku, z druhé strany bytu vidíme Metropolitní univerzitu a gymnázium Voděradská. Přitom na metro je to pěšky pár minut nebo lze popojet tramvají. Páteřní tramvají 22 se dostanete rychle v podstatě kamkoliv po Praze.

Samotný byt je prostorný - dobře uspořádaný - rodinný byt.
Často v bytech vídáme propojení obývacího pokoje s kuchyňským koutem. V tomto bytě je však zachováno tradiční uspořádání kuchyně s jídelnou, pohodlně se sem vejde kuchyňská linka i jídelní stůl pro celou rodinu.
Další tři pokoje původně sloužily jako obývací pokoj a dvě ložnice.
Koupelna a toaleta jsou dvě samostatné místnosti.
Byt je určen k rekonstrukci, modernizována jsou okna (plastová) a pěkným prvkem jsou původní parkety v pokojích.

V okolí jsou hezké procházky kolem moderního Kostela Neposkvrněného početí Panny Marie dále k parku Gutovka se sportovišti, lezeckou stěnou a odpočinkovou zónou.

Další informace vám ráda poskytnu. Prodávající si vyhrazuje právo vybrat kupujícího na základě jím zvolených kritérií.
Cena:
Prodáno
Poznámka k ceně:
Provize je obsažena v ceně
Martin Hofmann
REMAX Art
Kodaňská 1441/46
Praha 10 - Vršovice, 10100
Česká republika
Tel. na makléře: +420 605 246 386
Tel. do kanceláře: +420 605 246 386
E-mail: martin.hofmann@re-max.cz

Potřebujete poradit/máte zájem o prohlídku?

* – toto pole je nutné vyplnit

Podrobné informace

Číslo zakázky:
ID 259-NP01017
Dispozice:
3+1
Číslo podlaží:
4
Počet podlaží v objektu:
5
Podlahová plocha:
78 m²
Druh objektu:
Panelová
Stav objektu:
Velmi dobrý
Vlastnictví:
Osobní
Druh stavby:
Ostatní
Typ nemovitosti:
Byty
Odpad:
Kanalizace
Užitná plocha:
78 m²
Plyn:
Plynovod
Umístění objektu:
Centrum obce
Energetická náročnost budovy:
D