Translate with 
MENU ZAVŘÍT

Pronájem obchodních prostor 228 m², Vsetín (ID 064-NP03595)

ulice Sychrov, Vsetín mapa

26 990 Kč (bez DPH, za měsíc)
GMimořádně
nehospodárná

228 m2
Exkluzivně Zlevněno

Pronájem komerčních prostor ve Vsetíně - Sychrov

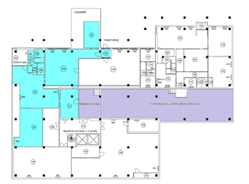
Nabízíme k pronájmu komerční prostory o výměře 228m2 v přízemí multifunkční, komerční budovy ve Vsetíně, na Sychrově.

Prostory mají dva vstupy - hlavní vstup (pro zaměstnance a zákazníky) a vstup ze zadní části přes rampu, který umožňuje pohodlné zásobování nákladními vozy apod.

Prostory jsou členité a mohou být využity pro různé obchodní aktivity, jako jsou prodejní prostory, sklady, drobná výroba, kanceláře a další.
Jedná se o 5 oddělených prostor, chodbu a sociální zázemí.
Veřejné parkoviště a zastávka MHD před budovou.

Lokalita je dobře dostupná, frekventovaná a nabízí nadstandardní prostorové možnosti.

Pro více informací a domluvení prohlídky kontaktujte makléře nabídky. Pronajímající si vyhrazuje právo vybrat nájemce na základě jím zvolených kritérií.
Cena:
26 990 CZK / za měsíc
Poznámka k ceně:
+ energie a DPH
Bc. Martin Valigura
REMAX Quality
Na Příkopě 814
Vsetín, 75501
Česká republika
Tel. na makléře: +420 602 161 719
Tel. do kanceláře: +420 725 686 500
E-mail: martin.valigura@re-max.cz

Potřebujete poradit/máte zájem o prohlídku?

* – toto pole je nutné vyplnit

Podrobné informace

Číslo zakázky:
ID 064-NP03595
Typ nemovitosti:
Komerční prostory
Druh prostor:
Obchodní
Číslo podlaží:
1
Počet podlaží v objektu:
2
Plocha kanceláří:
228 m²
Druh objektu:
Cihlová
Stav objektu:
Velmi dobrý
K nastěhování:
1. 4. 2026
Celková plocha:
228 m²
Zastavěná plocha:
228 m²
Typ domu:
Patrový
Energetická náročnost budovy:
G