Translate with 
MENU ZAVŘÍT

Prodej bytu 3+kk v osobním vlastnictví 89 m², Praha 1 - Nové Město (ID 010-NP04636)

ulice Klimentská, Praha 1 – Nové Město mapa

11 950 000 Kč ( za nemovitost)
GMimořádně
nehospodárná

kk
3x
89 m2
4/5
Exkluzivně Rezervace

Prodej prostorného bytu po rekonstrukci 3+kk, Praha 1 - Nové Město

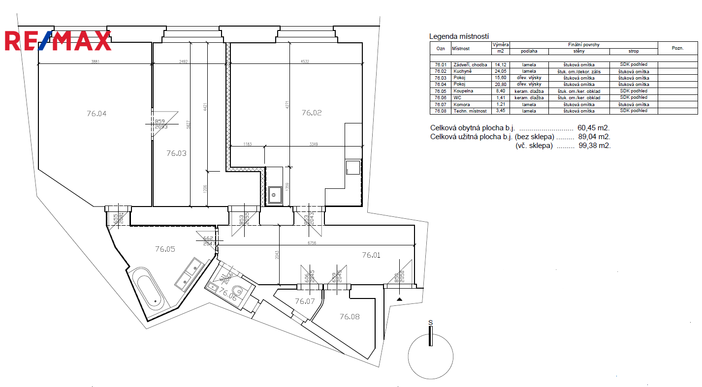
Exkluzivně nabízíme kompletně zrekonstruovaný prostorný byt 3+kk, který se nachází ve třetím patře cihlového domu v samotném centru Prahy.

Byt má dvě ložnice (15,6 m2 a 20,8 m2). obývací pokoj s kuchyňským koutem (24,05 m2) , vstupní halu (14,12 m2), šatnu, komoru (1,21 m2), koupelnu s vanou (8,32 m2) a samostatné WC.
Byt je vybaven kuchyňskou linkou včetně vestavěných spotřebičů (elektrickou troubou, indukční varnou deskou, ledničkou s mrazákem, digestoří, myčkou). Na podlahách v pokojích jsou krásné parkety, v kuchyni a v hale je vinyl. Okna jsou velká, špaletová.
Vytápění a ohřev teplé vody je pomocí vlastního plynového kotle se zásobníkem.
K bytu náleží velký zděný sklep 10,34 m2.
Dobře udržovaný dům s kamerovým systémem má výtah a pěkný stylový vnitroblok.

V okolí je v pěší vzdálenosti veškerá občanská vybavenost.
Parkování je možné na modré zóně před domem nebo v okolních ulicích.
Cena:
11 950 000 CZK / Rezervováno
Poznámka k ceně:
cena je včetně provize a veškerého právního servisu
Upozornění:
Prodávající si vyhrazuje právo vybrat kupujícího na základě jím zvolených kritérií.
RX finance

Spočítejte si splátku hypotéky

Na kolik vás vyjde pořízení vlastního bydlení? Zadejte pár informací do naší hypoteční kalkulačky a hned si prohlédněte výsledek.

Kupní cena nemovitosti

11 950 000 Kč

Výše hypotéky

Doba splácení

Vypočítaná měsíční splátka

Úroková sazba 3.6%

260 990 Kč

Hypotéku zařídíme za vás

Ušetřete svůj čas i nervy. Naši makléři zařídí veškeré papírování a dovedou vás až k úspěšnému podpisu smlouvy v bance.

Nechte nám kontakt, náš makléř se v pracovní dny ozve do 24 hodin

* – toto pole je nutné vyplnit
Otakar Schuma
RE/MAX Search
Na bělidle 309/31
Praha 5 - Smíchov, 15000
Česká republika
Tel. na makléře: +420 777 051 051
Tel. do kanceláře: +420 734 526 176
E-mail: otakar.schuma@re-max.cz

Potřebujete poradit/máte zájem o prohlídku?

* – toto pole je nutné vyplnit

Podrobné informace

Číslo zakázky:
ID 010-NP04636
Dispozice:
3+kk
Číslo podlaží:
4
Počet podlaží v objektu:
5
Podlahová plocha:
89 m²
Druh objektu:
Cihlová
Stav objektu:
Velmi dobrý
Vlastnictví:
Osobní
Typ nemovitosti:
Byty
Elektřina:
230 V
Občanská vybavenost:
Kompletní síť obchodů a služeb
Odpad:
Kanalizace
Užitná plocha:
89 m²
Plyn:
Plynovod
Umístění objektu:
Centrum obce
Voda:
Dálkový rozvod
Vybaveno:
Ano
Výtah:
Ano
Energetická náročnost budovy:
G