Translate with 
MENU ZAVŘÍT

Prodej pozemku 9847 m², Hostouň (ID 114-NP10071)

Hostouň – část obce Hostouň u Prahy mapa

21 000 000 Kč ( za nemovitost)

9847 m2
Exkluzivně

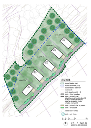
Stavební pozemky Hostouň, Nad Roklí u Dobrovíze

Nabízíme k prodeji pozemky určené dle územního plánu pro bydlení. Pozemky skýtají možnosti pro realizaci až šesti samostatných rodinných domů s minimální výměrou pozemku 1 000 m².

Pozemek se nachází v klidné lokalitě, která je přístupná z hlavní komunikace, což umožňuje snadnou dostupnost do okolních měst a obcí.
Co se týče sítí - pozemek je připraven na připojení k vodovodnímu řadu na pozemku majitele, kanalizace - napojení na oddílnou kanalizaci odpadních vod do budoucí společné ČOV, elektřina - podzemní vedení přímo na pozemku.

Pozemky se nacházejí v místě, které bylo historicky využíváno (tzn. před více než 20 lety) jako skládka pro uložení betonového recyklátu, písku, štěrku, jílu, apod.
K dispozici je inženýrsko geologický průzkum s podrobným popisem základových poměrů pro budoucí výstavbu.
Cena:
21 000 000 CZK / za nemovitost
Poznámka k ceně:
Upozornění:
Prodávající si vyhrazuje právo vybrat kupujícího na základě jím zvolených kritérií.
RX finance

Spočítejte si splátku hypotéky

Na kolik vás vyjde pořízení vlastního bydlení? Zadejte pár informací do naší hypoteční kalkulačky a hned si prohlédněte výsledek.

Kupní cena nemovitosti

21 000 000 Kč

Výše hypotéky

Doba splácení

Vypočítaná měsíční splátka

Úroková sazba 3.6%

260 990 Kč

Hypotéku zařídíme za vás

Ušetřete svůj čas i nervy. Naši makléři zařídí veškeré papírování a dovedou vás až k úspěšnému podpisu smlouvy v bance.

Nechte nám kontakt, náš makléř se v pracovní dny ozve do 24 hodin

* – toto pole je nutné vyplnit
Ing. Vladislava Branská
RE/MAX Horizont
Třebešovská 2869/94
Praha 9 - Horní Počernice, 19300
Česká republika
Tel. na makléře: +420 774 163 374
Tel. do kanceláře: +420 733 149 056
E-mail: vladislava.branska@re-max.cz

Potřebujete poradit/máte zájem o prohlídku?

* – toto pole je nutné vyplnit

Podrobné informace

Číslo zakázky:
ID 114-NP10071
Druh pozemku:
Pro bydlení
Celková plocha:
9 847 m²
Inženýrské sítě:
Vodovod, Elektřina
Typ nemovitosti:
Pozemky
K nastěhování:
12. 5. 2025
Umístění objektu:
Okraj obce