Translate with 
MENU ZAVŘÍT

Pronájem bytu 3+kk v osobním vlastnictví 95 m², Praha 5 - Zličín (ID 228-NP02314)

ulice Sazovická, Praha 5 – Zličín mapa

kk
3x
95 m2
4/9
Exkluzivně Pronajato

Pronájem bytu 3+kk 95 m2 s velkou jihovýchodní lodžií/terasou a garáží u metra B Zličín, Praha 5

Nabízím Vám k pronájmu světlý a prostorný byt o dispozici 3+kk s jihovýchodně orientovanou lodžíí/terasou, ve 3. patře kvalitního bytového domu v ulici Sazovická, jen 200 metrů od stanice metra B Zličín. Byt je ideální pro pár nebo rodinu s 1 až 2 dětmi, s perfektní dostupností MHD i autem. Poloha nemovitosti nabízí snadnou dosažitelnost centra města i napojení na městský okruh s výbornou dostupností letiště.

K bytu náleží samostatná výborně přístupná plnohodnotná garáž a velký sklep naproti garáži v suterénu budovy. Dále je možné využívat společnou kolárnu / kočárkárnu v přízemí domu.

(BYT 95,1 m2_Terasa 28,4 m2_Sklep 5,6 m2_Garáž 16,2 m2 (3,1 x 5,3).

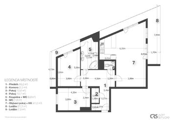
Hlavním obytným prostorem bytu je velký obývací pokoj (41 m2) s komfortním plně vybaveným kuchyňským koutem, jídelním koutem, a přímým vstupem na terasu, která nabízí panoramatický výhled do širokého okolí. Velké francouzské dveře a okna směřující na terasu přivádějí do obývací zóny dostatek denního světla i slunce, a volně propojují celou místnost s terasou i výhledem až na české středohoří. Terasa má velikost 28,4 m2, takže je od jara do podzimu skutečným rozšířením bytu.

Prostorná vstupní hala má potenciál vestavby dalších úložných prostor. Z Haly je vstup do všech pokojů, praktické komory, koupelny s WC a do samostatného druhého WC.

Značnou výhodou bytu jsou příjemně velké ložnice, každá o ploše téměř 13 m2. První z nich slouží jako dětský pokoj, a druhá, která je blíže k hlavní koupelně, jako rodičovská ložnice. Každý z těchto pokojů má díky výše umístěné poloze bytu dostatek denního světla, příjemný výhled a vstup na terasu.

Celý byt působí díky velkorysému pojetí rozměrů místností vzdušně a prostorně. Výše umístěná poloha bytu a dostatečná zvuková izolace stěn sousedících s vedlejšími byty přináší překvapivě tichou a klidnou atmosféru pro pohodové bydlení. O pocit bezpečí se postarají kvalitní bezpečnostní dveře NEXT a alarm.

Přímo u domu je několik dětských hřišť, základní škola, školka nebo park. 3 minuty chůze od domu je autobusová zastávka, která vás během dvou minut sveze na metro linky B – Zličín pokud se Vám nechce jít pěšky. Do 10 minut pěšky se nachází OC Metropole Zličín, o něco dále i HOMEPARK s obchody jako Tesco, Ikea, Jysk atp.

Byt bude volný k 1.8.2025

Pro další informace a prohlídky jsem Vám k dispozici.
Cena:
Pronajato
Poznámka k ceně:
Poplatky za služby (zálohy) cca 7.000 CZK, Kauce 70.000 CZK, Provize RK 33.880 CZK.
Upozornění:
Pronajímající si vyhrazuje právo vybrat nájemce na základě jím zvolených kritérií.
Karel Kulhavý
RE/MAX Ace
Jabloňová 2136/11
Praha 10 - Záběhlice, 10600
Česká republika
Tel. na makléře: +420 733 555 976
Tel. do kanceláře: +420 602 202 452
E-mail: karel.kulhavy@re-max.cz

Potřebujete poradit/máte zájem o prohlídku?

* – toto pole je nutné vyplnit

Podrobné informace

Číslo zakázky:
ID 228-NP02314
Dispozice:
3+kk
Číslo podlaží:
4
Počet podlaží v objektu:
9
Podlahová plocha:
95 m²
Druh objektu:
Smíšená
Stav objektu:
Velmi dobrý
Vlastnictví:
Osobní
Typ nemovitosti:
Byty
Bezbariérový byt:
Ano
K nastěhování:
1. 8. 2025
Garáž:
Ano
Odpad:
Kanalizace
Užitná plocha:
95 m²
Plyn:
Plynovod
Umístění objektu:
Centrum obce
Výtah:
Ano
Energetická náročnost budovy:
C