Translate with 
MENU ZAVŘÍT

Prodej bytu 3+kk v osobním vlastnictví 75 m², Praha 4 - Chodov (ID 201-NP03253)

ulice Petýrkova, Praha 4 – Chodov mapa

8 850 000 Kč ( za nemovitost)
GMimořádně
nehospodárná

kk
3x
75 m2
8/13
Exkluzivně

Prostorný a světlý byt 3+1 s lodžií u metra Chodov – Petýrkova ulice, Praha 4

Bydlení, kde vám slunce svítí do obýváku a příroda začíná za rohem. Nabízíme světlý a prostorný byt 3+1 s lodžií v klidné části Petýrkovy ulice, v pěší vzdálenosti od stanice metra Chodov i obchodního centra Westfield. Ideální volba pro rodinu nebo pár, kteří hledají pohodlné bydlení s dostatkem prostoru, výbornou dopravní dostupností a zelení na dosah.

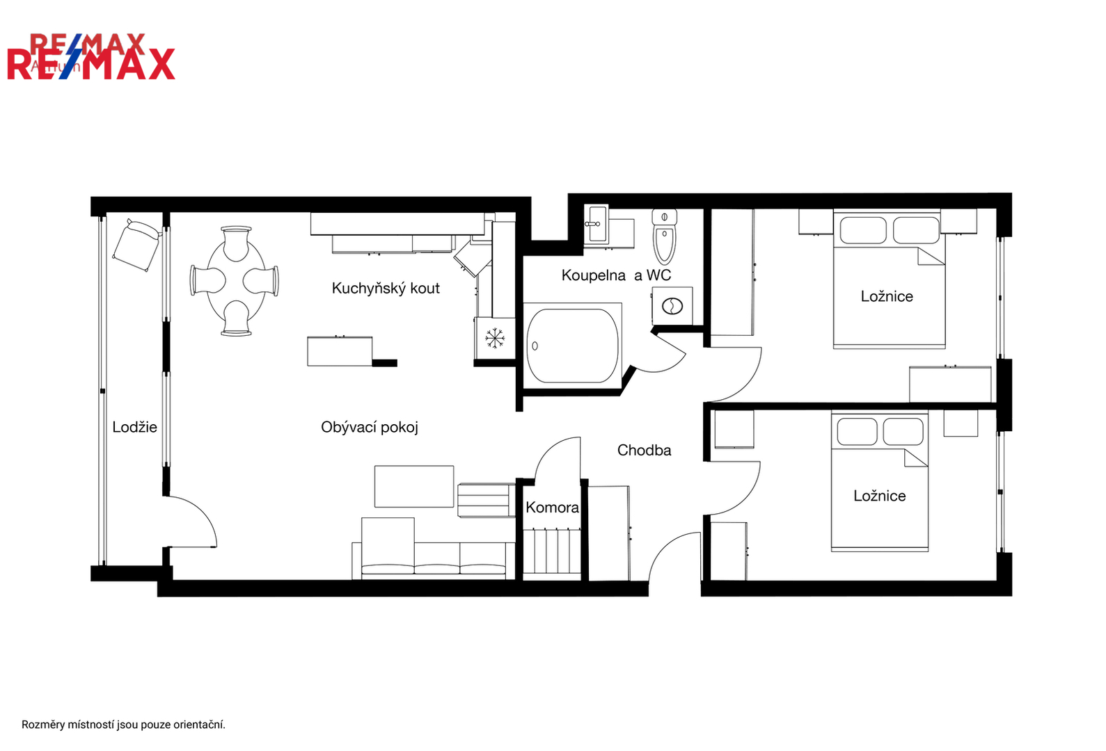
Dispozice o celkové užitné ploše 75 m² zahrnuje obývací pokoj s kuchyní, dvě ložnice, koupelnu s WC a prostornou předsíň. K bytu dále náleží lodžie o velikosti 6,84 m² orientovaná na jihozápad a také sklepní kóje o velikosti 2,31 m².

Byt prošel před více než deseti lety částečnou rekonstrukcí – byla vybudována nová koupelna a propojena kuchyň s obývacím pokojem do jednoho vzdušného denního prostoru. Obytné místnosti jsou výborně orientovány: obývací pokoj s lodžií na jihozápad – prosluněný a příjemný po většinu dne, ložnice naopak na severovýchod – ideální pro klidný spánek nebo práci z domova.

Dům je po kompletní revitalizaci: má zateplenou fasádu, nová plastová okna, výtah a modernizované společné prostory. Společenství vlastníků je aktivní a dům je udržovaný, s pečlivě spravovanými financemi. Okolní zeleň vytváří velmi příjemnou atmosféru k bydlení.

Lokalita nabízí vše, co od městského bydlení očekáváte:
- Stanici metra C – Chodov i autobusové zastávky v docházkové vzdálenosti
- Obchodní centrum Westfield Chodov – obchody, služby, restaurace, multikino, lékaři
- Školy, školky, polikliniku, sportovní areály i dětská hřiště v blízkém okolí
- Krčský a Kunratický les – ideální pro běhání, procházky nebo víkendový odpočinek v přírodě
- Rychlé napojení na Pražský okruh i centrum města

Byt je ideální pro každého, kdo hledá kvalitní, klidné a prakticky řešené bydlení v žádané části Prahy 4 s perfektní dostupností i zázemím. Hodnotu PENB kategorie budeme ještě po obdržení průkazu energetické náročnosti aktualizovat.

Přijďte se podívat, jak může vypadat váš nový domov – světlý, klidný a praktický. Rád vás bytem osobně provedu a zodpovím všechny dotazy.

A pokud řešíte financování, i s tím vám pomůžeme – REMAX jako největší realitní síť na světě spolupracuje s prověřenými finančními poradci, kteří vám díky své silné vyjednávací pozici na trhu zajistí nejvýhodnější možnou hypotéku přesně podle vašich potřeb.
Cena:
8 850 000 CZK / za nemovitost
Poznámka k ceně:
Cena je včetně provize a všech právních poplatků.
Upozornění:
Prodávající si vyhrazuje právo vybrat kupujícího na základě jím zvolených kritérií.
RX finance

Spočítejte si splátku hypotéky

Na kolik vás vyjde pořízení vlastního bydlení? Zadejte pár informací do naší hypoteční kalkulačky a hned si prohlédněte výsledek.

Kupní cena nemovitosti

8 850 000 Kč

Výše hypotéky

Doba splácení

Vypočítaná měsíční splátka

Úroková sazba 3.6%

260 990 Kč

Hypotéku zařídíme za vás

Ušetřete svůj čas i nervy. Naši makléři zařídí veškeré papírování a dovedou vás až k úspěšnému podpisu smlouvy v bance.

Nechte nám kontakt, náš makléř se v pracovní dny ozve do 24 hodin

* – toto pole je nutné vyplnit
Jan Halík
RE/MAX Atrium
Podolská 811/138
Praha 4 - Podolí, 14700
Česká republika
Tel. na makléře: +420 603 377 791
Tel. do kanceláře: +420 606 726 515
E-mail: jan.halik@re-max.cz

Potřebujete poradit/máte zájem o prohlídku?

* – toto pole je nutné vyplnit

Podrobné informace

Číslo zakázky:
ID 201-NP03253
Dispozice:
3+kk
Číslo podlaží:
8
Počet podlaží v objektu:
13
Podlahová plocha:
75 m²
Druh objektu:
Panelová
Stav objektu:
Velmi dobrý
Vlastnictví:
Osobní
Typ nemovitosti:
Byty
Charakter okolní zástavby:
Obytná
Doprava:
Vlak, Dálnice, Silnice, MHD, Autobus
Elektřina:
230 V
Odpad:
Kanalizace
Ostatní rozvody:
Kabelová televize
Užitná plocha:
75 m²
Telekomunikace:
Telefon, Internet
Umístění objektu:
Sídliště
Voda:
Dálkový rozvod
Vybaveno:
Ano
Výtah:
Ano
Energetická náročnost budovy:
G