Translate with 
MENU ZAVŘÍT

Prodej bytu 4+1 v osobním vlastnictví 85 m², Karlovy Vary (ID 270-NP00355)

ulice Fibichova, Karlovy Vary – část obce Stará Role mapa

4 890 000 Kč ( za nemovitost)
BVelmi
úsporná

1x
4x
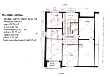
85 m2
5/8
Exkluzivně Rezervace

Rodinný byt 4+1 s lodžií v klidné části Staré Role

Každý svůj pokoj, společné chvíle na lodžii, vše na dosah a žádné každodenní taxi služby pro děti.
Tento prostorný byt 4+1 v Karlových Varech – Staré Roli vám dá svobodu, pohodlí i skvělou adresu pro rodinný život.

Domov, kde bude mít každý svůj prostor!
Představte si byt, kde má každý člen rodiny svůj vlastní pokoj a kde odpoledne trávíte čas společně na lodžii s kávou, obklopeni zelení a klidným prostorem pro relaxaci. To vše vám nabídne tento prostorný byt 4+1 se zděným jádrem a promyšleným uspořádáním.

Nachází se ve Fibichově ulici – klidném místě, kde je přitom vše po ruce. Děti to mají pár kroků do školy, školky i na hřiště, vy zase do obchodu nebo za sportem do oblíbeného areálu Rolava. Už žádné nekonečné rozvážení a vyzvedávání – tady si děti mohou bezpečně hrát, vyrůstat a učit se samostatnosti, zatímco vy máte čas i pro sebe.

Co vás potěší:
- prostorná a světlá dispozice se samostatnými vstupy do všech pokojů
- útulná atmosféra díky elektrickým krbovým kamnům
- praktické zděné jádro
- lodžie pro relax i ranní snídaně na čerstvém vzduchu
- ideální lokalita pro rodinný život
- bezbariérový vstup do domu
- velmi příjemné okolí domu
- skvělá obslužnost (školy, školky, MHD, obchody, sportovní aktivity, zdravotní střediska, lékárny)

Extra bonus pro nové majitele:
K bytu je k dispozici schválený projekt se stavebním povolením na moderní úpravy – vybourání příčky a rozšíření dveřního otvoru, které by interiéru dodaly ještě větší vzdušnost a moderní vzhled. Součástí projektu je několik variant úprav dispozice doplněných o fotografické vizualizace, díky nimž si snadno představíte, jak může být váš nový domov ještě atraktivnější.

Tento byt není jen čtyři zdi – je to místo, kde budete tvořit vzpomínky, vyrůstat spolu i každý zvlášť a kam se budete rádi vracet.
Cena:
4 890 000 CZK / Rezervováno
Poznámka k ceně:
pomůžeme s financováním
Upozornění:
Prodávající si vyhrazuje právo vybrat kupujícího na základě jím zvolených kritérií.
RX finance

Spočítejte si splátku hypotéky

Na kolik vás vyjde pořízení vlastního bydlení? Zadejte pár informací do naší hypoteční kalkulačky a hned si prohlédněte výsledek.

Kupní cena nemovitosti

4 890 000 Kč

Výše hypotéky

Doba splácení

Vypočítaná měsíční splátka

Úroková sazba 3.6%

260 990 Kč

Hypotéku zařídíme za vás

Ušetřete svůj čas i nervy. Naši makléři zařídí veškeré papírování a dovedou vás až k úspěšnému podpisu smlouvy v bance.

Nechte nám kontakt, náš makléř se v pracovní dny ozve do 24 hodin

* – toto pole je nutné vyplnit
Viktor Klein
RE/MAX Anděl 2
Sokolovská 564/51
Karlovy Vary, 36005
Česká republika
Tel. na makléře: +420 775 556 690
Tel. do kanceláře: +420 775 556 690
E-mail: viktor.klein@re-max.cz

Potřebujete poradit/máte zájem o prohlídku?

* – toto pole je nutné vyplnit

Podrobné informace

Číslo zakázky:
ID 270-NP00355
Dispozice:
4+1
Číslo podlaží:
5
Počet podlaží v objektu:
8
Podlahová plocha:
85 m²
Druh objektu:
Panelová
Stav objektu:
Velmi dobrý
Vlastnictví:
Osobní
Typ nemovitosti:
Byty
Bezbariérový byt:
Ano
Charakter okolní zástavby:
Obchodní a obytná
K nastěhování:
4. 8. 2025
Doprava:
Vlak, Dálnice, Silnice, MHD, Autobus
Elektřina:
230 V
Odpad:
Kanalizace
Užitná plocha:
76 m²
Zastavěná plocha:
464 m²
Plyn:
Plynovod
Počet podlaží pod zemí:
1
Telekomunikace:
Telefon, Internet
Umístění objektu:
Sídliště
Voda:
Dálkový rozvod
Výtah:
Ano
Energetická náročnost budovy:
B
Měrná vypočtená roční spotřeba energie v kWh/m²/rok:
74