Translate with 
MENU ZAVŘÍT

Prodej chaty / chalupy 80 m², Stradonice (ID 023-NP08605)

Stradonice, okres Kladno mapa

4 500 000 Kč ( za nemovitost)
GMimořádně
nehospodárná

3x
80 m2
1004 m2
0
Exkluzivně Rezervace

Prodej chalupy s osobitou atmosférou

Dovoluji si vám nabídnout velmi zajímavou nemovitost - chalupu s pozemkem s naprostým soukromím na okraji obce Stradonice u Zlonic.

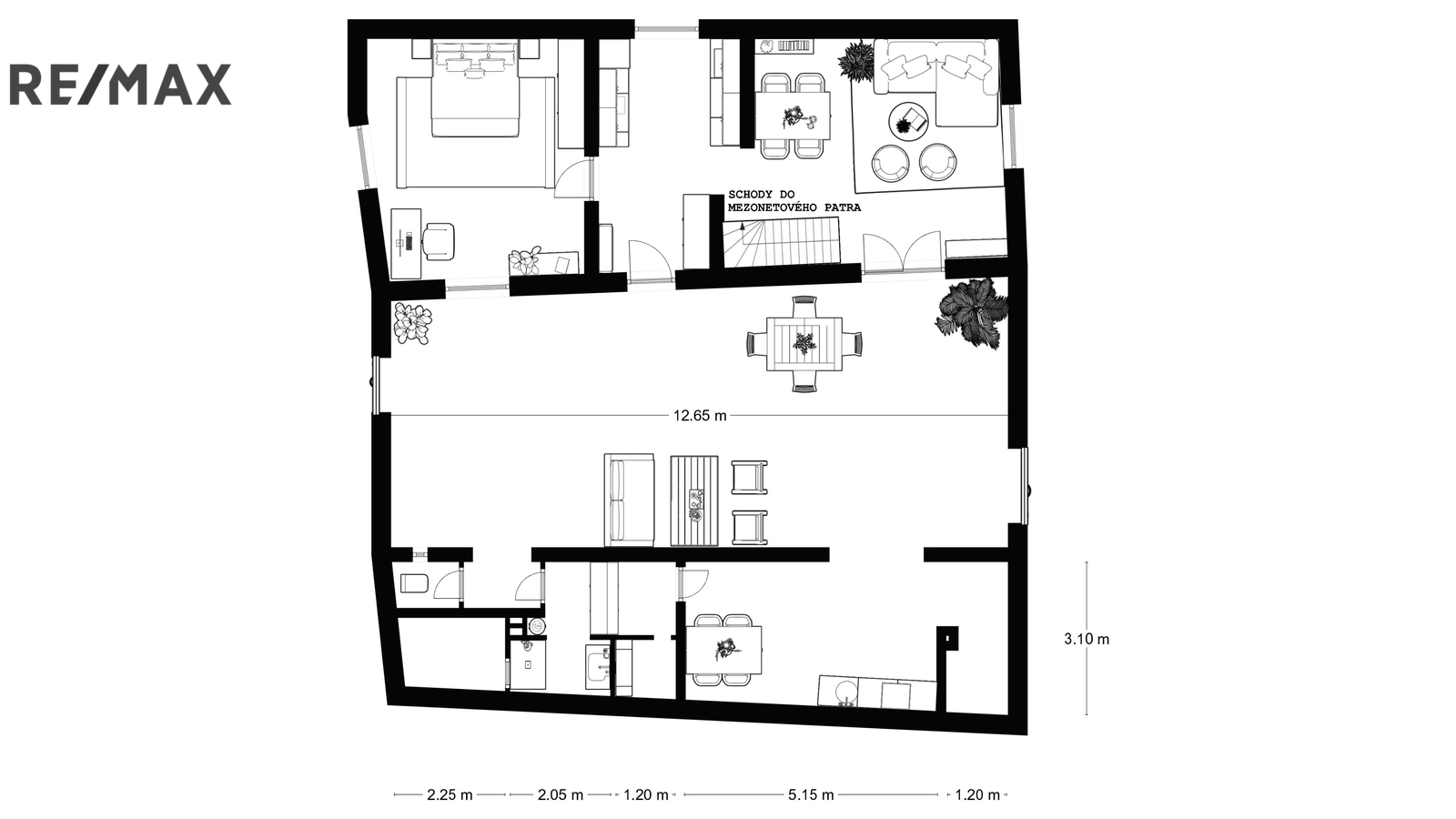
Chalupa je rozdělena vnitřním dvorem na 2 oddělené budovy - jedna budova nabízí obývací pokoj, menší kuchyň, ložnici a další ložnici v podkroví, ve druhé budově najdete plně vybavenou kuchyň, koupelnu, WC a úložné prostory. Obě budovy mají velká francouzská okna směrem do vnitřního atria, což zajišťuje ideální provázanost a vzdušnost všech těchto prostor. Vnitřní atrium nabízí možnost velmi příjemného posezení s působivou atmosférou. Dispoziční uspořádání obou budov je nejlépe patrné z půdorysu ve fotogalerii.

Ze dvora navazuje přímý vstup na rozlehlou zahradu obklopenou vzrostlými stromy, což vytváří doslova oázu klidu. Na zahradě je několik dalších možností k posezení např. u otevřeného ohniště.

Objekt je napojen na elektřinu, voda do objektu je dovedena ze studny (pouze užitková), odpadní voda je svedena do žumpy. Centrální vytápění v domě není, pro přechodné období je možnost zatopit v kachlových kamnech nebo temperovost přímotopy. Nemovitost je svojí koncepcí vhodná především pro sezónní využití k rekreaci, nikoliv k trvalému bydlení.

Pro bližší informace k této ojedinělé nemovitosti mě neváhejte kontaktovat.
Cena:
4 500 000 CZK / Rezervováno
Poznámka k ceně:
Upozornění:
Prodávající si vyhrazuje právo vybrat kupujícího na základě jím zvolených kritérií.
RX finance

Spočítejte si splátku hypotéky

Na kolik vás vyjde pořízení vlastního bydlení? Zadejte pár informací do naší hypoteční kalkulačky a hned si prohlédněte výsledek.

Kupní cena nemovitosti

4 500 000 Kč

Výše hypotéky

Doba splácení

Vypočítaná měsíční splátka

Úroková sazba 3.6%

260 990 Kč

Hypotéku zařídíme za vás

Ušetřete svůj čas i nervy. Naši makléři zařídí veškeré papírování a dovedou vás až k úspěšnému podpisu smlouvy v bance.

Nechte nám kontakt, náš makléř se v pracovní dny ozve do 24 hodin

* – toto pole je nutné vyplnit
Ing. Michaela Motyčková
RE/MAX G8 Reality 2
Kleinerova 1466
Kladno, 27201
Česká republika
Tel. na makléře: +420 605 889 330
Tel. do kanceláře: +420 312 240 239
E-mail: michaela.motyckova@re-max.cz

Potřebujete poradit/máte zájem o prohlídku?

* – toto pole je nutné vyplnit

Podrobné informace

Číslo zakázky:
ID 023-NP08605
Poloha objektu:
Samostatný
Užitná plocha:
80 m²
Plocha parcely:
1 004 m²
Druh objektu:
Smíšená
Stav objektu:
Velmi dobrý
Typ nemovitosti:
Chaty a rekreační objekty
Elektřina:
230 V
Celková plocha:
80 m²
Zastavěná plocha:
76 m²
Typ domu:
Patrový
Umístění objektu:
Polosamota
Energetická náročnost budovy:
G