Translate with 
MENU ZAVŘÍT

Prodej bytu 2+kk v osobním vlastnictví 57 m², Přelouč (ID 020-NP10439)

ulice Československé armády, Přelouč mapa

2 952 000 Kč ( za nemovitost)
DMéně
úsporná

kk
2x
57 m2
3/4
Exkluzivně

Prodej bytu 2+kk v centru Přelouče

Hledáte byt pro vaše spokojené bydlení nebo na investici?

✅ To vše vám splní tento byt s dispozicí 2+kk. Bytová jednotka je v osobním vlastnictví a nachází se ve 2. patře cihlového domu bez výtahu.
Celková plocha bytové jednotky je 57,5 m² a to včetně sklepní kóje.

✅ Výhody tohoto bytu:
• Soukromí: ve 2. patře je pouze tento byt a nebudete zde mít sousedy.
• Poloha: byt je v cihlovém domě mimo hlavní silnici.
• Stav bytového domu: nová střešní krytina a fasáda se zateplením.
• Dostupnost služeb: v okolí se nachází obchody, školy, restaurace, kino a další služby.
• Dobré dopravní spojení: z Přelouče se snadno dostanete do Pardubic, Prahy i Hradce Králové.

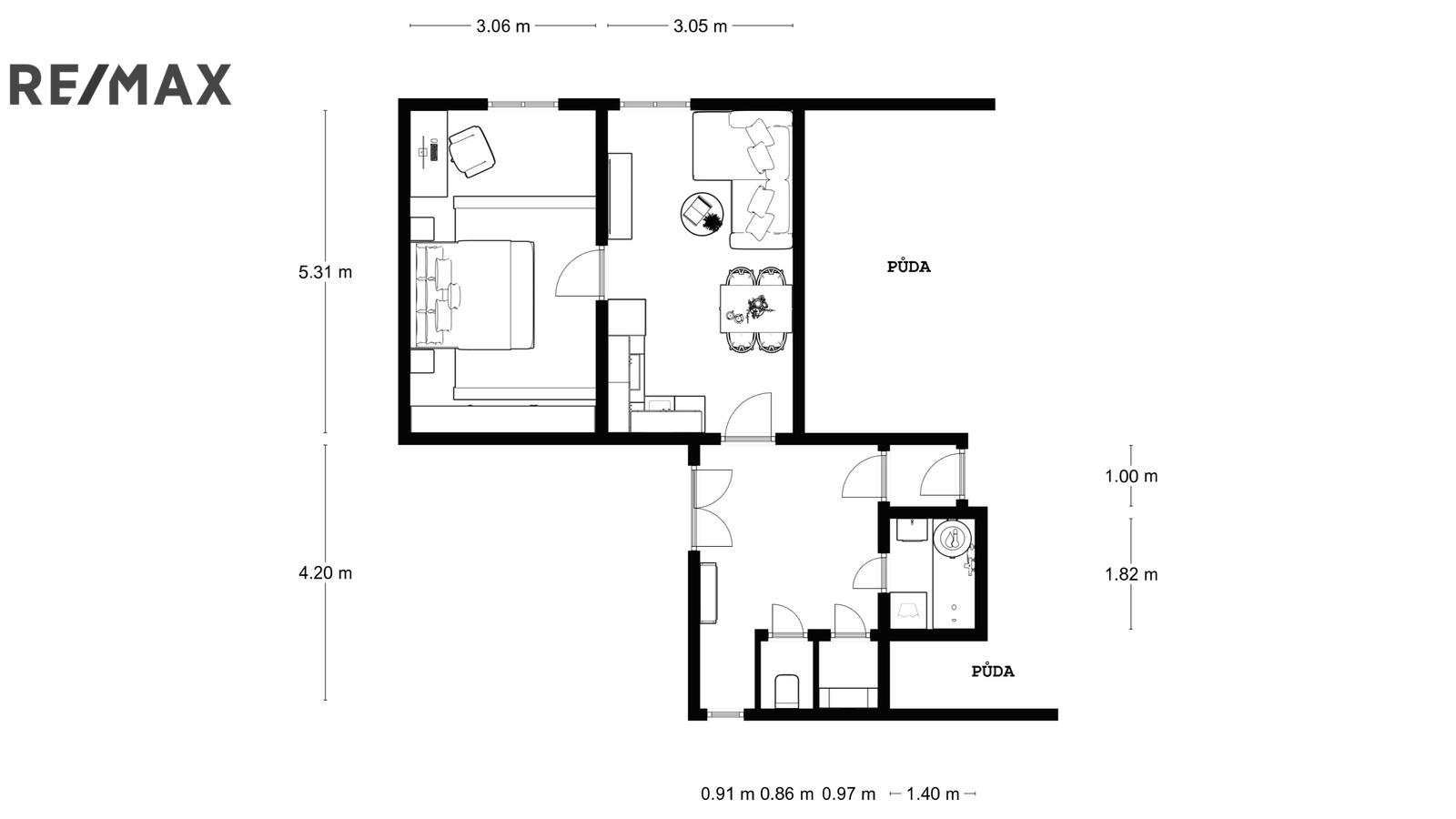
✅ Dispozice bytu je tvořena vstupní chodbou, ze které vlevo vstoupíte do místnosti s kuchyňským koutem a dále vejdete do pokoje. Z chodby je dále vstup do koupelny s vanou, umyvadlem, místem na pračku a elektrickým bojlerem. Vedle koupelny je také samostatné WC a komora/spíž. Na chodbě je dost místa na šatní skříň. Další dveře z chodby vedou přes menší komoru na prostornou půdu. Kuchyně je vybavena linkou s dřezem a elektrickým sporákem. V pokojích jsou novější plovoucí podlahy a na chodbě, v koupelně a WC jsou dlažby. Vytápění je zajištěno elektrickými akumulačními kamny.
Byt je převážně v původním stavu, což vám dává možnost si ho zmodernizovat podle vlastních představ. Okna jsou nová plastová a dům je zateplený s novou fasádou. Společenství vlastníků jednotek v domě funguje spolehlivě a plánuje rekonstrukci sklepních prostor.

✅ Bytový dům se nachází ve vedlejší ulici nedaleko centra Přelouče mezi poštou a městským úřadem. Budete to mít kousek na nákupy (Penny Market, Billa), do kina, do restaurací. Také základní škola nebo autobusové a vlakové nádraží není daleko. Bezplatné parkování auta je možné ve vnitrobloku domu nebo v blízkých ulicích.

✅ Pokud hledáte příjemné bydlení blízko centra Přelouče, je tento byt pro vás tou správnou volbou.

✅ Pro investory byt nabízí stabilní a perspektivní investiční příležitost s možností dlouhodobého pronájmu s rostoucím výnosem díky lokalitě s dobrou infrastrukturou a poptávkou po bydlení. Investoři, kteří hledají stabilní zdroj příjmů z pronájmu, by si tuto nemovitost neměli nechat ujít.

Výhodné hypotéční financování Vám pomůžeme zajistit.
Domluvte si u mne prohlídku a rád Vás bytem provedu.
Váš realitní makléř s certifikací ISO
Martin Kovář
Cena:
2 952 000 CZK / za nemovitost
Poznámka k ceně:
včetně provize a právního servisu
Upozornění:
Prodávající si vyhrazuje právo vybrat kupujícího na základě jím zvolených kritérií.
RX finance

Spočítejte si splátku hypotéky

Na kolik vás vyjde pořízení vlastního bydlení? Zadejte pár informací do naší hypoteční kalkulačky a hned si prohlédněte výsledek.

Kupní cena nemovitosti

2 952 000 Kč

Výše hypotéky

Doba splácení

Vypočítaná měsíční splátka

Úroková sazba 3.6%

260 990 Kč

Hypotéku zařídíme za vás

Ušetřete svůj čas i nervy. Naši makléři zařídí veškeré papírování a dovedou vás až k úspěšnému podpisu smlouvy v bance.

Nechte nám kontakt, náš makléř se v pracovní dny ozve do 24 hodin

* – toto pole je nutné vyplnit
Ing. Martin Kovář
RE/MAX G8 Reality
Rohanské nábřeží 678/27
Praha 8 - Karlín, 18600
Česká republika
Tel. na makléře: +420 722 608 606
Tel. do kanceláře: +420 703 180 388
E-mail: martin.kovar@re-max.cz

Potřebujete poradit/máte zájem o prohlídku?

* – toto pole je nutné vyplnit

Podrobné informace

Číslo zakázky:
ID 020-NP10439
Dispozice:
2+kk
Číslo podlaží:
3
Počet podlaží v objektu:
4
Podlahová plocha:
57 m²
Druh objektu:
Smíšená
Stav objektu:
Dobrý
Vlastnictví:
Osobní
Typ nemovitosti:
Byty
K nastěhování:
1. 9. 2025
Doprava:
Vlak, Silnice, Autobus
Elektřina:
230 V
Odpad:
Kanalizace
Užitná plocha:
55 m²
Zastavěná plocha:
639 m²
Počet podlaží pod zemí:
1
Umístění objektu:
Centrum obce
Voda:
Dálkový rozvod
Energetická náročnost budovy:
D
Měrná vypočtená roční spotřeba energie v kWh/m²/rok:
143