Translate with 
MENU ZAVŘÍT

Prodej bytu 3+kk v osobním vlastnictví 78 m², Mníšek pod Brdy (ID 205-NP11908)

ulice V Edenu, Mníšek pod Brdy mapa

Cena na vyžádání v kanceláři
BVelmi
úsporná

kk
3x
78 m2
2/2
Exkluzivně Rezervace

Byt 3kk + zahrada + parkovací stání

Bydlení, kde děti najdou kamarády hned za plotem

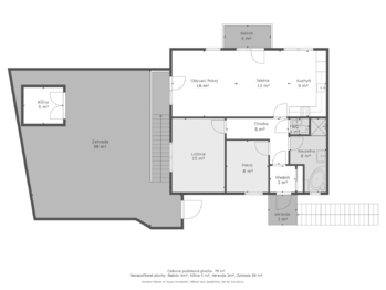
Hledáte rodinné bydlení v bezpečné a klidné čtvrti, kde žijí mladé rodiny s dětmi? Nabízím k prodeji prostorný byt 3+kk o užitné ploše 73 m² s vlastní zahradou 98 m² a parkovacím stáním v oblíbené lokalitě V Edenu, Mníšek pod Brdy.

Byt je světlý a prostorný díky velkým francouzským oknům, která do interiéru přivádějí maximum denního světla. Okna jsou navíc vybavena el. ovládanými venkovními žaluziemi, co v létě příjemně stíní a v ložnici zajistí klidný spánek dětí i rodičů.

Z obývacího pokoje je přímý vstup na balkon a terasu, která vás zavede na vlastní soukromou zahradu. Zahrada je ideální pro dětské hry, letní grilování nebo odpočinek pod jabloní. Součástí je také zahradní domek na uskladnění kol, lyží, zahradnického či jiného sportovního náčiní. Navíc před domem máte vlastní parkovací stání.

Proč právě tady?

1.) Můžete hned bydlet. Byt je připravený k nastěhování.
2.) Všude kolem bydlí mladé rodiny – děti si okamžitě najdou nové kamarády a vy skvělé přátele.
3.) Je zde bezpečné a přátelské sousedství se zelení a dostatkem prostoru na hraní.
4.) Najdete tu kompletní občanskou vybavenost v docházkové vzdálenosti (školka, škola, obchody, sportoviště).
5.) Do Prahy po D4 to máte za pár minut. Autobusem nebo vlakem se dostanete na Smíchov, do Dobříše nebo do Příbrami.


A navíc! Brdy máte doslova za rohem. Toto chráněné území nabízí kilometry cyklostezek, turistických tras i možností pro procházky s dětmi v čisté přírodě. O víkendech tak nemusíte nikam složitě cestovat – za pár chvil jste v lese. Brdy jsou ideální místo pro sport, odpočinek i objevování s celou rodinou.

Pokud hledáte místo, které kombinuje pohodlí moderního bydlení s rodinnou atmosférou a přírodou na dosah, tenhle byt je přesně pro vás.

Neváhejte mě kontaktovat a domluvte si prohlídku. Ráda vám byt osobně ukážu a těším se na setkání s vámi. Byty v této rezidenční lokalitě jsou velmi žádané a jedná se o jedinečnou příležitost, která nemusí být dlouho k dispozici.
Cena:
Cena na vyžádání v kanceláři / Rezervováno
Poznámka k ceně:
Upozornění:
Prodávající si vyhrazuje právo vybrat kupujícího na základě jím zvolených kritérií.
Mgr. Gabriela Malimánková, MBA
RE/MAX Alfa
Spálená 97/29
Praha 1 - Nové Město, 11000
Česká republika
Tel. na makléře: +420 777 250 124
Tel. do kanceláře: +420 296 240 400
E-mail: gabriela.malimankova@re-max.cz

Potřebujete poradit/máte zájem o prohlídku?

* – toto pole je nutné vyplnit

Podrobné informace

Číslo zakázky:
ID 205-NP11908
Dispozice:
3+kk
Číslo podlaží:
2
Počet podlaží v objektu:
2
Podlahová plocha:
78 m²
Druh objektu:
Cihlová
Stav objektu:
Novostavba
Vlastnictví:
Osobní
Typ nemovitosti:
Byty
Charakter okolní zástavby:
Obytná
Doprava:
Vlak, Dálnice, Silnice, MHD, Autobus
Elektřina:
230 V
Odpad:
Kanalizace
Užitná plocha:
73 m²
Plocha zahrady:
98 m²
Zastavěná plocha:
167 m²
Plyn:
Plynovod
Počet parkovacích míst:
1
Voda:
Dálkový rozvod
Vybaveno:
Ano
Energetická náročnost budovy:
B