Translate with 
MENU ZAVŘÍT

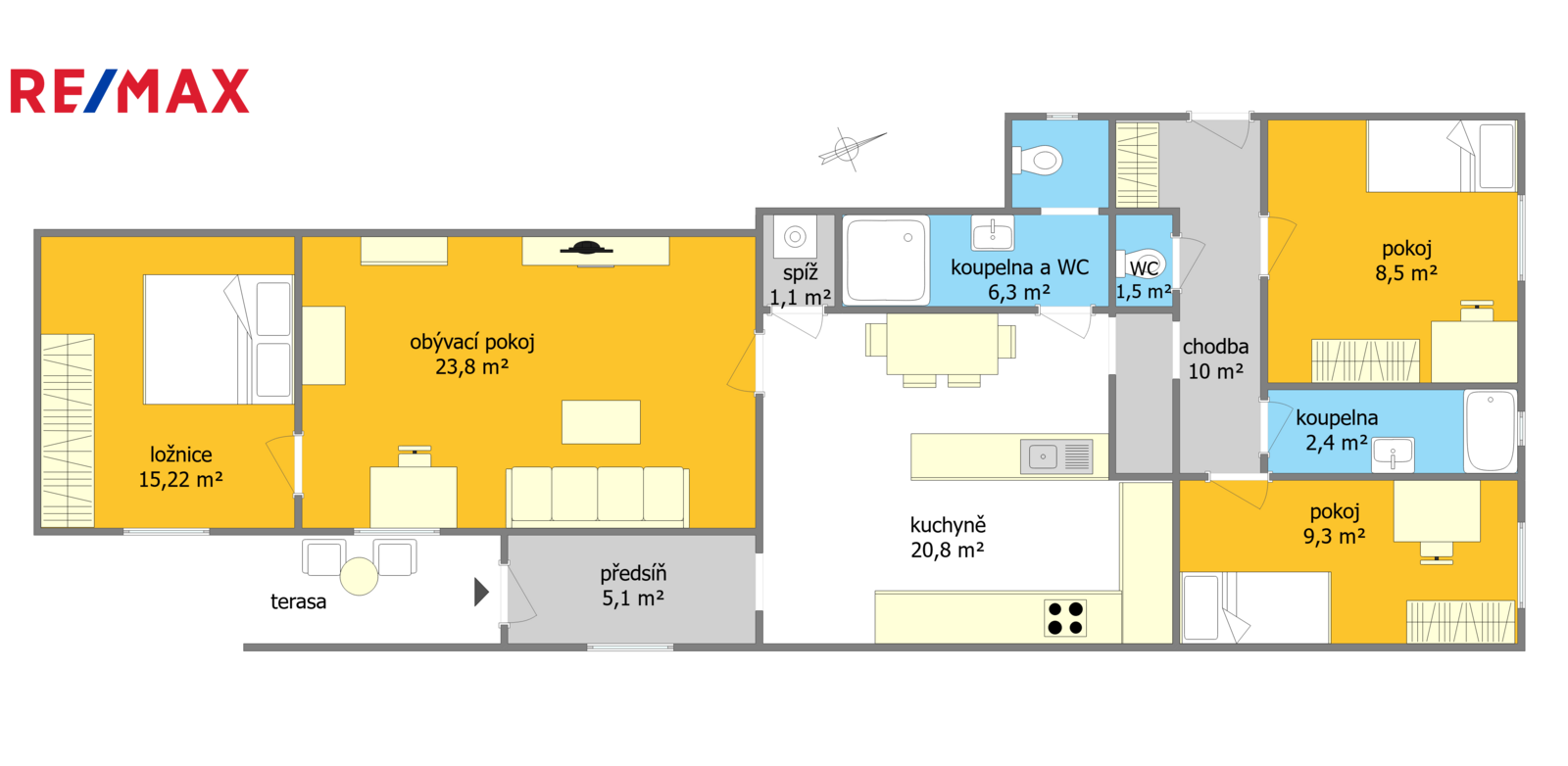
Prodej bytu 4+1 v osobním vlastnictví 115 m², Brněnec (ID 077-NP06748)

Brněnec, okres Svitavy mapa

4 470 000 Kč ( za nemovitost)
GMimořádně
nehospodárná

1x
4x
115 m2
1/2
Exkluzivně Zlevněno

Prostorný byt 4+1 s vlastní terasou, třemi parkovacími místy a možností garáže – Brněnec

Provizi u této nabídky nehradíte!

Hledáte domov, kde budete mít dostatek místa pro celou rodinu, soukromí a jistotu vlastního parkování? Pro děti možnost vyběhnout rovnou ze dveří na zahradu? A co kdyby k tomu přibylo i příjemné posezení na terase a šance postavit si vlastní garáž?

Tento byt o ploše 110 m² v obci Brněnec nabízí vše, co potřebujete – a ještě něco navíc.

Byt prošel v letech 2017–2024 modernizací a působí světlým, vzdušným a velmi příjemným dojmem. Má samostatný vchod se zastřešenou terasou (4,5 m²), kde si můžete vychutnat ranní kávu nebo si večer posedět s přáteli.

Dispozice 4+1 je řešena prakticky:
- kuchyně s jídelnou (20,9 m²) s moderní linkou, ostrůvkem a vestavěnými spotřebiči,
- obývací pokoj (23,8 m²) s krbovými kamny,
- tři ložnice – dost prostoru pro rodiče, děti i pracovnu,
- dvě koupelny a dvě toalety – jedna koupelna se sprchovým koutem a WC, druhá s vanou a samostatným WC,
- nechybí předsíň, chodba ani spíž.

Vytápění zajišťuje elektrické podlahové topení a infrazářiči, v obývacím pokoji navíc i krbová kamna. Každá koupelna má vlastní bojler na ohřev vody.

K bytu patří tři parkovací místa přímo u domu, společná zahrada se zahradním domkem a také 60 m² pozemku s hotovými základy pro garáž – stavební povolení je vyřízené, takže můžete ihned začít stavět.

Lokalita a dostupnost: Brněnec je klidná obec obklopená přírodou, ideální pro rodinný život i práci z domova. Najdete zde školu, školku, obchod, poštu, lékaře i restauraci. Do Letovic dojedete autem za 10 minut, do Svitav za 15 minut a do Brna zhruba za 50 minut. V obci je vlaková zastávka i pravidelné autobusové spoje.

Pro koho je byt ideální?
- Pro rodinu, která potřebuje tři ložnice a dostatek prostoru.
- Pro ty, kdo chtějí dvougenerační bydlení nebo kombinaci bydlení s podnikáním.
- Pro každého, kdo hledá prostorný, moderní byt s parkováním a kouskem zahrady v klidné lokalitě.

Pokud hledáte kompromis mezi pohodlím rodinného domu a praktičností bytu, tahle nabídka může být přesně pro vás. Vyplňte formulář a rád vám poskytnu další informace i osobní prohlídku.
Cena:
4 470 000 CZK / za nemovitost
Poznámka k ceně:
Upozornění:
Prodávající si vyhrazuje právo vybrat kupujícího na základě jím zvolených kritérií.
RX finance

Spočítejte si splátku hypotéky

Na kolik vás vyjde pořízení vlastního bydlení? Zadejte pár informací do naší hypoteční kalkulačky a hned si prohlédněte výsledek.

Kupní cena nemovitosti

4 470 000 Kč

Výše hypotéky

Doba splácení

Vypočítaná měsíční splátka

Úroková sazba 3.6%

260 990 Kč

Hypotéku zařídíme za vás

Ušetřete svůj čas i nervy. Naši makléři zařídí veškeré papírování a dovedou vás až k úspěšnému podpisu smlouvy v bance.

Nechte nám kontakt, náš makléř se v pracovní dny ozve do 24 hodin

* – toto pole je nutné vyplnit
Ing. Tomáš Fráňa
RE/MAX Pro
Blatného 3
Brno, 61600
Česká republika
Tel. na makléře: +420 730 139 335
Tel. do kanceláře: +420 732 299 929
E-mail: tomas.frana@re-max.cz

Potřebujete poradit/máte zájem o prohlídku?

* – toto pole je nutné vyplnit

Podrobné informace

Číslo zakázky:
ID 077-NP06748
Dispozice:
4+1
Číslo podlaží:
1
Počet podlaží v objektu:
2
Podlahová plocha:
115 m²
Druh objektu:
Cihlová
Stav objektu:
Po rekonstrukci
Vlastnictví:
Osobní
Typ nemovitosti:
Byty
Garáž:
Ano
Užitná plocha:
110 m²
Plocha zahrady:
215 m²
Počet parkovacích míst:
3
Energetická náročnost budovy:
G