Translate with 
MENU ZAVŘÍT

Prodej domu 292 m², Praha 4 - Písnice (ID 201-NP03219)

ulice Lipovická, Praha 4 – Písnice mapa

29 990 000 Kč ( za nemovitost)
AMimořádně
úsporná

5+
292 m2
292 m2
3
Exkluzivně

Moderní a nízkonákladový dům 6+kk. Lipovická ul., Praha 4 - Písnice

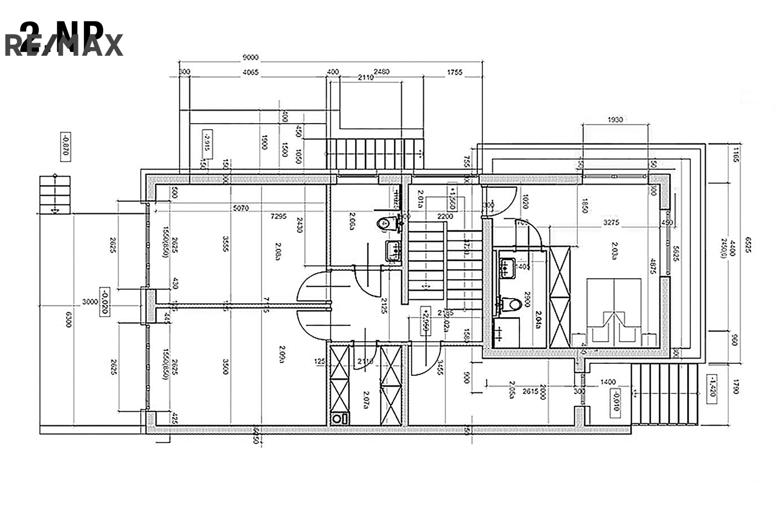
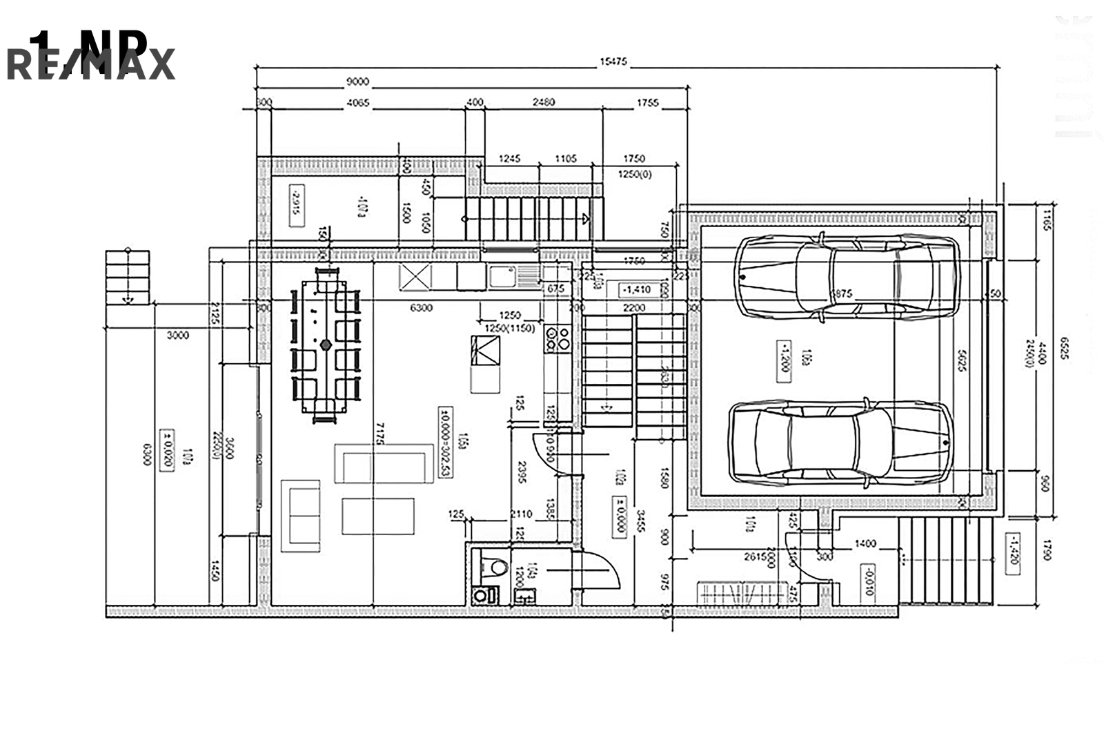
Ve výhradním zastoupení nabízím k prodeji prostorný rodinný dům o dispozici 6+kk s celkovou plochou domu 292 m² a pozemkem o rozloze 292 m² (dům A). Parcelní číslo: 654/3, Katastrální území: Písnice [720984], Číslo LV: 451
V projektu Domy Lipovická vznikají dva moderní nízkoenergetické rodinné domy se zahradou a dvojgaráží, které nabízejí komfortní bydlení s důrazem na kvalitu a úspornost. Díky použití špičkových materiálů a technologií, jako jsou tepelné čerpadlo, podlahové vytápění, dřevěné podlahy, okna s izolačním trojsklem a HS portálem či designové obklady, je zajištěno efektivní využití energie a minimální náklady na údržbu.
Domy se nacházejí v klidné rezidenční části Prahy 4 – Písnici, v prostředí původní zástavby rodinných domů. Lokalita nabízí ideální kombinaci výborné dopravní dostupnosti a blízkosti přírody. Budoucí stanice metra D Písnice je vzdálena pouhých 400 metrů, stejně jako areál SAPA, autobusová zastávka je jen 100 metrů od domu, nájezd na Pražský okruh 2 kilometry a přírodní rezervace Modřanská a Písnická rokle pouhých 300 metrů.
Výstavba domu A se blíží ke svému dokončení – probíhá instalace obkladů, sanity, podlahových krytin a dveří, následně budou dokončeny práce v okolí domu i na zahradě. Předání je plánováno na únor 2026. V dalších měsících bude dokončen také dům B se stejnou dispozicí, který bude rovněž nabídnut k prodeji.
Architektonická studie domů byla připravena renomovaným ateliérem We Make Spaces (MS architekti).
Nemovitost je v osobním vlastnictví. V případě zájmu o financování jsme připraveni pomoci s výběrem a zajištěním hypotéky – nabízíme širokou škálu výhodných možností od různých bank.
Pro více informací a sjednání prohlídky kontaktujte makléře nemovitosti.
========
(Tiếng Việt)
Xin trân trọng giới thiệu với quý khách Bất động sản mới.
Biệt thự A (1/2) mà tôi chào bán hiện đang được thi công và sẽ được hoàn thiện vào cuối năm nay, trước Tết Bính Ngọ 2026.
Tòa nhà này được thiết kế bởi Công ty Kiến trúc nổi tiếng MS We Make Spaces thực hiện.
Biệt thự A nằm trên thửa đất rộng 292 m², có 3 tầng, với tổng diện tích sử dụng 292 m². Biệt thự được trang bị những thiết bị kỹ thuật hiện đại như bơm nhiệt, sưởi sàn, tường ốp cách nhiệt và sử dụng các nguyên vật liệu cao cấp, giúp cho việc sử dụng đạt được các tiêu chí cao nhất: Tiết kiệm tài chính và Thân thiện môi trường.
Với vị trí đắc địa: Cách TTTM Sapa chỉ 400m, cách bến Metro Písnice tuyến D tới đây cũng chỉ 400m, cách đường vành đai đi Brno hay đi sân bay Ruzyně chỉ 2 km, Biệt thự này sẽ đặc biệt phù hợp với những khách hàng làm việc và kinh doanh tại TTTM Sapa
Hãy liên hệ với tôi để biết thêm chi tiết về giá bán cũng như tư vấn về tài chính và quá trình chuyển nhượng.
Cena:
29 990 000 CZK / za nemovitost
Poznámka k ceně:
Cena vcetne provizi
Upozornění:
Prodávající si vyhrazuje právo vybrat kupujícího na základě jím zvolených kritérií.
RX finance

Spočítejte si splátku hypotéky

Na kolik vás vyjde pořízení vlastního bydlení? Zadejte pár informací do naší hypoteční kalkulačky a hned si prohlédněte výsledek.

Kupní cena nemovitosti

29 990 000 Kč

Výše hypotéky

Doba splácení

Vypočítaná měsíční splátka

Úroková sazba 3.6%

260 990 Kč

Hypotéku zařídíme za vás

Ušetřete svůj čas i nervy. Naši makléři zařídí veškeré papírování a dovedou vás až k úspěšnému podpisu smlouvy v bance.

Nechte nám kontakt, náš makléř se v pracovní dny ozve do 24 hodin

* – toto pole je nutné vyplnit
Cuong Nguyen
RE/MAX Atrium
Podolská 811/138
Praha 4 - Podolí, 14700
Česká republika
Tel. na makléře: +420 776 585 499
Tel. do kanceláře: +420 606 726 515
E-mail: cuong.nguyen@re-max.cz

Potřebujete poradit/máte zájem o prohlídku?

* – toto pole je nutné vyplnit

Podrobné informace

Číslo zakázky:
ID 201-NP03219
Poloha objektu:
Řadový
Počet podlaží v objektu:
3
Užitná plocha:
292 m²
Plocha parcely:
292 m²
Druh objektu:
Cihlová
Stav objektu:
Novostavba
Typ nemovitosti:
Domy a vily
Charakter okolní zástavby:
Obytná
K nastěhování:
20. 9. 2025
Doprava:
Silnice, MHD
Elektřina:
230 V, 400 V
Garáž:
Ano
Odpad:
Kanalizace
Zastavěná plocha:
127 m²
Počet podlaží pod zemí:
1
Typ domu:
Patrový
Umístění objektu:
Klidná část obce
Voda:
Dálkový rozvod
Energetická náročnost budovy:
A