Translate with 
MENU ZAVŘÍT

Prodej domu 144 m², Tuněchody (ID 020-NP10592)

Tuněchody, okres Chrudim mapa

4 900 000 Kč ( za nemovitost)
GMimořádně
nehospodárná

5+
144 m2
820 m2
2
Exkluzivně

Prodej rodinného domu 144 m2, pozemek 820 m2, Tuněchody

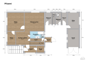
Představuji Vám ideální spojení klidného bydlení na venkově s výbornou dostupností do města. Dvoupodlažní rodinný dům je o dispozici 6+1 s užitnou plochou 144 m² a celkovou plochou pozemku 820 m². Nachází na konci klidné ulice v obci Tuněchody, mezi městy Chrudim a Pardubice.
Disponuje 6 obytnými místnostmi, samostatnou kuchyní a zázemím, které nabízí široké možnosti využití. Najdete zde 2 sklepy, 2 půdy, garáž a několik dalších místností vhodných pro dílnu, sklad či Vaše zájmy. Celková zastavěná plocha činí 172 m². Nabízí tak dostatek prostoru pro vícegenerační bydlení, rodinu s dětmi či kombinaci domova s pracovním zázemím.
Vytápění zajišťuje plynový kotel Viadrus, alternativně lze využít kotel na tuhá paliva. Ohřev vody je řešen novým elektrickým bojlerem Bandini. Dům je napojen na obecní vodovod, disponuje také vlastní studnou. Odpad je momentálně sveden do septiku, avšak připojení na obecní kanalizaci je již povoleno a realizace proběhne v příštím roce.
Dům byl zkolaudován v roce 1970 a v roce 2005 prošel částečnou rekonstrukcí. Byla vyměněna většina oken za plastová a elektroinstalace je částečně v mědi. Stav objektu umožňuje okamžité bydlení s možností postupné modernizace podle Vašich představ. Parkování je možné v garáži, na pozemku i před domem.
Samotná zahrada činí 648 m². Pozemek je rovný, udržovaný a nabízí dostatek prostoru pro relaxaci, zahradničení či výstavbu drobných doplňkových staveb.
Tuněchody jsou vyhledávanou a dobře vybavenou obcí, která disponuje školkou a základní školou. Najdete zde 2 prodejny potravin, mlékárnu, sokolovnu s pravidelnými volnočasovými kroužky pro děti i dospělé, dětské a sportovní hřiště, obecní knihovnu, 2 autoservisy, rybářské potřeby, Z-BOX a poštovní schránku. Na okraji obce protéká řeka Chrudimka.
Autobusová zastávka je vzdálena 6 minut chůze, vlaková zastávka 20 minut. Autem se dostanete do Chrudimi za 5 minut, do Pardubic za 10 minut, na dálnici D11 za 20 minut.

Pro více informací nebo sjednání prohlídky mě neváhejte kontaktovat, ráda Vás osobně provedu.


Prodávající si vyhrazuje právo vybrat kupujícího na základě jím zvolených kritérií.
Cena:
4 900 000 CZK / za nemovitost
Poznámka k ceně:
Upozornění:
Prodávající si vyhrazuje právo vybrat kupujícího na základě jím zvolených kritérií.
RX finance

Spočítejte si splátku hypotéky

Na kolik vás vyjde pořízení vlastního bydlení? Zadejte pár informací do naší hypoteční kalkulačky a hned si prohlédněte výsledek.

Kupní cena nemovitosti

4 900 000 Kč

Výše hypotéky

Doba splácení

Vypočítaná měsíční splátka

Úroková sazba 3.6%

260 990 Kč

Hypotéku zařídíme za vás

Ušetřete svůj čas i nervy. Naši makléři zařídí veškeré papírování a dovedou vás až k úspěšnému podpisu smlouvy v bance.

Nechte nám kontakt, náš makléř se v pracovní dny ozve do 24 hodin

* – toto pole je nutné vyplnit
Ing. Anna Svobodová
RE/MAX G8 Reality
Rohanské nábřeží 678/27
Praha 8 - Karlín, 18600
Česká republika
Tel. na makléře: +420 721 978 456
Tel. do kanceláře: +420 703 180 388
E-mail: anna.svobodova@re-max.cz

Potřebujete poradit/máte zájem o prohlídku?

* – toto pole je nutné vyplnit

Podrobné informace

Číslo zakázky:
ID 020-NP10592
Poloha objektu:
Samostatný
Počet podlaží v objektu:
2
Užitná plocha:
144 m²
Plocha parcely:
820 m²
Druh objektu:
Smíšená
Stav objektu:
Před rekonstrukcí
Typ nemovitosti:
Domy a vily
Charakter okolní zástavby:
Obytná
Doprava:
Vlak, Silnice, Autobus
Elektřina:
230 V
Garáž:
Ano
Odpad:
Septik
Ostatní rozvody:
Satelit, Kabelová televize
Plocha zahrady:
648 m²
Zastavěná plocha:
172 m²
Plyn:
Plynovod
Počet podlaží pod zemí:
1
Telekomunikace:
Internet
Typ domu:
Patrový
Umístění objektu:
Klidná část obce
Voda:
Dálkový rozvod
Vybaveno:
Ano
Energetická náročnost budovy:
G