Translate with 
MENU ZAVŘÍT

Prodej bytu 3+kk v osobním vlastnictví 66 m², Čeladná (ID 064-NP04189)

Čeladná, okres Frýdek-Místek mapa

7 590 000 Kč ( za nemovitost)
AMimořádně
úsporná

kk
3x
66 m2
1/2

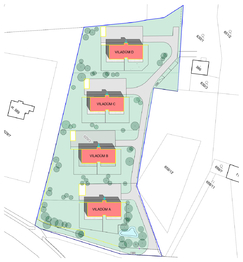
BYTY 3+KK U LÁZNÍ ČELADNÁ, VILADOMY, ceny již od 7.590.000Kč vč. dph

Viladomy u lázní v Čeladné – Váš nový domov v srdci Beskyd, jednopodlažní byty bez starostí o zahradu.
Jde o nadstandardní řešení bez kompromisů. Viladomy Čeladná kombinují moderní architekturu s vysokou kvalitou provedení a respektem k okolní přírodě. Atraktivní dům s menšími jednopodlažními byty nebo ateliéry, terasou a předzahrádkou či balkónem, pro pohodlný pohyb bez schodů.
A parkování ? Možnost dokoupení parkovacího stání za domem či ve svahu nebo zapuštěného do terénu.
Vše v lokalitě u lesoparku historických lázní Čeladná se širokými možnosti relax aktivit, služeb včetně lékařské péče.
KVALITNÍ ARCHITEKTURA S AUTORSKÝM PODPISEM
Projekt navrhl renomovaný architekt Petr Lichnovský, autor řady úspěšných projektů v areálu lázní Čeladná, jako je apartmánový dům Lara, Léčebný dům Dr. Storch a další. V areálu nyní bude i sám bydlet, a tak má každý detail promyšlený s maximální precizností.
VYSOKÉ STANDARDY A ENERGETICKÁ ÚSPORNOST
Cihlové budovy s energetickou třídou A, podlahovým topením, klimatizací, hliníkovými okny, HS portály a odolnými vinylovými podlahami. Toto vše zajišťuje komfortní a dlouhodobě úsporné bydlení bez jakýchkoliv kompromisů.
PRVNÍ REZIDEČNÍ DŮM V AREÁLU JE DOKONČEN
Všechny byty v dokončeném bytovém domě stavěném v úvodní etapě jsou kompletně prodány. Nyní navazujeme novými viladomy s omezeným počtem bytů – jde o limitovanou nabídku, která staví na ověřeném řešení a týmu se stavebními zkušenostmi v lokalitě.
BYDLENÍ V PŘÍRODĚ IDEÁLNÍ PRO AKTIVNÍ ŽIVOT
Lokalita spojuje přírodu, lázeňské zázemí a lékařskou péči, kompletní občanskou vybavenost – wellness, restaurace, kavárna, potraviny. Skvělé možnosti pro relax i sport: golf, cyklistika, turistika, lyže.
Dvojitá cihlová konstrukce bytových částí a akustické mezibytové stěny pro maximální soukromí.
Podlahové vytápění v celém bytě a klimatizace pro komfort v každém ročním období.
Kvalitní vinylové podlahy od prověřených výrobců s možností změny na jiné materiály.
Velkoformátová hliníková okna a HS portály propojují interiér se zahradou a přináší dostatek přirozeného světla.
Vyberte si z jednopodlažních bytů s chytře řešenou dispozicí 65,7 m² nebo Ateliérů, přízemní byty lákají na soukromé terasy a předzahrádky, byty v patře nabízejí balkóny s nádhernými výhledy na Beskydy. Do všech bytů se dostanete jen po 8 schodech, do těch přízemních i bez schodů, další lze upravit na zcela bezbariérové. Užívat si budete i komunitní zahradu, která naváže na lázeňský lesopark.
Cenové rozpětí bytů od 7.590.000Kč včetně dph dle umístění, velikosti terasy, předzahrádky, balkónu, možnost dokoupení venkovního skladu, parkovacího stání.
HARMONOGRAM PROJEKTU:
09-12/2025: rezervace, budoucí KS
02-04/2026: příj. komunikace, sítě, základy
05-07/2026: obv. konstrukce, stropy
08-11/2026: okna, střecha, zateplení
01-03/2027: omítky, podlahy, vnitř. instalace
04-05/2027: dokončení stavby, kolaudace, podpis KS
Cena:
7 590 000 CZK / za nemovitost
Poznámka k ceně:
Prodávající si vyhrazuje právo vybrat kupujícího na základě jím zvolených kritérií.
Upozornění:
Prodávající si vyhrazuje právo vybrat kupujícího na základě jím zvolených kritérií.
RX finance

Spočítejte si splátku hypotéky

Na kolik vás vyjde pořízení vlastního bydlení? Zadejte pár informací do naší hypoteční kalkulačky a hned si prohlédněte výsledek.

Kupní cena nemovitosti

7 590 000 Kč

Výše hypotéky

Doba splácení

Vypočítaná měsíční splátka

Úroková sazba 3.6%

260 990 Kč

Hypotéku zařídíme za vás

Ušetřete svůj čas i nervy. Naši makléři zařídí veškeré papírování a dovedou vás až k úspěšnému podpisu smlouvy v bance.

Nechte nám kontakt, náš makléř se v pracovní dny ozve do 24 hodin

* – toto pole je nutné vyplnit
Roman Horák
RE/MAX Quality
Na Příkopě 814
Vsetín, 75501
Česká republika
Tel. na makléře: +420 725 686 503
Tel. do kanceláře: +420 725 686 500
E-mail: roman.horak@re-max.cz

Potřebujete poradit/máte zájem o prohlídku?

* – toto pole je nutné vyplnit

Podrobné informace

Číslo zakázky:
ID 064-NP04189
Dispozice:
3+kk
Číslo podlaží:
1
Počet podlaží v objektu:
2
Podlahová plocha:
66 m²
Druh objektu:
Smíšená
Stav objektu:
Projekt
Vlastnictví:
Osobní
Typ nemovitosti:
Byty
Charakter okolní zástavby:
Obytná
Odpad:
Kanalizace
Užitná plocha:
66 m²
Plocha zahrady:
85 m²
Počet parkovacích míst:
1
Umístění objektu:
Okraj obce
Voda:
Dálkový rozvod
Vybaveno:
Ano
Energetická náročnost budovy:
A