Translate with 
MENU ZAVŘÍT

Prodej bytu 1+1 v osobním vlastnictví 41 m², Praha 4 - Písnice (ID 205-NP12139)

ulice U bazénu, Praha 4 – Písnice mapa

6 171 000 Kč ( za nemovitost)
AMimořádně
úsporná

1x
1x
41 m2
4/9
Exkluzivně Rezervace

Byt 1+1 s komorou – Praha Písnice

Udržovaný a prakticky řešený byt, který nabízí dvě skvělé možnosti využití – startovací bydlení v klidné části Prahy, nebo připravenou investici se stabilním výnosem.
V lokalitě je navíc plánováno metro D, které výrazně zrychlí spojení s centrem Prahy a do budoucna ještě zvýší hodnotu nemovitosti. Díky tomu jde o zajímavou koupi s potenciálem růstu.
Dispozice 1+1 s oddělenou kuchyní a komorou na patře poskytuje dostatek prostoru a zároveň umožňuje jednoduchou úpravu na 2+kk.
Byt je čistý, udržovaný a připravený k okamžitému užívání – ať už pro vlastní bydlení, nebo pokračování v pronájmu.
Dům je po revitalizaci, působí klidně, udržovaně a má energetickou náročnost třídy A, což zajišťuje nízké provozní náklady.
Aktuálně je byt pronajatý spolehlivému nájemníkovi, takže generuje okamžitý měsíční výnos bez nutnosti cokoliv řešit.

Technické informace
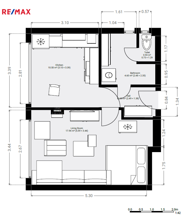
Dispozice: 1+1, 41 m²
Možnost úpravy na 2+kk
Komora: na patře u bytu
Podlaží: 4. nadzemní podlaží
Stav bytu: udržovaný
Konstrukce domu: panelový, po revitalizaci
Energetická náročnost: třída A
Současný stav: obsazený nájemníkem – generuje stabilní výnos

Lokalita
Praha–Písnice je unikátní část města, kde se potkává česká a asijská kultura, což jí dodává osobitou atmosféru.
Nabízí klid, zeleň a rodinné prostředí, ale zároveň skvělou dopravní dostupnost – MHD 2 minuty chůze, metro je nyní na dosah a brzy tu povede metro D.
V okolí je vše potřebné:
park, louka a hřiště
obchody a služby
Sapa přes silnici – centrum gastronomie a obchodu
OC Chodov pár minut autem
školy, sportoviště a cyklostezky
Díky tomu je lokalita dlouhodobě vyhledávaná jak rodinami, tak studenty a investory.

Majitel si vyhrazuje právo zvolit nejvhodnějšího zájemce.
Cena:
6 171 000 CZK / Rezervováno
Poznámka k ceně:
Upozornění:
Prodávající si vyhrazuje právo vybrat kupujícího na základě jím zvolených kritérií.
RX finance

Spočítejte si splátku hypotéky

Na kolik vás vyjde pořízení vlastního bydlení? Zadejte pár informací do naší hypoteční kalkulačky a hned si prohlédněte výsledek.

Kupní cena nemovitosti

6 171 000 Kč

Výše hypotéky

Doba splácení

Vypočítaná měsíční splátka

Úroková sazba 3.6%

260 990 Kč

Hypotéku zařídíme za vás

Ušetřete svůj čas i nervy. Naši makléři zařídí veškeré papírování a dovedou vás až k úspěšnému podpisu smlouvy v bance.

Nechte nám kontakt, náš makléř se v pracovní dny ozve do 24 hodin

* – toto pole je nutné vyplnit
Daniel Centový
RE/MAX Alfa
Spálená 97/29
Praha 1 - Nové Město, 11000
Česká republika
Tel. na makléře: +420 608 225 541
Tel. do kanceláře: +420 296 240 400
E-mail: daniel.centovy@re-max.cz

Potřebujete poradit/máte zájem o prohlídku?

* – toto pole je nutné vyplnit

Podrobné informace

Číslo zakázky:
ID 205-NP12139
Dispozice:
1+1
Číslo podlaží:
4
Počet podlaží v objektu:
9
Podlahová plocha:
41 m²
Druh objektu:
Panelová
Stav objektu:
Velmi dobrý
Vlastnictví:
Osobní
Typ nemovitosti:
Byty
Bezbariérový byt:
Ano
K nastěhování:
1. 11. 2025
Doprava:
Silnice, MHD, Autobus
Elektřina:
230 V
Odpad:
Kanalizace
Užitná plocha:
41 m²
Voda:
Dálkový rozvod
Výtah:
Ano
Energetická náročnost budovy:
A