Translate with 
MENU ZAVŘÍT

Prodej domu 200 m², Kutná Hora (ID 059-NP07695)

ulice Jungmannovo náměstí, Kutná Hora – část obce Kutná Hora-Vnitřní Město mapa

6 700 000 Kč ( za nemovitost)
GMimořádně
nehospodárná

4x
200 m2
159 m2
2
Exkluzivně

Prodej RD v památkové rezervaci v Kutné Hoře, Jungmannovo náměstí

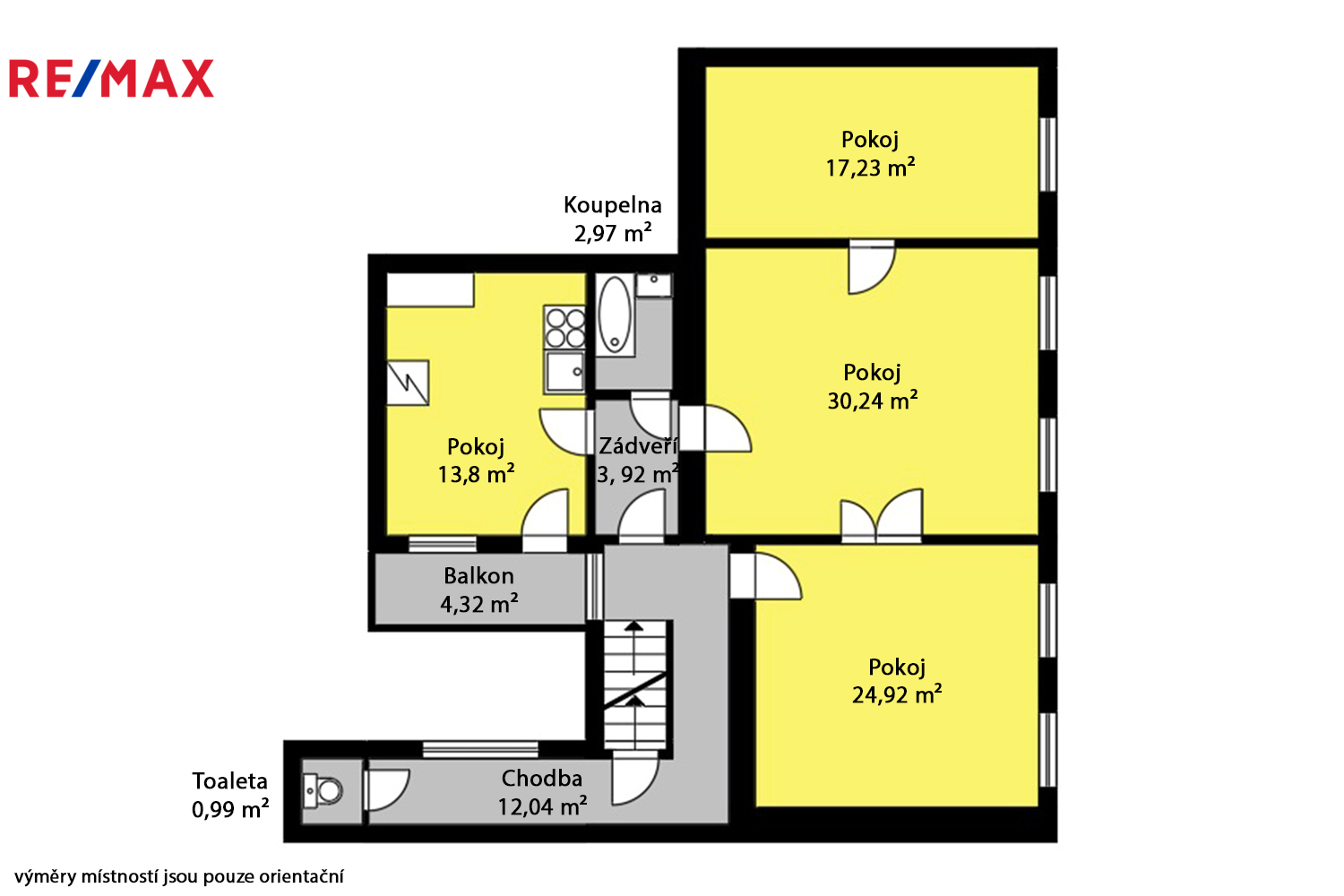
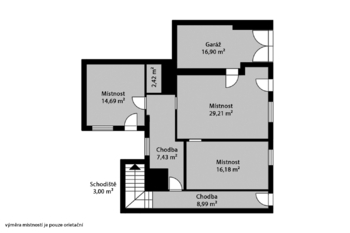
Dovolujeme si Vám nabídnout prodej rodinného domu s nezaměnitelnou atmosférou v samotném srdci Kutné Hory na adrese Jungmannovo náměstí. Řadový dům z roku 1870, postavený z kamene a cihel, se nachází v památkové rezervaci a nabízí jedinečnou možnost citlivé rekonstrukce s respektem k historii. Dům je z části podsklepený, má dvě nadzemní podlaží a půdu. Uvedené výměry jsou orientační. V 1. NP (přízemí, výměra 95,82 m2) se nachází nebytové prostory tvořené čtyřmi místnostmi, vhodné například pro ateliér, dílnu, galerii či menší obchod, a dále vstup na dvorek. Na dvorku je samostatná místnost (4,10 m2) a venkovní WC (1,2 m2). Ve 2. NP (1. nadzemní podlaží/obytné, užitná plocha 106,11 m2 + balkon 4,32 m2) je bytová jednotka 3+1, koupelna a samostatné WC. Ohřev vody zajišťuje karma a vytápění WAW + radiátory. Ve 3. nadzemní úrovni (půda, plocha 104,25 m2) je krov o výšce cca 175 cm, půda může posloužit jako úložný prostor či případná rezerva pro budoucí rozšíření (dle povolení památkové péče). V letech 1992/1993 proběhla rekonstrukce stropů a kanalizace; ve dvou místnostech jsou hurdiskové stropy, ostatní stropy dřevěné. Okna jsou dřevěná, přibližně 40 let stará, jednosklo. Podlahy v přízemí jsou betonové. Plyn je do domu zaveden, plynový kotel je cca 18 let starý, v patře je umístěna expanzní nádoba. Komín byl před osmi lety vyvložkován ve 2. NP pro krbová kamna (v 1. NP vyvložkování není). Elektřina je v hliníku 220/380 V, rozvody vody jsou původní (ne v plastu). Dům svým charakterem láká milovníky staré Kutné Hory a je ideální pro kombinaci bydlení a podnikání – nebytový prostor v přízemí nabízí široké možnosti využití. Počítejte s modernizací oken, elektroinstalace, rozvodů vody a případně systému vytápění; všechny zásahy je třeba řešit s ohledem na požadavky památkové péče. Lokalita zajišťuje bezprostřední dostupnost památek, kaváren, restaurací, škol i služeb, přičemž dům leží přibližně 5 minut chůze od vlakového nádraží – po cestě z nádraží směrem na náměstí. Zároveň je zde pohodlné spojení v rámci města i směrem na Prahu a Čáslav. Pokud hledáte dům s příběhem, který si přetvoříte dle svých představ, a chcete žít i tvořit v jedné z nejkouzelnějších lokalit v Česku, tato nemovitost je připravena na vaši další kapitolu. Pro více informací a sjednání prohlídky nás kontaktujte.
Cena:
6 700 000 CZK / za nemovitost
Poznámka k ceně:
Cena včetně provize a právních služeb
Upozornění:
Prodávající si vyhrazuje právo vybrat kupujícího na základě jím zvolených kritérií.
RX finance

Spočítejte si splátku hypotéky

Na kolik vás vyjde pořízení vlastního bydlení? Zadejte pár informací do naší hypoteční kalkulačky a hned si prohlédněte výsledek.

Kupní cena nemovitosti

6 700 000 Kč

Výše hypotéky

Doba splácení

Vypočítaná měsíční splátka

Úroková sazba 3.6%

260 990 Kč

Hypotéku zařídíme za vás

Ušetřete svůj čas i nervy. Naši makléři zařídí veškeré papírování a dovedou vás až k úspěšnému podpisu smlouvy v bance.

Nechte nám kontakt, náš makléř se v pracovní dny ozve do 24 hodin

* – toto pole je nutné vyplnit
Zuzana Beňová, DiS.
RE/MAX G8 Reality 4
Václavská 864
Kolín, 28002
Česká republika
Tel. na makléře: +420 725 003 287
Tel. do kanceláře: +420 603 392 333
E-mail: zuzana.benova@re-max.cz

Potřebujete poradit/máte zájem o prohlídku?

* – toto pole je nutné vyplnit

Podrobné informace

Číslo zakázky:
ID 059-NP07695
Poloha objektu:
Řadový
Počet podlaží v objektu:
2
Užitná plocha:
200 m²
Plocha parcely:
159 m²
Druh objektu:
Smíšená
Stav objektu:
Dobrý
Typ nemovitosti:
Domy a vily
Doprava:
Vlak, Silnice, Autobus
Elektřina:
230 V, 400 V
Odpad:
Kanalizace
Zastavěná plocha:
145 m²
Plyn:
Plynovod
Počet podlaží pod zemí:
1
Typ domu:
Patrový
Umístění objektu:
Centrum obce
Umístění v chráněných lokalitách:
Ochranné pásmo
Voda:
Dálkový rozvod
Energetická náročnost budovy:
G