Translate with 
MENU ZAVŘÍT

Prodej domu 250 m², Jesenice (ID 201-NP03248)

ulice Zdiměřická, Jesenice mapa

22 500 000 Kč ( za nemovitost)
GMimořádně
nehospodárná

5+
250 m2
870 m2
1
Exkluzivně

Prodej rodinného domu 6+kk s fotovoltaickou elektrárnou. Zdiměřická ul., Jesenice u Prahy.

Ve výhradním zastoupení nabízím k prodeji výjimečný rodinný dům 6+kk s užitnou plochou 250 m², situovaný na prostorném pozemku o rozloze 870 m² v klidné a vyhledávané části Jesenice u Prahy.
Dům byl prošel velkou rekonstrukcí během r. 2022 a 2023. Nabízí moderní vybavení včetně fotovoltaické elektrárny o výkon 8,7 kWp, klimatizace ve všech místnostech a zabezpečovací systém Jablotron. Je v garáži také vybudovaná nabíjecí stanice pro elektromobily.
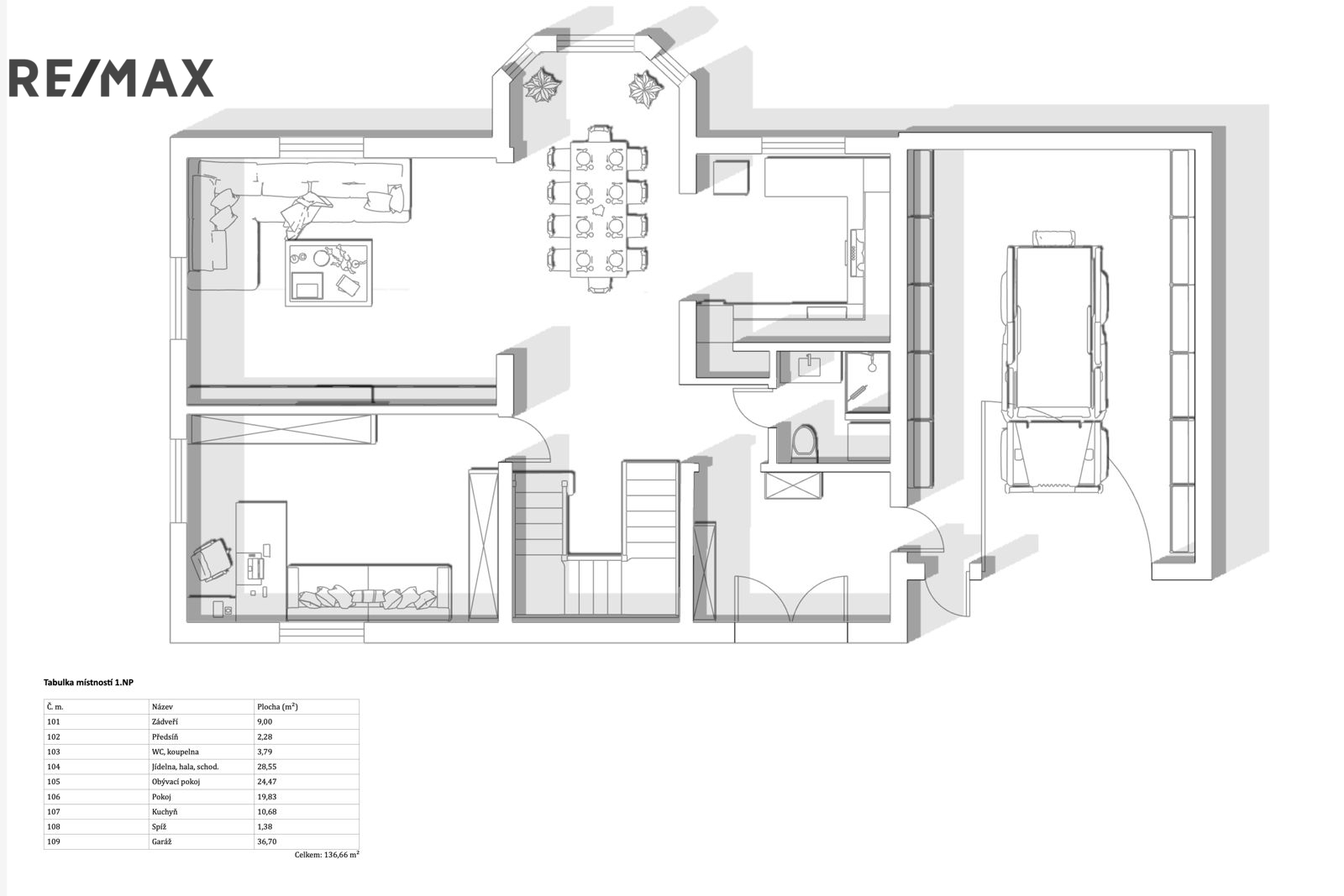
Dispozice domu:
V přízemí se nachází prostorný a světlý obývací pokoj s přímým vstupem do jídelny. Celková plocha místnosti je 24,47 m². Je zde velkorysý jídelní prostor s dostatkem denního světla s přímým vstupem na zahradu. Celková plocha jídelny je 28,55 m². Kuchyňský kout s plně vybavenou a moderními spotřebiči. Celková plocha kuchyně je 11,25 m². Vedle obývacího pokoje je pracovna / pokoj vhodný jako kancelář, dětský pokoj nebo pokoj pro hosty. Plocha této místnosti je 19,83 m².
V prvním patře je hlavní ložnice s příjemnou atmosférou a dostatkem úložného prostoru. Plocha tohoto pokoje je 22,22 m². Další jsou zde 2 ložnice s plochou 22,20m² a 18,40m²
V patře je koupelna se saunou, rohovou vanou i sprchovým koutem a finskou saunou. Nachází se zde také pračka a sušička. Celková plocha koupelny je 17,48 m².
Zahrada s krytou terasou ideální pro rodinné posezení. Součástí je prostor pro bazén a místo pro dětské hry.
Lokalita – Jesenice: Jesenice (okres Praha-západ) je moderní předměstí Prahy, které se nachází přibližně 15 kilometrů jižně od centra města. Město je známé jako jedno z nejoblíbenějších míst pro pohodlné příměstské bydlení v blízkosti Prahy. Nabízí:
- dobře rozvinutou infrastrukturu (obchody, školy, mateřské školy, sportovní areály),
- výborné dopravní spojení s Prahou — autem i veřejnou dopravou,
- klidné a zelené prostředí s lesy a přírodou v okolí,
- převahu nízkopodlažní zástavby s útulnými rodinnými domy.
Díky spojení klidného prostředí a blízkosti hlavního města je Jesenice velmi oblíbená mezi rodinami s dětmi i lidmi, kteří hledají pohodlné bydlení v dosahu Prahy.
Dům je v osobním vlastnictví. V případě zájmu o financování jsme připraveni pomoci s výběrem a zajištěním hypotéky – nabízíme širokou škálu výhodných možností od různých bank.
Pro více informací a sjednání prohlídky kontaktujte makléře nemovitosti.
Cena:
22 500 000 CZK / za nemovitost
Poznámka k ceně:
Upozornění:
Prodávající si vyhrazuje právo vybrat kupujícího na základě jím zvolených kritérií.
RX finance

Spočítejte si splátku hypotéky

Na kolik vás vyjde pořízení vlastního bydlení? Zadejte pár informací do naší hypoteční kalkulačky a hned si prohlédněte výsledek.

Kupní cena nemovitosti

22 500 000 Kč

Výše hypotéky

Doba splácení

Vypočítaná měsíční splátka

Úroková sazba 3.6%

260 990 Kč

Hypotéku zařídíme za vás

Ušetřete svůj čas i nervy. Naši makléři zařídí veškeré papírování a dovedou vás až k úspěšnému podpisu smlouvy v bance.

Nechte nám kontakt, náš makléř se v pracovní dny ozve do 24 hodin

* – toto pole je nutné vyplnit
Cuong Nguyen
RE/MAX Atrium
Podolská 811/138
Praha 4 - Podolí, 14700
Česká republika
Tel. na makléře: +420 776 585 499
Tel. do kanceláře: +420 606 726 515
E-mail: cuong.nguyen@re-max.cz

Potřebujete poradit/máte zájem o prohlídku?

* – toto pole je nutné vyplnit

Podrobné informace

Číslo zakázky:
ID 201-NP03248
Poloha objektu:
Samostatný
Počet podlaží v objektu:
1
Užitná plocha:
250 m²
Plocha parcely:
870 m²
Druh objektu:
Cihlová
Stav objektu:
Po rekonstrukci
Typ nemovitosti:
Domy a vily
Charakter okolní zástavby:
Obytná
K nastěhování:
1. 11. 2025
Elektřina:
230 V, 400 V
Garáž:
Ano
Odpad:
Kanalizace
Plocha zahrady:
520 m²
Zastavěná plocha:
165 m²
Plyn:
Plynovod
Typ domu:
Přízemní
Umístění objektu:
Klidná část obce
Vybaveno:
Ano
Energetická náročnost budovy:
G