Translate with 
MENU ZAVŘÍT

Prodej bytu 3+kk v osobním vlastnictví 84 m², Praha 9 - Vysočany (ID 314-NP00266)

ulice Na Harfě, Praha 9 – Vysočany mapa

9 900 000 Kč ( za nemovitost)
CÚsporná

kk
3x
84 m2
2/10
Exkluzivně

Moderní byt 3+kk s terasou do klidného vnitrobloku v oblíbené lokalitě Na Harfě

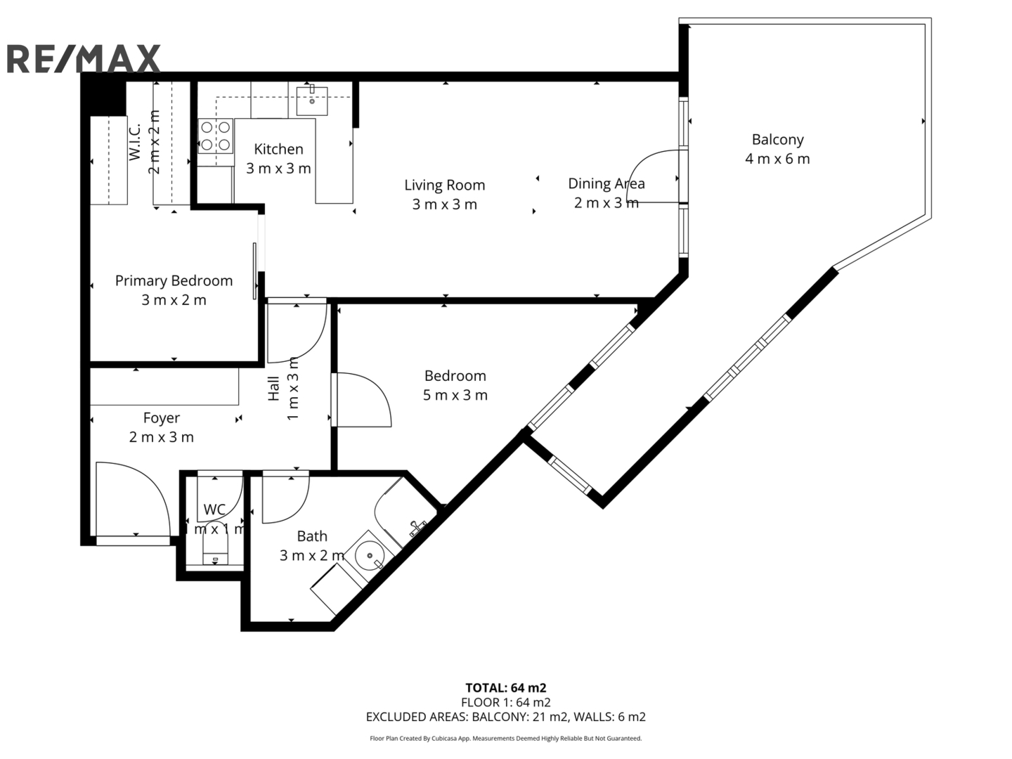
Pokud hledáte pohodlné a moderní bydlení s výbornou dostupností v osobním vlastnictví, právě jste ho našli. Tento příjemný byt o dispozici 3+kk (64 m²) s velkou terasou orientovanou do klidného vnitrobloku nabízí kombinaci městského komfortu a klidné atmosféry.

Byt byl důmyslně oproti původní dispozici upraven na 3+kk, díky čemuž poskytuje více prostoru a praktičnosti pro každodenní život.

Nachází se v oblíbené rezidenční části Na Harfě, jen pár kroků od O2 areny a nádraží Praha–Libeň, odkud se během pár minut dostanete do centra. V okolí najdete veškerou občanskou vybavenost, oblíbené procházkové trasy podél Rokytky, kavárny, restaurace i nákupní centrum Galerie Harfa.

Interiér je promyšleně řešený – obývací pokoj s jídelním koutem navazuje na terasu, která poskytuje příjemné posezení v soukromí. Kuchyň je plně vybavená a v koupelně se nachází pohodlná vana a dostatek úložného prostoru díky vestavným skříním. K bytu také náleží praktická sklepní kóje.

Výhody nemovitosti:

Skvělá dostupnost a atraktivní lokalita
Klidné prostředí vnitrobloku
Prostorná terasa 21 m²
Sklep v ceně
Blízko O2 areny a nádraží Praha–Libeň
Důmyslně upravená dispozice na 3+kk

Cena je včetně provize i všech souvisejících poplatků.
Cena:
9 900 000 CZK / za nemovitost
Poznámka k ceně:
Upozornění:
Prodávající si vyhrazuje právo vybrat kupujícího na základě jím zvolených kritérií.
RX finance

Spočítejte si splátku hypotéky

Na kolik vás vyjde pořízení vlastního bydlení? Zadejte pár informací do naší hypoteční kalkulačky a hned si prohlédněte výsledek.

Kupní cena nemovitosti

9 900 000 Kč

Výše hypotéky

Doba splácení

Vypočítaná měsíční splátka

Úroková sazba 3.6%

260 990 Kč

Hypotéku zařídíme za vás

Ušetřete svůj čas i nervy. Naši makléři zařídí veškeré papírování a dovedou vás až k úspěšnému podpisu smlouvy v bance.

Nechte nám kontakt, náš makléř se v pracovní dny ozve do 24 hodin

* – toto pole je nutné vyplnit
Jan Pech
RE/MAX Stability
Sofijské náměstí 3404/3
Praha 4 , 14300
Česká republika
Tel. na makléře: +420 735 713 990
Tel. do kanceláře: +420 735 713 990
E-mail: jan.pech@re-max.cz

Potřebujete poradit/máte zájem o prohlídku?

* – toto pole je nutné vyplnit

Podrobné informace

Číslo zakázky:
ID 314-NP00266
Dispozice:
3+kk
Číslo podlaží:
2
Počet podlaží v objektu:
10
Podlahová plocha:
84 m²
Druh objektu:
Cihlová
Stav objektu:
Velmi dobrý
Vlastnictví:
Osobní
Typ nemovitosti:
Byty
Charakter okolní zástavby:
Obchodní a obytná
Doprava:
Vlak, Dálnice, Silnice, MHD, Autobus
Elektřina:
230 V
Odpad:
Kanalizace
Užitná plocha:
61 m²
Počet podlaží pod zemí:
2
Umístění objektu:
Rušná část obce
Vybaveno:
Ano
Výtah:
Ano
Energetická náročnost budovy:
C
Měrná vypočtená roční spotřeba energie v kWh/m²/rok:
66