Translate with 
MENU ZAVŘÍT

Prodej domu 952 m², Všeruby (ID 334-NP00170)

Všeruby – část obce Klenovice mapa

7 000 000 Kč ( za nemovitost)

952 m2
2493 m2
2
Exkluzivně

Atypická rezidence v obci Klenovice

Exkluzivně Vám nabízíme k prodeji atypickou rezidenci s obytným podkrovím v obci Klenovice, vzdálené pouhých 10 minut jízdy autem od Plzně. Tento rozsáhlý objekt o celkové zastavěné ploše 1 379 m² se zahradou o výměře 1 114 m² představuje jedinečnou příležitost pro komerční využití i komfortní rodinné bydlení.

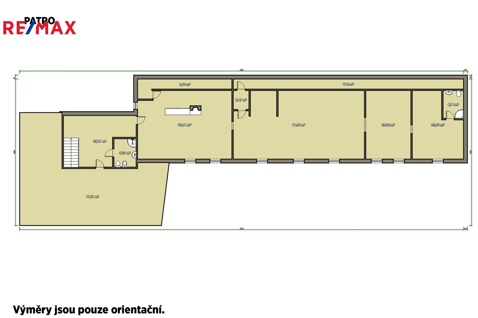
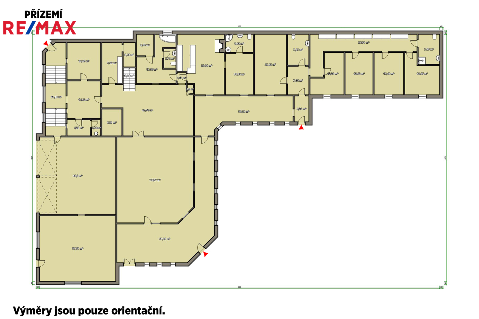
Objekt je rozdělen do dvou nadzemních podlaží přičemž první podlaží disponuje užitnou plochou přibližně 624 m² a druhé 328 m². Celý objekt prošel v roce 2008 nedokončenou rekonstrukcí, vytápění je zde řešeno pomocí podlahového topení s elektrickými kotli + zde také nalezete dva krby. Ohřev vody je zajištěn díky bojleru a pitná voda je k dispozici z vlastní studny. Odpad je zde řešen pomocí ČOV (čističky odpadních vod). Elektroinstalace je zde téměř kompletně v mědi, osvětlení je zajištěno převážně bodovými světly a okna jsou zde kompletně plastová s izolačními dvojskly. K dispozici je také v přízemí domu garáž s parkovacím stáním minimálně pro tři osobní automobily, dále je také možnost využít prostor přímo před vstupem do domu jako alespoň dalších 5 parkovacích stání.

Dům byl původním majitelem navržen jako rekreační a relaxační areál s možností provozu wellness centra, lázeňských či rehabilitačních služeb a i nadále objekt nabízí díky svému dispozičnímu řešení a poloze široké možnosti podnikání v souladu s územním plánem kde je objekt veden v plochách - smíšené obytné městské (SM).

Výhodou tohoto objektu je jen málo vídaná užitná plocha téměř 1 000 m² , vlastní zdroj vody, soukromí, prostor a variabilita využití.
Tato nemovitost je ideální pro ty, kdo hledají prostor, originalitu a investiční potenciál.

V případě zájmu zajistíme kompletní služby spojené s výhodným financováním.

Pokud vás nabídka zaujala, neváhejte nás kontaktovat a rádi se s vámi setkáme na osobní prohlídce.
Cena:
7 000 000 CZK / za nemovitost
Poznámka k ceně:
Upozornění:
Prodávající si vyhrazuje právo vybrat kupujícího na základě jím zvolených kritérií.
RX finance

Spočítejte si splátku hypotéky

Na kolik vás vyjde pořízení vlastního bydlení? Zadejte pár informací do naší hypoteční kalkulačky a hned si prohlédněte výsledek.

Kupní cena nemovitosti

7 000 000 Kč

Výše hypotéky

Doba splácení

Vypočítaná měsíční splátka

Úroková sazba 3.6%

260 990 Kč

Hypotéku zařídíme za vás

Ušetřete svůj čas i nervy. Naši makléři zařídí veškeré papírování a dovedou vás až k úspěšnému podpisu smlouvy v bance.

Nechte nám kontakt, náš makléř se v pracovní dny ozve do 24 hodin

* – toto pole je nutné vyplnit
Patrik Ševela
RE/MAX Smart
Koterovská 21
Plzeň, 32600
Česká republika
Tel. na makléře: +420 725 577 407
Tel. do kanceláře: +420 702 229 948
E-mail: patrik.sevela@re-max.cz

Potřebujete poradit/máte zájem o prohlídku?

* – toto pole je nutné vyplnit

Podrobné informace

Číslo zakázky:
ID 334-NP00170
Poloha objektu:
Řadový
Počet podlaží v objektu:
2
Užitná plocha:
952 m²
Plocha parcely:
2 493 m²
Druh objektu:
Cihlová
Stav objektu:
Dobrý
Typ nemovitosti:
Domy a vily
K nastěhování:
10. 10. 2025
Doprava:
Silnice
Elektřina:
230 V
Garáž:
Ano
Odpad:
Čistička odpadních vod pro celý objekt
Plocha zahrady:
1 114 m²
Zastavěná plocha:
1 379 m²
Počet parkovacích míst:
5
Typ domu:
Patrový
Umístění objektu:
Okraj obce