Translate with 
MENU ZAVŘÍT

Prodej bytu 2+kk v osobním vlastnictví 67 m², Praha 9 - Hloubětín (ID 320-NP00232)

ulice Poděbradská, Praha 9 – Hloubětín mapa

9 850 000 Kč ( za nemovitost)
BVelmi
úsporná

kk
2x
67 m2
3/6
Exkluzivně Rezervace

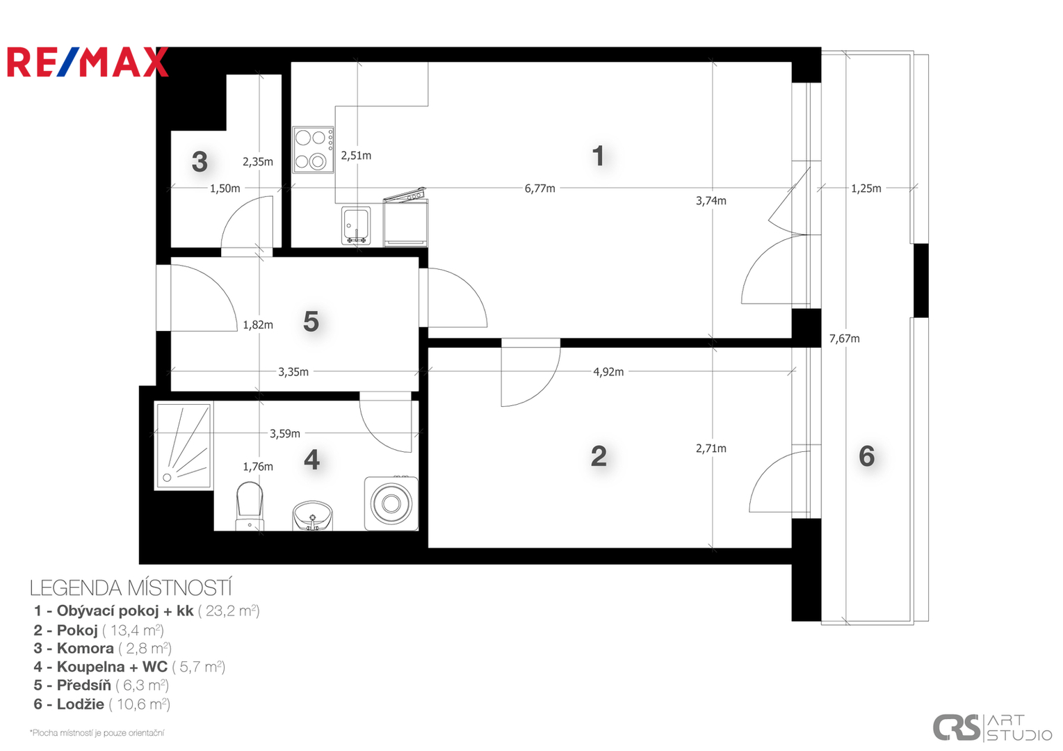
Nový slunný byt 2+kk 56 m² s lodžií 10,6 m², velkorysé parkovací stání a nadstandartní sklep

Byt je ideální volbou pro ty, kteří hledají moderní městské bydlení — domov, kde můžete po práci vypnout, ale přitom zůstat v dosahu města.

Exkluzivně nabízíme k prodeji nový byt 2+kk o podlahové ploše 56 m² s prostornou lodžií 10,6 m², situovanou do zeleného srdce nově vznikající rezidenční čtvrti Tesla Hloubětín.
Byt se nachází ve 2. patře (3. NP) a spojuje vše, co si od současného bydlení přejete — funkční dispozici, elegantní styl a pocit bezpečí.

KAŽDÝ DETAIL JE PROMYŠLENÝ
Dominantou bytu je obývací pokoj s kuchyňským koutem o velikosti 23,2 m² s pohodlným vstupem do lodžie.
Velkoformátová okna sahající od stropu po zem zajištují světlo po celý den a propojují byt s klidným vnitroblokem plným zeleně.
Rovněž z ložnice (13,4 m²) je přímý vstup na lodžii, která je dostatečně velká na vytvoření zelené stěny nebo mini zahrádky.
Moderní kuchyňská linka je vybavena značkovými spotřebiči Electrolux a Liebherr – myčka, mikrovlnná trouba, sklokeramická deska i kombinovaná lednice s mrazákem se postará o to, abyste se mohli bez starostí nastěhovat.
Součástí vstupní haly je velká vestavěná skříň, která má dostatek prostoru pro uskladnění vašich věcí.
Praktickou součástí bytu je komora o velikosti (2,8 m²).
Koupelna se sprchou a s WC o velikosti (5,7 m²) je prostorná a připravená na instalaci pračky a sušičky a dalšího příslušenství.

K bytu náleží velkorysé parkovací stání vhodné i pro SUV za cenu 800.000,- Kč
Hned za parkovacím stání se nachází nadstandardně velký sklep o výměře 8,7 m² za cenu 300.000,- Kč.
Parkovací stání a sklep není součástí ceny bytu.

Projekt TESLA Hloubětín vzniká na místě původního areálu Tesly a proměňuje se v jednu z nejzelenějších moderních čtvrtí v Praze.
Najdete zde rozsáhlé vnitrobloky, parky, pěší zóny i dětská hřiště.
V přízemí domů postupně vznikají obchody, kavárny a služby.
Nechybí školka, fitness zóny a příjemné cesty pro běhání či jízdu na kole.

SKVĚLÁ DOPRAVNÍ DOSTUPNOST
• Metro B – Hloubětín je jen pár minut pěšky
• Byt je přímo u tramvajové zastávky Nademlejnská
• Rychlé napojení na Pražský okruh a centrum města

Tento byt si vás získá hned při první návštěvě.
Těším se na vás osobně na prohlídce.
Cena:
9 850 000 CZK / Rezervováno
Poznámka k ceně:
Upozornění:
Prodávající si vyhrazuje právo vybrat kupujícího na základě jím zvolených kritérií.
RX finance

Spočítejte si splátku hypotéky

Na kolik vás vyjde pořízení vlastního bydlení? Zadejte pár informací do naší hypoteční kalkulačky a hned si prohlédněte výsledek.

Kupní cena nemovitosti

9 850 000 Kč

Výše hypotéky

Doba splácení

Vypočítaná měsíční splátka

Úroková sazba 3.6%

260 990 Kč

Hypotéku zařídíme za vás

Ušetřete svůj čas i nervy. Naši makléři zařídí veškeré papírování a dovedou vás až k úspěšnému podpisu smlouvy v bance.

Nechte nám kontakt, náš makléř se v pracovní dny ozve do 24 hodin

* – toto pole je nutné vyplnit
Mgr. Marie Gűtlová
RE/MAX Welcome Home
Zenklova 2245/29
Praha 8 - Libeň, 18000
Česká republika
Tel. na makléře: +420 724 670 753
Tel. do kanceláře: +420 602 400 024
E-mail: marie.gutlova@re-max.cz

Potřebujete poradit/máte zájem o prohlídku?

* – toto pole je nutné vyplnit

Podrobné informace

Číslo zakázky:
ID 320-NP00232
Dispozice:
2+kk
Číslo podlaží:
3
Počet podlaží v objektu:
6
Podlahová plocha:
67 m²
Druh objektu:
Cihlová
Stav objektu:
Novostavba
Vlastnictví:
Osobní
Typ nemovitosti:
Byty
Bezbariérový byt:
Ano
Charakter okolní zástavby:
Obytná
K nastěhování:
10. 10. 2025
Garáž:
Ano
Odpad:
Kanalizace
Užitná plocha:
56 m²
Plyn:
Plynovod
Počet podlaží pod zemí:
3
Telekomunikace:
Internet
Umístění objektu:
Centrum obce
Vybaveno:
Ano
Výtah:
Ano
Energetická náročnost budovy:
B