Translate with 
MENU ZAVŘÍT

Prodej domu 230 m², Praha 5 - Slivenec (ID 010-NP04945)

ulice Za Fořtem, Praha 5 – Slivenec mapa

37 200 000 Kč ( za nemovitost)
GMimořádně
nehospodárná

5+
230 m2
577 m2
3
Exkluzivně

Krásný a prostorný dům 5+1 s bazénem a terasou, Praha 5 - Slivenec

Exkluzivně nabízíme krásný rodinný dům nacházející se na jedinečném místě, ve zcela klidné slepé ulici, v rezidenční a žádané lokalitě Praha 5 – Slivenec.

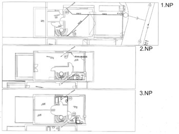
Zděný dům s celkovou užitnou plochou 230 m2 má tři podlaží a obsahuje skvěle propojený obytný prostor (kuchyň se vstupem na terasu a obývací pokoj s navazující velkou zimní zahradou, tři ložnice, tři šatny, koupelnu s WC, samostatné WC, technickou místnost a sklad. Další koupelnu lze realizovat přímo u hlavní ložnice rodičů.

Pozemek je ve dvou úrovních, kdy v dolní části můžete parkovat další dva vozy před garáží. V horní části dokonale udržované osvětlené zahrady lze relaxovat ve velkém bazénu (7 m x 3 m s posuvným krytem) nebo v zastřešeném posezení s krbem. Zahrada má automatickou závlahu s napojením na vlastní studnu.
Na pozemku se dále nachází zahradní domek a místnost pro uskladnění sekačky na trávu.

Kolaudace zděného domu proběhla v roce 2009 a v loňském roce byl dům rekonstruován – nové podlahové krytiny (dřevěné podlahy Boma a velkoformátová dlažba), podlaha v garáži, plynový kotel Viesmann, umytí fasády párou, bazén má nové čerpadlo a ohřev vody, nový přívod vody do domu.

V koupelnách byly použity nadstandardní zařizovací předměty, vč. dlažby a obkladů.

Interiér domu je vkusně zařízen nábytkem, který je součástí kupní ceny. Kuchyňská linka je ve vysoké kvalitě se spotřebiči zn. Bosch. Její součástí je i vestavěná vinotéka zn. Siemens. V obývacím pokoji je nová sedačka Madame Windsor. Veškerý nábytek Kare.

Dům je také vybaven zabezpečovacím zařízením, vč. kamer, klimatizací a domovním telefonem se vzdáleným ovládáním a velkým trezorem.

Tato energeticky nenáročná budova se solárními panely má nízké měsíční náklady.

PENB se v současné době zpracovává, z tohoto důvodu uvádíme energetickou třídu G.

Nedaleko se nachází konečná zastávka tramvaje Holyně s rychlou dostupností do centra města. Autem je od domu rychlé a skvělé napojení na pražský okruh.
V okolí je veškerá občanská vybavenost – výborné nákupní možnosti v nedalekém hypermarketu Kaufland, mateřská škola, základní škola, pošta, poliklinika, dětské hřiště, aquapark Hlubočepy.
Doporučuji prohlídku této výjimečné nemovitosti.
Cena:
37 200 000 CZK / za nemovitost
Poznámka k ceně:
cena je včetně provize a veškerého právního servisu
Upozornění:
Prodávající si vyhrazuje právo vybrat kupujícího na základě jím zvolených kritérií.
RX finance

Spočítejte si splátku hypotéky

Na kolik vás vyjde pořízení vlastního bydlení? Zadejte pár informací do naší hypoteční kalkulačky a hned si prohlédněte výsledek.

Kupní cena nemovitosti

37 200 000 Kč

Výše hypotéky

Doba splácení

Vypočítaná měsíční splátka

Úroková sazba 3.6%

260 990 Kč

Hypotéku zařídíme za vás

Ušetřete svůj čas i nervy. Naši makléři zařídí veškeré papírování a dovedou vás až k úspěšnému podpisu smlouvy v bance.

Nechte nám kontakt, náš makléř se v pracovní dny ozve do 24 hodin

* – toto pole je nutné vyplnit
Otakar Schuma
RE/MAX Search
Na bělidle 309/31
Praha 5 - Smíchov, 15000
Česká republika
Tel. na makléře: +420 777 051 051
Tel. do kanceláře: +420 734 526 176
E-mail: otakar.schuma@re-max.cz

Potřebujete poradit/máte zájem o prohlídku?

* – toto pole je nutné vyplnit

Podrobné informace

Číslo zakázky:
ID 010-NP04945
Poloha objektu:
Řadový
Počet podlaží v objektu:
3
Užitná plocha:
230 m²
Plocha parcely:
577 m²
Druh objektu:
Cihlová
Stav objektu:
Velmi dobrý
Typ nemovitosti:
Domy a vily
Elektřina:
230 V
Garáž:
Ano
Odpad:
Kanalizace
Zastavěná plocha:
86 m²
Plyn:
Plynovod
Počet parkovacích míst:
2
Typ domu:
Patrový
Umístění objektu:
Klidná část obce
Voda:
Dálkový rozvod
Vybaveno:
Ano
Energetická náročnost budovy:
G