Translate with 
MENU ZAVŘÍT

Prodej bytu 2+kk v osobním vlastnictví 47 m², Kořenov (ID 059-NP07698)

Kořenov, okres Jablonec nad Nisou mapa

2 850 000 Kč ( za nemovitost)
GMimořádně
nehospodárná

kk
2x
47 m2
2/3
Exkluzivně Rezervace

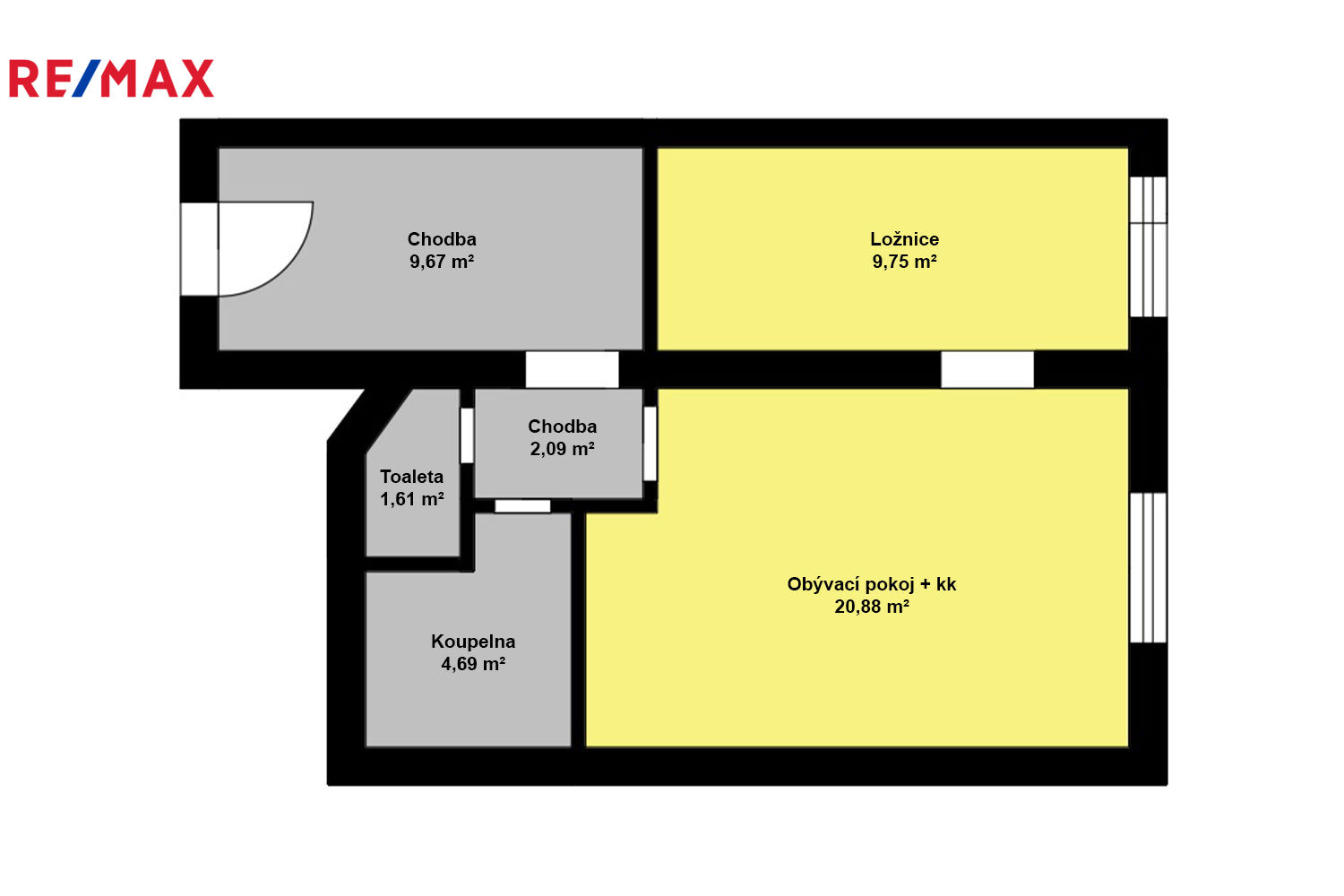
Prodej horského bytu 2+kk/47m2 ve 2. NP cihlového domu s nízkými náklady na provoz v Kořenově.

Výhradně Vám představujeme byt v osobním vlastnictví pro letní i zimní rekreaci či trvalé bydlení s nízkými náklady na provoz na horách o velikosti 2+kk/47,6m2 ve 2. NP domu z 3 NP bez výtahu. Byt je po kompletní rekonstrukci z roku 2021 (koupelny, podlahy, stěny, okna – dvojskla, elektřina). Okna bytu jsou plastová a orientovaný na jihovýchod. Byt se nachází v Kořenově v její části tzv. Dolním Kořenově. Dům se sestává z 18 bytových jednotek, kde je v každém patře po šesti bytech. V domě proběhla rekonstrukce chodby a schodiště, cihlový zděný dům je z roku cca 1930, rekonstrukcí již prošlo: (nová střecha, nová plastová okna, nové podlahy, izolace-podříznutí domu, sítě, nová přední fasáda). V bytě je vytápění přes el. konvektory zn. SOLIUS II., voda je obecní, kanalizace obecní, ohřev vody je přes el. boiler.

Součástí bytu je nová kuchyňská linka se spotřebiči (lednice zn. ZANUSSI, trouba, sklokeramická deska), patrová postel, stůl, židle, skříně atd., vše je v ceně bytu. Nová koupelna se sprchovým koutem a samostatné WC, el. žebřinové topení, dlažba. Obývací pokoj propojený s kuchyňským koutem, vše útulně a nově zařízeno. Pokoj na spaní má na míru postavenou postel se schody a tím se vytvořilo místo pro dalši spaní dole pod ní – počet míst na spaní až šest 2-2-2. Parkovací stání je před domem na společném pozemku, který je k domu. V domě není žádná místnost na lyže ani sklepy - ve výstavbě.

Dům je v klidné lokalitě cca 2 km od centra Kořenova, kousek od silnice směr Harrachov 5 km, zastávka autobusu Praha-Černý most-Kořenov-Harrachov 400 m od domu/bytu.
Příjezdová komunikace k domu je asfaltová v zimě je dům dobře přístupný. Krásné místo jak na rekreaci, kola, pronájem, bydlení nebo kombinaci všeho dohromady.

Náklady na provoz bytu jsou: 2 543 Kč (voda, elektřina, poplatky SVJ, teplo).

Byt je možné financovat hypotékou, kterou Vám rychle vyřídíme. V případě zájmu o více informací k bytu a pro domluvení prohlídky, mě kontaktuje telefonicky či emailem.
Cena:
2 850 000 CZK / Rezervováno
Poznámka k ceně:
Cena včetně provize a právních služeb
Upozornění:
Prodávající si vyhrazuje právo vybrat kupujícího na základě jím zvolených kritérií.
RX finance

Spočítejte si splátku hypotéky

Na kolik vás vyjde pořízení vlastního bydlení? Zadejte pár informací do naší hypoteční kalkulačky a hned si prohlédněte výsledek.

Kupní cena nemovitosti

2 850 000 Kč

Výše hypotéky

Doba splácení

Vypočítaná měsíční splátka

Úroková sazba 3.6%

260 990 Kč

Hypotéku zařídíme za vás

Ušetřete svůj čas i nervy. Naši makléři zařídí veškeré papírování a dovedou vás až k úspěšnému podpisu smlouvy v bance.

Nechte nám kontakt, náš makléř se v pracovní dny ozve do 24 hodin

* – toto pole je nutné vyplnit
Nikol Kiššová
RE/MAX G8 Reality 4
Václavská 864
Kolín, 28002
Česká republika
Tel. na makléře: +420 604 442 422
Tel. do kanceláře: +420 603 392 333
E-mail: nikol.kissova@re-max.cz

Potřebujete poradit/máte zájem o prohlídku?

* – toto pole je nutné vyplnit

Podrobné informace

Číslo zakázky:
ID 059-NP07698
Dispozice:
2+kk
Číslo podlaží:
2
Počet podlaží v objektu:
3
Podlahová plocha:
47 m²
Druh objektu:
Cihlová
Stav objektu:
Velmi dobrý
Vlastnictví:
Osobní
Typ nemovitosti:
Byty
K nastěhování:
14. 10. 2025
Odpad:
Kanalizace
Užitná plocha:
47 m²
Plyn:
Plynovod
Umístění objektu:
Okraj obce
Vybaveno:
Ano
Energetická náročnost budovy:
G