Translate with 
MENU ZAVŘÍT

Pronájem ubytovacího zařízení 280 m², Praha 4 - Krč (ID 096-NP05735)

ulice Budějovická, Praha 4 – Krč mapa

120 000 Kč (bez DPH, za měsíc)
DMéně
úsporná

280 m2
326 m2
6
Exkluzivně

Pronájem 4 bytů u metra Kačerov

Bezprostředně u metra Kačerov nabízíme k pronájmu 4 byty v bytovém domě vhodné k poskytování ubytování a to jak krátkodobému pro turisty, tak dlouhodobému třeba pro zaměstnance Vaší firmy. Rovněž je možné byty upravit a využívat jako kanceláře.
Dispozice bytů:
2.NP: Bytová jednotka / kanceláře (99m2) 3+1 s terasou 76 m2 a garáží 24 m2
3.NP: Bytová jednotka 2+kk (36 m2)
3.NP: Bytová jednotka 2+kk s terasou (47 m2 + terasa 22 m2)
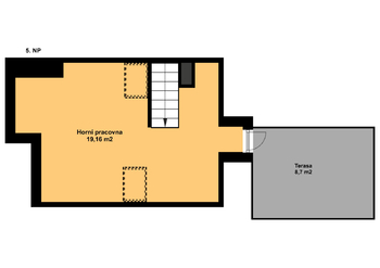
4.NP + 5.NP: Bytová jednotka 4 pokoje + terasa (97 m2 + terasa 9 m2)
Nájemné za uvedené prostory činí 120.000,-- Kč + 21% DPH měsíčně. Zálohy na služby 24.000,-- Kč/měsíc. Jistota požadována ve výši 2 měsíčních nájmů. Smlouva na dobu určitou 3 roky s možností prodloužení. Odměna realitní kanceláři činí jeden měsíční nájem + DPH. K dispozici od listopadu 2025 s možností úprav dle Vašich potřeb. Pronajímatel si vyhrazuje právo vybrat nájemce na základě jím zvolených kritérií. V případě zájmu o více informací prosím odepište na tento inzerát.
Cena:
120 000 CZK / za měsíc
Poznámka k ceně:
Upozornění:
Pronajímající si vyhrazuje právo vybrat nájemce na základě jím zvolených kritérií.
Bc. Jana Vítková
RE/MAX Diamond
Samcova 1177/1
Praha 1 - Nové Město, 11000
Česká republika
Tel. na makléře: +420 737 468 819
Tel. do kanceláře: +420 224 247 291
E-mail: jana.vitkova@re-max.cz

Potřebujete poradit/máte zájem o prohlídku?

* – toto pole je nutné vyplnit

Podrobné informace

Číslo zakázky:
ID 096-NP05735
Počet podlaží v objektu:
6
Užitná plocha:
280 m²
Druh objektu:
Cihlová
Stav objektu:
Velmi dobrý
Typ nemovitosti:
Hotely, penziony a restaurace
K nastěhování:
6. 11. 2025
Doprava:
Vlak, Dálnice, Silnice, MHD, Autobus
Garáž:
Ano
Odpad:
Kanalizace
Celková plocha:
280 m²
Zastavěná plocha:
326 m²
Plyn:
Plynovod
Počet kanceláří:
12
Počet parkovacích míst:
1
Počet podlaží pod zemí:
1
Telekomunikace:
Internet
Typ domu:
Patrový
Energetická náročnost budovy:
D