Translate with 
MENU ZAVŘÍT

Pronájem obchodních prostor 110 m², Nymburk (ID 059-NP07694)

ulice Drahelická, Nymburk mapa

15 000 Kč ( za měsíc)
GMimořádně
nehospodárná

110 m2
Exkluzivně Rezervace

Pronájem obchodních prostor 110 m2, Drahelická, Nymburk

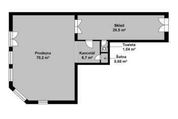
Nabízíme pronájem obchodních prostor o celkové velikosti 110 m2, v ulici Drahelická v Nymburce. Obchodní prostory s výlohou se nachází u frekventované silnice. Dispozice: hlavní prostor (prodejna) 70 m2, 2 místnosti - vhodné jako sklad 28,5 m2, a kancelář 7 m2 či zázemí (případně možné i rozšíření prodejny), WC s umyvadlem.
Prostory jsou vhodné například pro prodejnu, sídlo společnosti, kontaktní místo, kosmetické či kadeřnické služby apod.
K dispozici od 1.12.2025
Měsíční nájemné 15 000 Kč. Zálohy celkem cca 2.500 Kč (elektřinu a plyn si nájemce převede na sebe).
PENB štítek se zpracovává.
V případě zájmu o více informací či prohlídku kontaktujte makléřku nabídky.
Cena:
15 000 CZK / Rezervováno
Poznámka k ceně:
+ zálohy na energie, vratná kauce 20.000 Kč, provize RK 15.000 Kč
Upozornění:
Pronajímající si vyhrazuje právo vybrat nájemce na základě jím zvolených kritérií.
Markéta Langweil
RE/MAX G8 Reality 4
Václavská 864
Kolín, 28002
Česká republika
Tel. na makléře: +420 775 628 782
Tel. do kanceláře: +420 603 392 333
E-mail: marketa.langweil@re-max.cz

Potřebujete poradit/máte zájem o prohlídku?

* – toto pole je nutné vyplnit

Podrobné informace

Číslo zakázky:
ID 059-NP07694
Typ nemovitosti:
Komerční prostory
Druh prostor:
Obchodní
Číslo podlaží:
1
Plocha kanceláří:
110 m²
Druh objektu:
Smíšená
Stav objektu:
Velmi dobrý
K nastěhování:
1. 12. 2025
Elektřina:
230 V
Odpad:
Kanalizace
Celková plocha:
110 m²
Plyn:
Plynovod
Typ domu:
Patrový
Voda:
Dálkový rozvod
Energetická náročnost budovy:
G