Translate with 
MENU ZAVŘÍT

Pronájem obchodních prostor 116 m², Praha 9 - Vysočany (ID 201-NP03241)

ulice Kabešova, Praha 9 – Vysočany mapa

50 000 Kč ( za měsíc)
BVelmi
úsporná

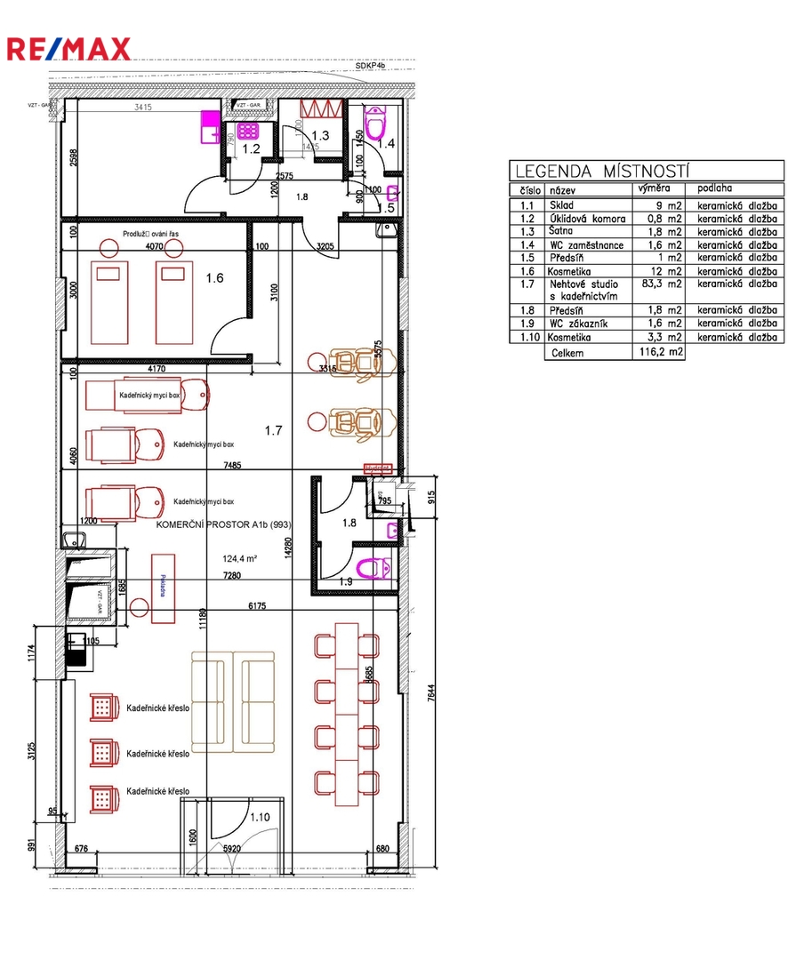
116 m2
Exkluzivně

Pronájem obchodních prostor 116m² Kabešova ul. Praha 9 - Vysočany

Ideální místo pro otevření kosmetického salonu, barbershop, nehtové studia, prodejny květin..atd.
Ve výhradním zastoupení Vám nabízíme k dlouhodobému pronájmu obchodní prostor v novostavbě v ulici Kabešova, Praha 9. Jedná se o obchodní prostor s celkovou plochou 116m², který se nachází v nově vznikající rezidenční projektu HARFA LIVING, Praha 9 - Vysočany.
Přímo před budovou je tramvajová zastávka Kabešova.
Pro více informací, prosím kontaktujte makléře nemovitosti..
Cena:
50 000 CZK / za měsíc
Poznámka k ceně:
+ Zálohy na služby, vodu a vytápění, Nová smlouva na elektřinu a provize pro RK
Upozornění:
Pronajímající si vyhrazuje právo vybrat nájemce na základě jím zvolených kritérií.
Cuong Nguyen
RE/MAX Atrium
Podolská 811/138
Praha 4 - Podolí, 14700
Česká republika
Tel. na makléře: +420 776 585 499
Tel. do kanceláře: +420 606 726 515
E-mail: cuong.nguyen@re-max.cz

Potřebujete poradit/máte zájem o prohlídku?

* – toto pole je nutné vyplnit

Podrobné informace

Číslo zakázky:
ID 201-NP03241
Typ nemovitosti:
Komerční prostory
Druh prostor:
Obchodní
Číslo podlaží:
1
Počet podlaží v objektu:
15
Plocha kanceláří:
116 m²
Druh objektu:
Cihlová
Stav objektu:
Novostavba
K nastěhování:
1. 11. 2025
Elektřina:
230 V
Celková plocha:
116 m²
Zastavěná plocha:
825 m²
Počet parkovacích míst:
1
Počet podlaží pod zemí:
1
Typ domu:
Přízemní
Umístění objektu:
Rušná část obce
Voda:
Dálkový rozvod
Energetická náročnost budovy:
B