Translate with 
MENU ZAVŘÍT

Prodej domu 75 m², Peruc (ID 205-NP12125)

Peruc – část obce Hřivčice mapa

3 490 000 Kč ( za nemovitost)
GMimořádně
nehospodárná

2x
75 m2
204 m2
2
Exkluzivně

Prodej rodinného domu 75 m² na parcele 204 m² v obci Hřivčice

Nabízíme k prodeji tradiční rodinný dům v obci Hřivčice, nedaleko Peruce v okrese Louny. Tato poctivá stavba s více než stoletou historií nabízí útulné bydlení ve dvou podlažích, menší zahradu, hospodářské zázemí a příjemnou atmosféru venkovského života.

Dům stojí na pozemku o velikosti 204 m², užitná plocha obytné části činí přibližně 75 m², a je ihned k užívání.

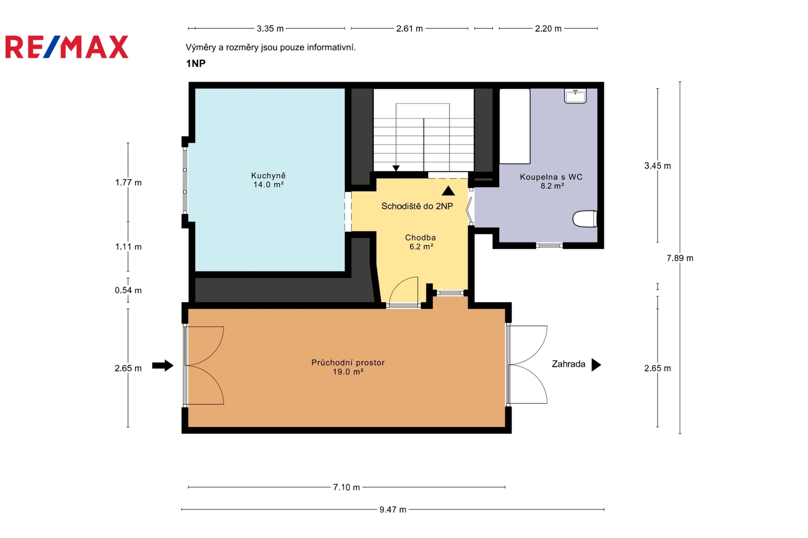
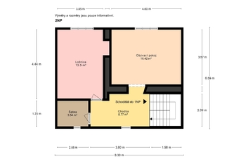
Do domu se vstupuje přes prostornou vstupní halu (19 m²), odkud se vchází hlavními dveřmi do obytné části. V přízemí se nachází předsíň (6,2 m²), kuchyně (14 m²) a koupelna (8,2 m²). V patře je prostorná chodba (8,77 m²), ložnice (13,5 m²), obývací pokoj (16,42 m²) a šatna (3,54 m²).

Za domem se nachází hospodářská budova a dílna, které spolu s vstupní halou tvoří praktické zázemí domu. Na tuto část přímo navazuje menší zahrada, ideální pro odpočinek nebo pěstování.

K domu je přivedena obecní voda, elektřina (230 V) i plyn, odpady jsou řešeny jímkou. Tepelné čerpadlo s rozvodem do radiátorů zajišťuje úsporné vytápění, o teplou vodu se stará elektrický bojler.

Obec Hřivčice nabízí klidné venkovské prostředí s výbornou dostupností služeb. V obci je menší obchod se smíšeným zbožím a autobusová zastávka. Ve 3 km vzdálené Peruci najdete školu, školku, poštu, lékaře i restaurace. Na dálnici D7 se dostanete za 10 minut, do Loun přibližně za 15 minut.

Pokud hledáte poctivý venkovský dům s duší, hospodářským zázemím a zahradou přímo u domu, kde můžete bydlet hned a postupně si ho upravit podle svých představ, tahle nemovitost stojí za vaši pozornost.

Koupi bytu lze financovat pomocí hypotečního úvěru, jež vám taktéž pomůžeme výhodně zařídit.

Spolupráce s konkurenčními realitními makléři vítána.
Cena:
3 490 000 CZK / za nemovitost
Poznámka k ceně:
Upozornění:
Prodávající si vyhrazuje právo vybrat kupujícího na základě jím zvolených kritérií.
RX finance

Spočítejte si splátku hypotéky

Na kolik vás vyjde pořízení vlastního bydlení? Zadejte pár informací do naší hypoteční kalkulačky a hned si prohlédněte výsledek.

Kupní cena nemovitosti

3 490 000 Kč

Výše hypotéky

Doba splácení

Vypočítaná měsíční splátka

Úroková sazba 3.6%

260 990 Kč

Hypotéku zařídíme za vás

Ušetřete svůj čas i nervy. Naši makléři zařídí veškeré papírování a dovedou vás až k úspěšnému podpisu smlouvy v bance.

Nechte nám kontakt, náš makléř se v pracovní dny ozve do 24 hodin

* – toto pole je nutné vyplnit
Michal Hruška
RE/MAX Alfa
Spálená 97/29
Praha 1 - Nové Město, 11000
Česká republika
Tel. na makléře: +420 774 705 452
Tel. do kanceláře: +420 296 240 400
E-mail: michal.hruska@re-max.cz

Potřebujete poradit/máte zájem o prohlídku?

* – toto pole je nutné vyplnit

Podrobné informace

Číslo zakázky:
ID 205-NP12125
Poloha objektu:
Řadový
Počet podlaží v objektu:
2
Užitná plocha:
75 m²
Plocha parcely:
204 m²
Druh objektu:
Cihlová
Stav objektu:
Dobrý
Typ nemovitosti:
Domy a vily
Charakter okolní zástavby:
Venkovská
Doprava:
Dálnice, Silnice, Autobus
Elektřina:
230 V
Ostatní rozvody:
Satelit
Plocha zahrady:
80 m²
Zastavěná plocha:
140 m²
Plyn:
Plynovod
Telekomunikace:
Internet
Typ domu:
Patrový
Umístění objektu:
Centrum obce
Voda:
Dálkový rozvod
Vybaveno:
Ano
Energetická náročnost budovy:
G