Translate with 
MENU ZAVŘÍT

Prodej bytu 1+kk v osobním vlastnictví 43 m², Praha 9 - Hostavice (ID 279-NP00779)

ulice U Hostavického potoka, Praha 9 – Hostavice mapa

5 850 000 Kč ( za nemovitost)
CÚsporná

kk
1x
43 m2
2/4
Exkluzivně Rezervace

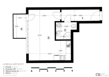
Byt 1+kk s balkonem, komorou (celkově 43 m²) a prostorným garážovým stáním

Hledáte bydlení v Praze, avšak zároveň na klidném místě s dosahem přírody a zeleně, s možností procházek, cyklovýletů a s dobrým spojením do centra jak MHD, tak třeba i vlakem?

Představujeme Vám kompletně zařízený byt 1+kk s bezbariérovým vstupem a dostatečně širokými vstupními i domovními dveřmi a výtahem, který se nachází v Praze 14, Hostavicích, ul. U Hostavického potoka.

Byt v osobním vlastnictví se nachází v prvním patře nízkého domu z roku 2010 (bytový projekt Jahodnice).

Ačkoli je tento byt o velikosti 1+kk, je šikovně dispozičně řešený a nabízí tak plnohodnotné bydlení pro jednu až dvě osoby – obývací část, dvoulůžko, velký pracovní stůl, prostorná kuchyň, koupelna s WC dohromady, předsíň.
Byt je příjemně světlý, což zajišťují velká okna. Pro relaxaci a například k pěstování bylinek můžete využít příjemný balkon.
K bytu patří komora a velké garážové stání, které se nacházejí v sousedním domě (i odtud je možné se do bytu dostat bezbariérově).

Výměry:
• předsíň 6,46 m²
• koupelna + WC 4,40 m²
• obývací pokoj + kuch. kout 25,31 m²
• balkon 4,20 m²
• komora 2,67 m²
• parkovací místo cca 15 m²

Byt se prodává kompletně zařízený. Je možné jej tedy začít rovnou využívat bez starostí s pořizováním nábytku a stěhováním.

Okolí je velmi hezké, v těsné blízkosti domu se nachází velký park, jako stvořený k procházkám, relaxaci, ale i k pohybu (venkovní hřiště / posilovna) a který protínají cyklostezky.
Zastávka autobusu je cca 5 min od domu. Autobusem se za cca 20 min. dostanete na stanici metra Hloubětín. Procházkou cca 10 min. dojdete na vlakové nádraží Praha – Dolní Počernice.
Nájezd na Štěrboholskou spojku cca 5 – 10 min. (dle dopravy).
Kousek od domu je supermarket Albert a příjemné kavárny.

Vytápění a ohřev vody jsou dálkově, v bytě je pouze elektřina (plyn není v domě zaveden).
Aktuální náklady na byt jsou ve výši 3 120,- Kč (včetně fondu oprav 543,- Kč) plus náklady na elektřinu, měsíční zálohy na garážové stání a komoru jsou ve výši 1.300,- Kč.

Nákup bytu je možné financovat hypotečním úvěrem, s jehož vyřízením Vám rádi pomohou naši hypoteční specialisté.

Pro sjednání prohlídky a další informace kontaktujte prosím makléřku nemovitosti.
Cena:
5 850 000 CZK / Rezervováno
Poznámka k ceně:
Uvedená cena zahrnuje provizi a kompletní realitní a právní servis prodeje, zajištěný ze strany realitní kanceláře.
Upozornění:
Prodávající si vyhrazuje právo vybrat kupujícího na základě jím zvolených kritérií.
RX finance

Spočítejte si splátku hypotéky

Na kolik vás vyjde pořízení vlastního bydlení? Zadejte pár informací do naší hypoteční kalkulačky a hned si prohlédněte výsledek.

Kupní cena nemovitosti

5 850 000 Kč

Výše hypotéky

Doba splácení

Vypočítaná měsíční splátka

Úroková sazba 3.6%

260 990 Kč

Hypotéku zařídíme za vás

Ušetřete svůj čas i nervy. Naši makléři zařídí veškeré papírování a dovedou vás až k úspěšnému podpisu smlouvy v bance.

Nechte nám kontakt, náš makléř se v pracovní dny ozve do 24 hodin

* – toto pole je nutné vyplnit
Alena Vrzáková
RE/MAX Apollo
Sokolovská 32/22
Praha 8 - Karlín, 18600
Česká republika
Tel. na makléře: +420 792 310 776
Tel. do kanceláře: +420 703 477 477
E-mail: alena.vrzakova@re-max.cz

Potřebujete poradit/máte zájem o prohlídku?

* – toto pole je nutné vyplnit

Podrobné informace

Číslo zakázky:
ID 279-NP00779
Dispozice:
1+kk
Číslo podlaží:
2
Počet podlaží v objektu:
4
Podlahová plocha:
43 m²
Druh objektu:
Smíšená
Stav objektu:
Velmi dobrý
Vlastnictví:
Osobní
Typ nemovitosti:
Byty
Bezbariérový byt:
Ano
Charakter okolní zástavby:
Obytná
Doprava:
Vlak, Dálnice, Silnice, MHD, Autobus
Elektřina:
230 V
Garáž:
Ano
Odpad:
Kanalizace
Užitná plocha:
36 m²
Telekomunikace:
Internet
Umístění objektu:
Klidná část obce
Voda:
Dálkový rozvod
Vybaveno:
Ano
Výtah:
Ano
Energetická náročnost budovy:
C