Translate with 
MENU ZAVŘÍT

Prodej domu 247 m², České Velenice (ID 201-NP03245)

ulice Komenského, České Velenice mapa

10 900 000 Kč ( za nemovitost)
GMimořádně
nehospodárná

5+
247 m2
656 m2
3
Exkluzivně

Prodej domu v Českých Velenicicích s dalším (investorským) potenciálem

Hezký den,

hledáte prostorný domov, který nabídne klidné rodinné zázemí a zároveň atraktivní možnosti do budoucna? Pak vás jistě zaujme tento třípodlažní cihlový rodinný dům v Českých Velenicích v ulici Komenského.

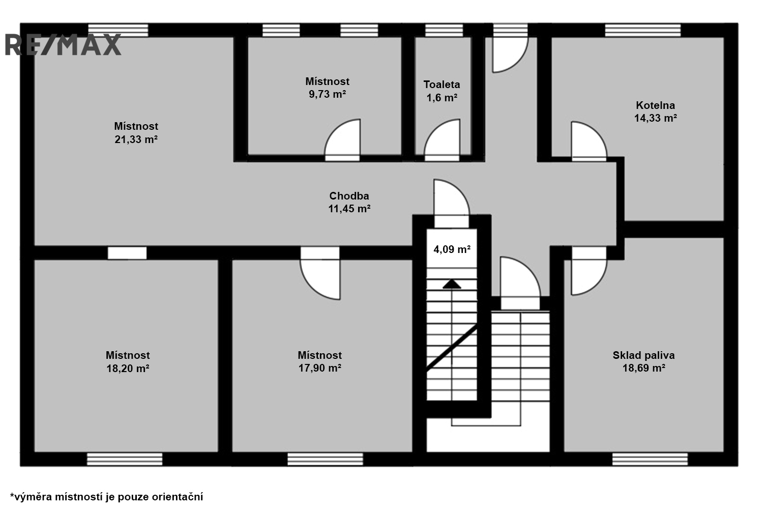
Díky své velikosti je ideálním řešením pro početnější rodinu. Nabízí krásné a komfortní zázemí. Aktuálně jsou plně obytná dvě podlaží, takže dům okamžitě poskytne pohodlí celé domácnosti. Orientační výměry jednotlivých místností jsou zmíněné v přiložených půdorysech. Spolu s tím Vám doporučujeme projít si nemovitost za pomoci 3D virtuální prohlídky, která Vám dopomůže k plné představě o rozložení jednotlivých místností.

Dům byl historicky rozdělený na čtyři bytové jednotky, a proto jej lze i dnes snadno přetvořit na více samostatných bytů a získat tak zajímavý výnos z pronájmu. Velký potenciál přináší také půdní prostory, které umožňují vybudování dalších bytových jednotek (minimálně dvou). Díky tomu se dům stává nejen komfortním rodinným bydlením, ale i chytrou investiční příležitostí.

Dům je kompletně podsklepený, což otevírá široké možnosti využití – od praktického uskladnění až po vybudování wellness zóny, domácí posilovny či zázemí pro vaše koníčky. V teoretické rovině by se i zde dalo vybudovat zázemí pro další nájemníky, ačkoliv toto je třeba konzultovat s příslušnými úřady.

Samozřejmostí je kryté parkovací stání pro několik aut a samostatná garáž, které doplňují komfortní zázemí domu. Nechybí ani zahrada, ideální pro chvíle odpočinku, posezení s přáteli nebo rodinné grilování.

Dům byl rekonstruovaný v posledních cca 7 - 8 letech co do rozvodů, které jsou v mědi (elektřina a topení) a v plastu (voda a odpady). Náročnou rekonstrukcí prošly rovněž interiéry domu a obměny se dočkala i okna (v roce 2018). Vytápění je řešeno novým kotlem na uhlí a na pelety. Případně lze vytápět přímotopy.

TV je řešena internetem (Vodafone). Do domu je navedený telefonický kabel. Pojistky jsou v každém patře, zatímco v přízemí (u vchodu do domu) je hlavní jistič. Dům je napojený na obecní vodovod a kanalizaci. Ohřev vody je řešen bojlerem (kombinovaný - elektřina/kotel).

Zálohy na elektřinu jsou nastaveny na cca 4.000 Kč/5 osob/měsíc. Voda na 1.500 Kč/5 osob/měsíc. V obou případech dochází k přeplatku (reálná spotřeba vychází na cca 4.000 Kč/měsíc). Topení v sezoně se odvíjí od spotřeby tuhých paliv (odhadem 4.000 Kč – 6.000 Kč/měsíc)

České Velenice navíc nabízejí kompletní občanskou vybavenost – školu, školku, obchody i zdravotnické služby. Nechybí kulturní ani sportovní možnosti a velkou výhodou je poloha přímo u hranic s Rakouskem mj. kvůli dojíždění za prací.

Na prohlídky se objednávejte za pomoci formuláře nebo na uvedeném telefonickém čísle.

Nemovitost lze financovat hypotečním úvěrem. S jeho vyřízením Vám rádi pomůžeme.

Dům se prodává s vybavením.

Z důvodu dočasné absence PENB uvádíme coby energetickou třídu „G“, tj. mimořádně nehospodárnou.
Cena:
10 900 000 CZK / za nemovitost
Poznámka k ceně:
Včetně provize a právního servisu.
Upozornění:
Prodávající si vyhrazuje právo vybrat kupujícího na základě jím zvolených kritérií.
RX finance

Spočítejte si splátku hypotéky

Na kolik vás vyjde pořízení vlastního bydlení? Zadejte pár informací do naší hypoteční kalkulačky a hned si prohlédněte výsledek.

Kupní cena nemovitosti

10 900 000 Kč

Výše hypotéky

Doba splácení

Vypočítaná měsíční splátka

Úroková sazba 3.6%

260 990 Kč

Hypotéku zařídíme za vás

Ušetřete svůj čas i nervy. Naši makléři zařídí veškeré papírování a dovedou vás až k úspěšnému podpisu smlouvy v bance.

Nechte nám kontakt, náš makléř se v pracovní dny ozve do 24 hodin

* – toto pole je nutné vyplnit
Bc. Jindřich Svačina
RE/MAX Atrium
Podolská 811/138
Praha 4 - Podolí, 14700
Česká republika
Tel. na makléře: +420 603 928 019
Tel. do kanceláře: +420 606 726 515
E-mail: jindrich.svacina@re-max.cz

Potřebujete poradit/máte zájem o prohlídku?

* – toto pole je nutné vyplnit

Podrobné informace

Číslo zakázky:
ID 201-NP03245
Poloha objektu:
Řadový
Počet podlaží v objektu:
3
Užitná plocha:
247 m²
Plocha parcely:
656 m²
Druh objektu:
Cihlová
Stav objektu:
Velmi dobrý
Typ nemovitosti:
Domy a vily
Charakter okolní zástavby:
Obytná
K nastěhování:
19. 9. 2025
Odpad:
Kanalizace
Zastavěná plocha:
174 m²
Plyn:
Plynovod
Počet podlaží pod zemí:
1
Telekomunikace:
Telefon, Internet
Typ domu:
Patrový
Umístění objektu:
Klidná část obce
Voda:
Dálkový rozvod
Vybaveno:
Ano
Energetická náročnost budovy:
G