Translate with 
MENU ZAVŘÍT

Prodej domu 210 m², Rudice (ID 193-NP02428)

Rudice, okres Uherské Hradiště mapa

Cena na vyžádání v kanceláři
GMimořádně
nehospodárná

5+
210 m2
1311 m2
2
Exkluzivně

Prodej rodinného domu ve výstavbě v klidné obci Rudice

Nabízíme k prodeji rozestavěný rodinný dům v klidné části obce Rudice, okr Uh. Hradiště.
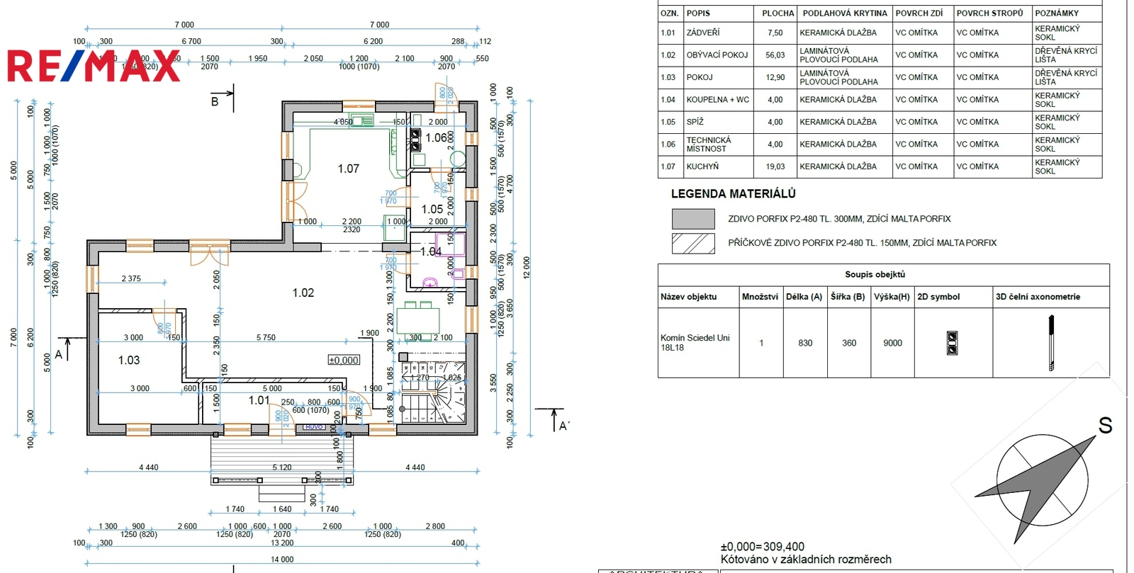
Dům o budoucí dispozici 6+1 s platným stavebním povolením nabídne po dokončení krásné výhledy.
Objekt rodinného domu je navržen jako přízemní s obytným podkrovím.
Tvarem je dům uspořádán ve tvaru písmene se sedlovou střechou. Vstup do domu je orientován z jihovýchodní strany vchodem se zastřešením. Obytné místnosti směřují na jihovýchod až jihozápad. Střecha je navržená sedlová o dvou kolmých hřebenech se střešními okny a krytinou z pálených tašek tmavě červené barvy.
Zastavěná plocha rodinného domu je 141,36 m2. Velikost domu je cca 13,7/14 m. Výška objektu 7,65 m.
Dále dřevěný altán rozměrů 7x6m výšky 2,93m.
Garážové stání rozměrů 5x6m
Elektřina a vodovod u pozemku, na jihovýchodní straně pozemku je navržena žumpa.
Cena:
Cena na vyžádání v kanceláři
Poznámka k ceně:
včetně provize a právního servisu
Upozornění:
Prodávající si vyhrazuje právo vybrat kupujícího na základě jím zvolených kritérií.
Kamila Buráňová
RE/MAX G8 Reality 5
Moravské náměstí 754/13
Brno, 60200
Česká republika
Tel. na makléře: +420 774 066 022
Tel. do kanceláře: +420 703 180 388
E-mail: kamila.buranova@re-max.cz

Potřebujete poradit/máte zájem o prohlídku?

* – toto pole je nutné vyplnit

Podrobné informace

Číslo zakázky:
ID 193-NP02428
Poloha objektu:
Samostatný
Počet podlaží v objektu:
2
Užitná plocha:
210 m²
Plocha parcely:
1 311 m²
Druh objektu:
Cihlová
Stav objektu:
Ve výstavbě (hrubá stavba)
Typ nemovitosti:
Domy a vily
Charakter okolní zástavby:
Obytná
Doprava:
Silnice, Autobus
Elektřina:
230 V
Typ domu:
Patrový
Umístění objektu:
Klidná část obce
Umístění v chráněných lokalitách:
Ochranné pásmo
Energetická náročnost budovy:
G