Translate with 
MENU ZAVŘÍT

Prodej bytu 3+1 v osobním vlastnictví 72 m², Hradec Králové (ID 205-NP12138)

ulice Sekaninova, Hradec Králové – část obce Moravské Předměstí mapa

7 200 000 Kč ( za nemovitost)
CÚsporná

1x
3x
72 m2
2/4
Exkluzivně

Prodej bytu 3+1 po kompletní rekonstrukci o celkové ploše 78 m² – Hradec Králové, ul. Sekaninova

Ihned k nastěhování - Exkluzivně nabízím byt 3+1 s lodžií a sklepem o celkové podlahové ploše cca 78 m², který se nachází ve 2. nadzemním podlaží bytového domu s výtahem.
Byt prošel kompletní rekonstrukcí – nová kuchyňská linka (včetně spotřebičů), koupelna a WC, elektroinstalace (měď), v celém bytě sjednocené podlahy (nivelace + rigidní vinyl), interiérové dveře s obložkovými zárubněmi, vstupní bezpečnostní dveře, podhledy, světla na dálkové ovládání se stmívačem a změnou barevné teploty, žaluzie a sítě proti hmyzu, na JV stranu též venkovní žaluzie.

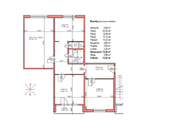
Dispozice zahrnuje: prostorný obývací pokoj, dvě ložnice, kuchyň, vstupní chodbu, koupelnu a samostatné WC.
(rozměry jednotlivých místností jsou uvedeny v přiloženém plánku.)
Byt má plastová okna orientovaná na dvě světové strany (JV a SZ), díky čemuž je interiér příjemně prosvětlený po celý den.
K bytu náleží sklep o velikosti cca 2,88 m² a lodžie 3,2 m² přístupná z ložnice.
Vytápění a ohřev vody: centrální (Opatovická elektrárna)
Parkování: bezplatné přímo před domem

V bezprostřední blízkosti domu se nachází kompletní občanská vybavenost – mateřská i základní škola, zastávky MHD, obchody, restaurace (Duran Grill, Trhy Ve Stromovce - pizzerie, kavárna), lékárna, zdravotní středisko, veterinární klinika, solná jeskyně, sportoviště (golfové hřiště, cyklostezky), lesopark a vycházkové, cyklistické a in line trasy v městských lesích nebo podél řeky Labe. Do centra města se dostanete během několika minut, nájezd na dálnici D35 (Opatovice nad Labem) je vzdálen přibližně 7 km / 8 min jízdy. V blízkosti Fakultní nemocnice.

V případě zájmu o prohlídku prosím vyplňte kontaktní formulář pod inzerátem – ozveme se vám s nabídkou termínů.
Při větším počtu zájemců bude byt prodán nejlepší nabídce.
Poznámka: Uvedené rozměry jsou orientační.
Cena:
7 200 000 CZK / za nemovitost
Poznámka k ceně:
Upozornění:
Prodávající si vyhrazuje právo vybrat kupujícího na základě jím zvolených kritérií.
RX finance

Spočítejte si splátku hypotéky

Na kolik vás vyjde pořízení vlastního bydlení? Zadejte pár informací do naší hypoteční kalkulačky a hned si prohlédněte výsledek.

Kupní cena nemovitosti

7 200 000 Kč

Výše hypotéky

Doba splácení

Vypočítaná měsíční splátka

Úroková sazba 3.6%

260 990 Kč

Hypotéku zařídíme za vás

Ušetřete svůj čas i nervy. Naši makléři zařídí veškeré papírování a dovedou vás až k úspěšnému podpisu smlouvy v bance.

Nechte nám kontakt, náš makléř se v pracovní dny ozve do 24 hodin

* – toto pole je nutné vyplnit
Ing. Jan Pohořelický
RE/MAX Alfa
Spálená 97/29
Praha 1 - Nové Město, 11000
Česká republika
Tel. na makléře: +420 277 277 005
Tel. do kanceláře: +420 296 240 400
E-mail: j.pohorelicky@re-max.cz

Potřebujete poradit/máte zájem o prohlídku?

* – toto pole je nutné vyplnit

Podrobné informace

Číslo zakázky:
ID 205-NP12138
Dispozice:
3+1
Číslo podlaží:
2
Počet podlaží v objektu:
4
Podlahová plocha:
72 m²
Druh objektu:
Panelová
Stav objektu:
Po rekonstrukci
Vlastnictví:
Osobní
Typ nemovitosti:
Byty
K nastěhování:
20. 10. 2025
Užitná plocha:
76 m²
Zastavěná plocha:
1 493 m²
Umístění objektu:
Klidná část obce
Výtah:
Ano
Energetická náročnost budovy:
C