Translate with 
MENU ZAVŘÍT

Prodej chaty / chalupy 126 m², Radenín (ID 020-NP10572)

Radenín, okres Tábor mapa

1 990 000 Kč ( za nemovitost)
GMimořádně
nehospodárná

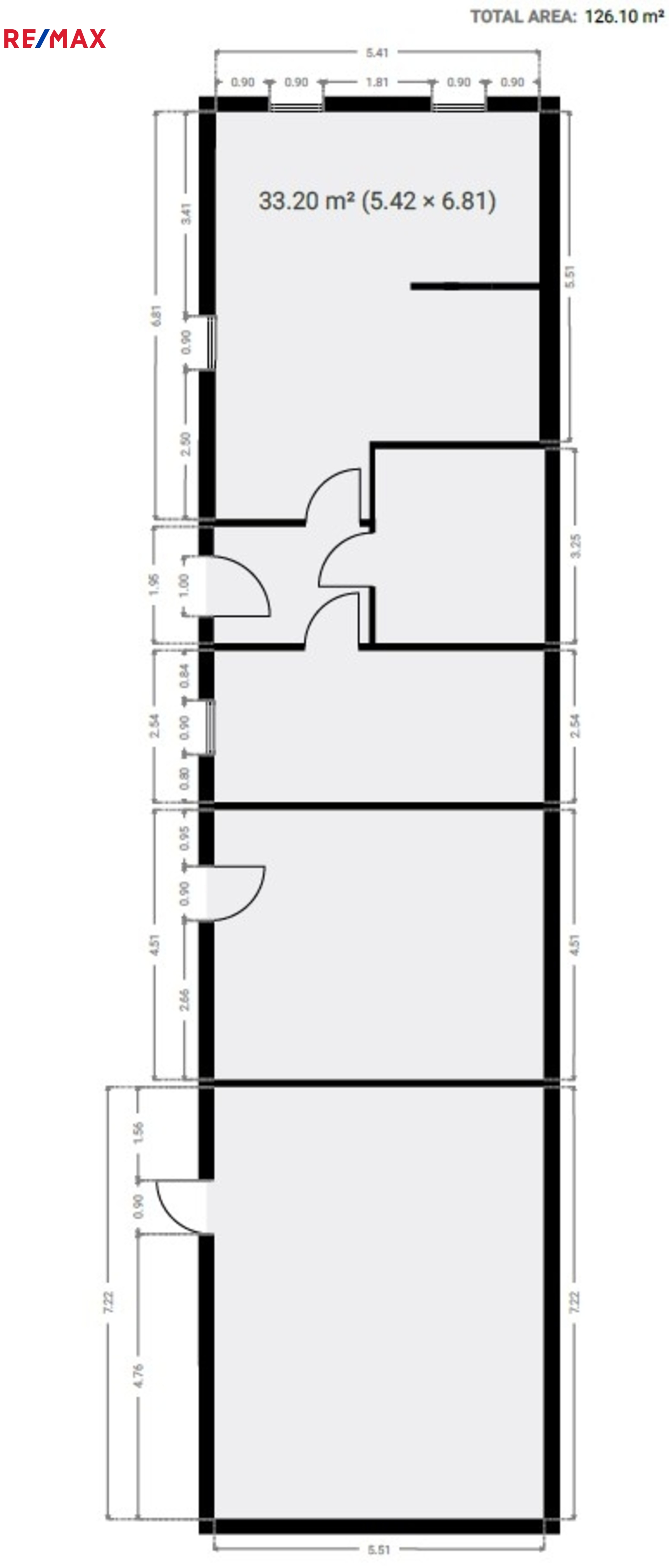
126 m2
434 m2
1
Exkluzivně

Venkovská chalupa u zámku Radenín – místo s atmosférou a potenciálem

Radenín – poklidná jihočeská vesnice nedaleko Tábora. V jejím srdci stojí historický zámek a jen pár kroků od něj tahle původní venkovská chalupa – místo, kde se potkává klid, historie a kouzlo venkova.

Dům se nachází na pozemku o celkové výměře 434 m², z toho 182 m² tvoří zastavěná plocha. Nemovitost je v původním stavu a je určena ke kompletní rekonstrukci – nabízí tak ideální příležitost vytvořit si bydlení či rekreační sídlo přesně podle svých představ.

V domě je funkční elektřina, na pozemku se nachází nová vrtaná studna a je zde připravená přípojka obecní kanalizace k napojení. V podkroví se rozkládá prostorná půda s možností rozšíření obytné části, k dispozici je sklep, stodola a další hospodářské prostory.

Na nemovitosti nevázne žádné věcné břemeno ani zástava a je možné ji financovat hypotečním úvěrem, jehož vyřízení vám rádi pomůžeme zajistit.

V bezprostřední blízkosti radenínského zámku, jehož historie sahá až do 14. století, se tu mezi parkem, starými zdmi a venkovským tichem vytváří jedinečná atmosféra, kterou jinde nenajdete. Díky tomu chalupa nabízí nejen klid venkova, ale i dotek historie, který z ní dělá skutečně výjimečné místo.

Ať už hledáte víkendové útočiště, nebo základ pro nové rodinné bydlení – přijďte se podívat na prohlídku. Možná právě tady začne váš nový příběh.
Cena:
1 990 000 CZK / za nemovitost
Poznámka k ceně:
Upozornění:
Prodávající si vyhrazuje právo vybrat kupujícího na základě jím zvolených kritérií.
RX finance

Spočítejte si splátku hypotéky

Na kolik vás vyjde pořízení vlastního bydlení? Zadejte pár informací do naší hypoteční kalkulačky a hned si prohlédněte výsledek.

Kupní cena nemovitosti

1 990 000 Kč

Výše hypotéky

Doba splácení

Vypočítaná měsíční splátka

Úroková sazba 3.6%

260 990 Kč

Hypotéku zařídíme za vás

Ušetřete svůj čas i nervy. Naši makléři zařídí veškeré papírování a dovedou vás až k úspěšnému podpisu smlouvy v bance.

Nechte nám kontakt, náš makléř se v pracovní dny ozve do 24 hodin

* – toto pole je nutné vyplnit
Ondřej Pospíšil
RE/MAX G8 Reality
Rohanské nábřeží 678/27
Praha 8 - Karlín, 18600
Česká republika
Tel. na makléře: +420 774 179 471
Tel. do kanceláře: +420 703 180 388
E-mail: ondrej.pospisil@re-max.cz

Potřebujete poradit/máte zájem o prohlídku?

* – toto pole je nutné vyplnit

Podrobné informace

Číslo zakázky:
ID 020-NP10572
Poloha objektu:
Samostatný
Počet podlaží v objektu:
1
Užitná plocha:
126 m²
Plocha parcely:
434 m²
Druh objektu:
Smíšená
Stav objektu:
Před rekonstrukcí
Typ nemovitosti:
Chaty a rekreační objekty
Elektřina:
230 V
Odpad:
Kanalizace
Celková plocha:
126 m²
Zastavěná plocha:
182 m²
Typ domu:
Přízemní
Umístění objektu:
Okraj obce
Energetická náročnost budovy:
G