Translate with 
MENU ZAVŘÍT

Prodej domu 205 m², Rosice (ID 197-NP05081)

ulice Tetčická, Rosice mapa

13 490 000 Kč ( za nemovitost)
CÚsporná

5+
205 m2
558 m2
2
Exkluzivně

Výjimečné bydlení v Rosicích, ul. Tetčická

Výjimečný rodinný dům ve městě Rosice, které vytváří díky kombinaci občanské vybavenosti, blízkosti Brna a krásné přírody ideální místo pro rodinné bydlení.
Tato nemovitost, která prošla nadstandardní, kompletní rekonstrukcí, působí zcela novým dojmem a nabízí skvělé bydlení, které spojuje moderní komfort s elegancí a stylem. Při realizaci rekonstrukce byl kladen důraz na výběr prvků s nadstandardními izolačně-užitnými vlastnostmi.
Dům o zastavěné ploše 129 m² se pyšní prostorným obytným prostorem 168 m² a užitnou plochou 205 m² a je rozložen do dvou podlaží, což poskytuje dostatek místa pro pohyb a relaxaci.
Dům je navíc kompletně podsklepen s plochou sklepních prostor 79 m2. Tyto sklepní prostory rovněž prošly kompletní důkladnou rekonstrukcí a umožňují tak více než jen skladovací a technické využití.

Dispozice domu:
Suterén:
Chodba se schodištěm (18,52 m2)
Komora (3,07 m2)
Technická místnost (16,31 m2)
Sklep (19,81 m2)
Sklep (21,51 m2)

1. NP
Zádveří (5,24 m2)
WC (1,46 m2)
Schodiště (11,45 m2)
Pokoj (16,34 m2)
Kuchyně s jídelnou (21,51 m2)
Obývací pokoj (19,81 m2)
Koupelna s WC (9,82 m2)

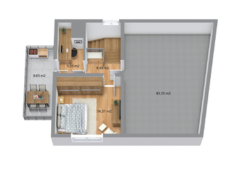
2. NP
Schodišťový prostor (8,49 m2)
Pokoj (5,35 m2)
Terasa (9,65m2)
Pokoj (16,31 m2)
Půda (43,14 m2)

Půda nabízí prostor s kompletně vyvedenými rozvody s možností dokončení dalších dvou pokojů se sociálním zařízením či šatnou. Dokončení vám můžeme zajistit dle požadavku.

Celková plocha pozemku činí 558 m², což zahrnuje krásně udržovanou zahradu a venkovní prostor, ideální k odpočinku či rodinným setkáním s venkovní krytou terasou a rovněž s přípravou na bazén. Svou rozlohou a umístěním zahrada skýtá dostatek prostoru a soukromí.

Dispozice domu je navržena s ohledem na maximální komfort a praktičnost. Interiér je vybaven moderními prvky, jako je podlahové vytápění, což přispívá k příjemné atmosféře i v chladnějším období.

Samostatný cihlový objekt je napojen na všechny potřebné sítě, včetně kanalizace a vodovodu. Dále je k dispozici studna, která zvyšuje samostatnost a komfort bydlení. V domě je instalován plynový kondenzační kotel, který zajišťuje nejen vytápění, ale i teplou vodu, a to se značnou účinností. Předpokládané celkové měsíční náklady na veškerý provoz domu 3.500,- Kč/měs.

Lokalita nabízí skvělou dostupnost k dálnici a silnici, což je ideální pro dojíždění do Brna či okolních měst. Dobře rozvinutá veřejná doprava, zajišťuje pohodlný přístup k městské infrastruktuře.

V této výjimečné nemovitosti naleznete kombinaci moderního designu a nadstandardního vybavení, které vám poskytne naprostý komfort a pocit exkluzivity. Je to skvělá příležitost pro ty, kteří hledají kvalitní a prestižní bydlení mimo městský ruch.
Dům je ihned volný připravený k nastěhování.
Možnost financování hypotékou.
Cena:
13 490 000 CZK / za nemovitost
Poznámka k ceně:
Cena vč. provize a právních služeb
Upozornění:
Prodávající si vyhrazuje právo vybrat kupujícího na základě jím zvolených kritérií.
RX finance

Spočítejte si splátku hypotéky

Na kolik vás vyjde pořízení vlastního bydlení? Zadejte pár informací do naší hypoteční kalkulačky a hned si prohlédněte výsledek.

Kupní cena nemovitosti

13 490 000 Kč

Výše hypotéky

Doba splácení

Vypočítaná měsíční splátka

Úroková sazba 3.6%

260 990 Kč

Hypotéku zařídíme za vás

Ušetřete svůj čas i nervy. Naši makléři zařídí veškeré papírování a dovedou vás až k úspěšnému podpisu smlouvy v bance.

Nechte nám kontakt, náš makléř se v pracovní dny ozve do 24 hodin

* – toto pole je nutné vyplnit
Ing. Miloš Kesler, MBA
RE/MAX Magnum
Banskobystrická 819/52
Brno, 62100
Česká republika
Tel. na makléře: +420 733 679 901
Tel. do kanceláře: +420 733 679 901
E-mail: milos.kesler@re-max.cz

Potřebujete poradit/máte zájem o prohlídku?

* – toto pole je nutné vyplnit

Podrobné informace

Číslo zakázky:
ID 197-NP05081
Poloha objektu:
Samostatný
Počet podlaží v objektu:
2
Užitná plocha:
205 m²
Plocha parcely:
558 m²
Druh objektu:
Cihlová
Stav objektu:
Velmi dobrý
Typ nemovitosti:
Domy a vily
Charakter okolní zástavby:
Obytná
Doprava:
Dálnice, Silnice, Autobus
Elektřina:
230 V, 400 V
Odpad:
Kanalizace
Ostatní rozvody:
Kabelové rozvody
Plocha zahrady:
356 m²
Zastavěná plocha:
129 m²
Plyn:
Plynovod
Počet podlaží pod zemí:
1
Telekomunikace:
Telefon, Internet
Typ domu:
Patrový
Umístění objektu:
Klidná část obce
Voda:
Dálkový rozvod
Energetická náročnost budovy:
C
Měrná vypočtená roční spotřeba energie v kWh/m²/rok:
103