Translate with 
MENU ZAVŘÍT

Pronájem bytu 2+kk v osobním vlastnictví 77 m², Praha 4 - Záběhlice (ID 257-NP01358)

ulice Hlavní, Praha 4 – Záběhlice mapa

25 700 Kč ( za měsíc)
ENehospodárná

kk
2x
77 m2
1/10
Exkluzivně Rezervace

Designový byt v industriálním stylu 2+kk s lodžií – Praha 4, Záběhlice

Láká vás bydlení v netradičním otevřeném prostoru, kde se snoubí design, funkčnost a pohodlí?
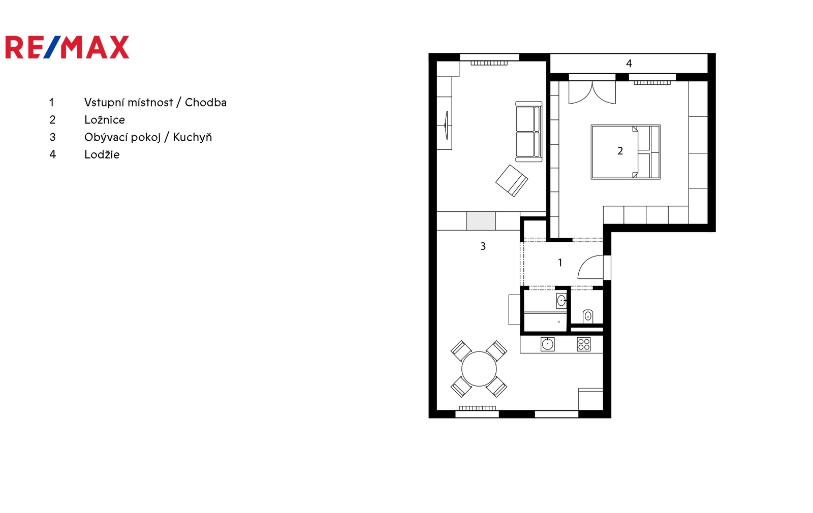
Nabízíme k pronájmu jedinečný byt 2+kk (původně 4+1), o podlahové ploše cca 73 m2 + lodžie 4 m2 , v 1. nadzemním podlaží bytového domu v pražských Záběhlicích, který prošel promyšlenou rekonstrukcí a nabízí originální atmosféru industriálního stylu. Úpravou dispozice vznikl vzdušný, otevřený prostor s podlahovou plochou cca 41 m², propojující kuchyň, jídelnu a obývací část. Jednotlivé části jsou pouze opticky rozděleny a navazují na předsíň. Kuchyňská linka je plně vybavena: plynová varná deska, elektrická trouba, myčka, lednice s mrazákem a pračka se sušičkou. Z otevřené předsíně je vstup do koupelny se sprchovým koutem a samostatné toalety. Ložnice o velikosti cca 23 m² nabízí 7 vestavných skříní a přímý vstup na zasklenou lodžii. Další úložné prostory zajišťuje vestavná skříň v předsíni. Orientace bytu na západ (kuchyň, jídelna) a východ (obývací část, ložnice, lodžie) zajišťuje dostatek denního světla po celý den.
Použití odhalených stropů a kombinace parketových podlah a betonové stěrky dodává bytu osobitý charakter. Celkový styl podtrhuje designový nábytek, který je součástí vybavení.
Dům prošel rekonstrukcí fasády včetně zateplení (nový energetický štítek je v přípravě). Velkou výhodou je bezproblémové parkování – bez městských parkovacích zón.
V okolí je kompletní občanská vybavenost: mateřská, základní i střední školy, ZUŠ, evangelická akademie, zdravotnická škola, Penny Market, OD Centrum s Albertem, v dojezdové vzdálenosti OC Chodov. Autobusová zastávka s přímým spojením na Smíchovské nádraží / Chodov / Kačerov/ Roztyly/ Skalku / Florenc je přímo před domem s dojezdem na Metro C – Roztyly cca 10 minut. Dětská hřiště, pumptrack, skatepark v docházkové vzdálenosti. Milovníci sportu ocení blízkost areálu Hamr s množstvím sportovních aktivit, či možnosti procházek v okolí Hamerského rybníka.
Pokud Vás nabídka zaujala, neváhejte mne kontaktovat, budu se na Vás těšit při prohlídce!
Pronajímatel si vyhrazuje právo výběru nájemce dle jím zvolených kritérií.
Cena:
25 700 CZK / Rezervováno
Poznámka k ceně:
+ poplatky za služby 4.700,- + převod elektřiny a plynu na nájemce
Upozornění:
Pronajímající si vyhrazuje právo vybrat nájemce na základě jím zvolených kritérií.
Ing. Petra Kaulitzová
RE/MAX Cool
Roztylské náměstí 393/35
Praha 4 - Záběhlice, 14100
Česká republika
Tel. na makléře: +420 602 270 901
Tel. do kanceláře: +420 728 400 586
E-mail: petra.kaulitzova@re-max.cz

Potřebujete poradit/máte zájem o prohlídku?

* – toto pole je nutné vyplnit

Podrobné informace

Číslo zakázky:
ID 257-NP01358
Dispozice:
2+kk
Číslo podlaží:
1
Počet podlaží v objektu:
10
Podlahová plocha:
77 m²
Druh objektu:
Cihlová
Stav objektu:
Velmi dobrý
Vlastnictví:
Osobní
Typ nemovitosti:
Byty
K nastěhování:
1. 11. 2025
Odpad:
Kanalizace
Užitná plocha:
73 m²
Plyn:
Plynovod
Umístění objektu:
Klidná část obce
Voda:
Dálkový rozvod
Vybaveno:
Ano
Výtah:
Ano
Energetická náročnost budovy:
E
Měrná vypočtená roční spotřeba energie v kWh/m²/rok:
139