Translate with 
MENU ZAVŘÍT

Prodej domu 190 m², Vlkaneč (ID 059-NP07713)

Vlkaneč, okres Kutná Hora mapa

6 500 000 Kč ( za nemovitost)
GMimořádně
nehospodárná

5+
190 m2
995 m2
1
Exkluzivně

Prodej rodinného domu 4+1 se zahradou o rozloze 845 m2 v obci Vlkaneč u Golčova Jeníkova

Exkluzivně nabízíme k prodeji samostatně stojící rodinný dům 4+1 se zahradou o rozloze 845 m2 v obci Vlkaneč, která leží v malebné krajině na pomezí Středočeského kraje a Vysočiny. Vlkaneč je přátelská, klidná obec s dobrou občanskou vybaveností. Najdete zde základní a mateřskou školu, obchod, poštu, obecní úřad i knihovnu. Díky vlakové zastávce přímo v obci je zajištěno pohodlné spojení do větších měst - směr Havlíčkův Brod, Čáslav, Kolín či Praha. Obec je obklopena čistou přírodou, loukami a lesy, ideální pro bydlení s dětmi. V okolí domu probíhá výstavba novostaveb, což svědčí o rozvíjející se lokalitě. V obci žije aktuálně přes 400 obyvatel.

Dům stojí na samostatném pozemku se zahradou s ovocnými stromy a kopanou studnou. Je přímo přístupný z obecní komunikace, což zajišťuje snadné napojení na infrastrukturu (kanalizace, vodovodní řád, elektřinu, internet).

Dům je postaven z kombinace cihly a kamene, střecha je stanová, valbová s taškovou krytinou. Okna jsou plastová a částečně původní.

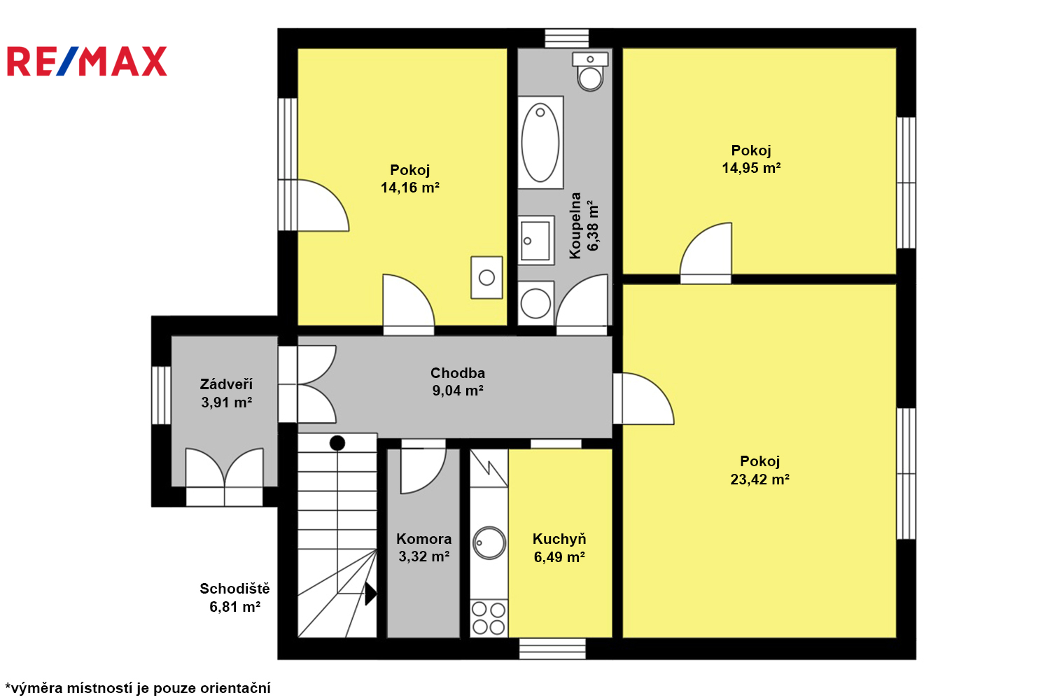
Dispozice domu je praktická: přízemí - vstupní předsíň, chodba, tři obytné místnosti, kuchyňka, koupelna s toaletou a technická místnost. Po dřevěném schodišti se dostanete na půdu do prvního patra, kde se nachází další obytná místnost. Půda je vhodná k rekonstrukci a nabízí možnost rozšíření obytného prostoru, dle vlastních představ (dvě místnosti a sociální zázemí). Vytápění zajišťuje elektrokotel s expanzní nádobou, voda je ohřívána rovněž přes elektrokotel. V domě jsou dva komíny, z nichž jeden je využíván pro krbová kamna na dřevo, která dodávají domovu příjemnou atmosféru a výhřevnost. V ostatních místnostech jsou instalovány radiátory, které jsou vytápěny elektrokotlem. Podlahy tvoří dlažba a koberce.

Tento dům představuje zajímavou příležitost pro trvalé bydlení i rekreační využití. Nabízí klidné prostředí, krásnou okolní přírodu a zároveň výbornou dopravní dostupnost. Místo, kde se můžete nadechnout, zpomalit a vytvořit si domov podle svých představ.

Okolí obce Vlkaneč nabízí pestré možnosti volného času. Najdete zde cyklotrasy, pro pěší stezky ideální pro výlety do přírody a houbaření. Nedaleko se nachází ranč s koňmi, kde je možné se zapojit do místních aktivit.

Aktuálně probíhá rozdělení a zaměření pozemku, kdy majitel si ponechává část zahrady s vlastním přístupem z obecní komunikace.
Majitel si vyhrazuje právo aukce.
Cena:
6 500 000 CZK / za nemovitost
Poznámka k ceně:
Cena včetně provize a právního servisu.
Upozornění:
Prodávající si vyhrazuje právo vybrat kupujícího na základě jím zvolených kritérií.
RX finance

Spočítejte si splátku hypotéky

Na kolik vás vyjde pořízení vlastního bydlení? Zadejte pár informací do naší hypoteční kalkulačky a hned si prohlédněte výsledek.

Kupní cena nemovitosti

6 500 000 Kč

Výše hypotéky

Doba splácení

Vypočítaná měsíční splátka

Úroková sazba 3.6%

260 990 Kč

Hypotéku zařídíme za vás

Ušetřete svůj čas i nervy. Naši makléři zařídí veškeré papírování a dovedou vás až k úspěšnému podpisu smlouvy v bance.

Nechte nám kontakt, náš makléř se v pracovní dny ozve do 24 hodin

* – toto pole je nutné vyplnit
Ilona Černá
RE/MAX G8 Reality 4
Václavská 864
Kolín, 28002
Česká republika
Tel. na makléře: +420 604 760 411
Tel. do kanceláře: +420 603 392 333
E-mail: ilona.cerna@re-max.cz

Potřebujete poradit/máte zájem o prohlídku?

* – toto pole je nutné vyplnit

Podrobné informace

Číslo zakázky:
ID 059-NP07713
Poloha objektu:
Samostatný
Počet podlaží v objektu:
1
Užitná plocha:
190 m²
Plocha parcely:
995 m²
Druh objektu:
Cihlová
Stav objektu:
Dobrý
Typ nemovitosti:
Domy a vily
Charakter okolní zástavby:
Obytná
K nastěhování:
27. 10. 2025
Doprava:
Vlak, Dálnice, Silnice, MHD, Autobus
Elektřina:
230 V, 400 V
Odpad:
Kanalizace
Plocha zahrady:
845 m²
Zastavěná plocha:
150 m²
Typ domu:
Patrový
Umístění objektu:
Okraj obce
Voda:
Dálkový rozvod
Vybaveno:
Ano
Energetická náročnost budovy:
G