Translate with 
MENU ZAVŘÍT

Prodej domu 84 m², Kramolna (ID 305-NP00827)

Kramolna, okres Náchod mapa

5 890 000 Kč ( za nemovitost)
GMimořádně
nehospodárná

3x
84 m2
1097 m2
1
Exkluzivně Zlevněno

Prodej RD Kramolna 3 KK 84 m2

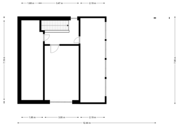
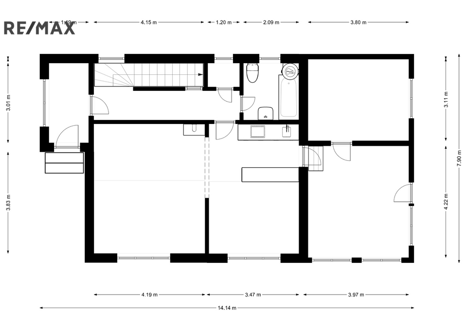
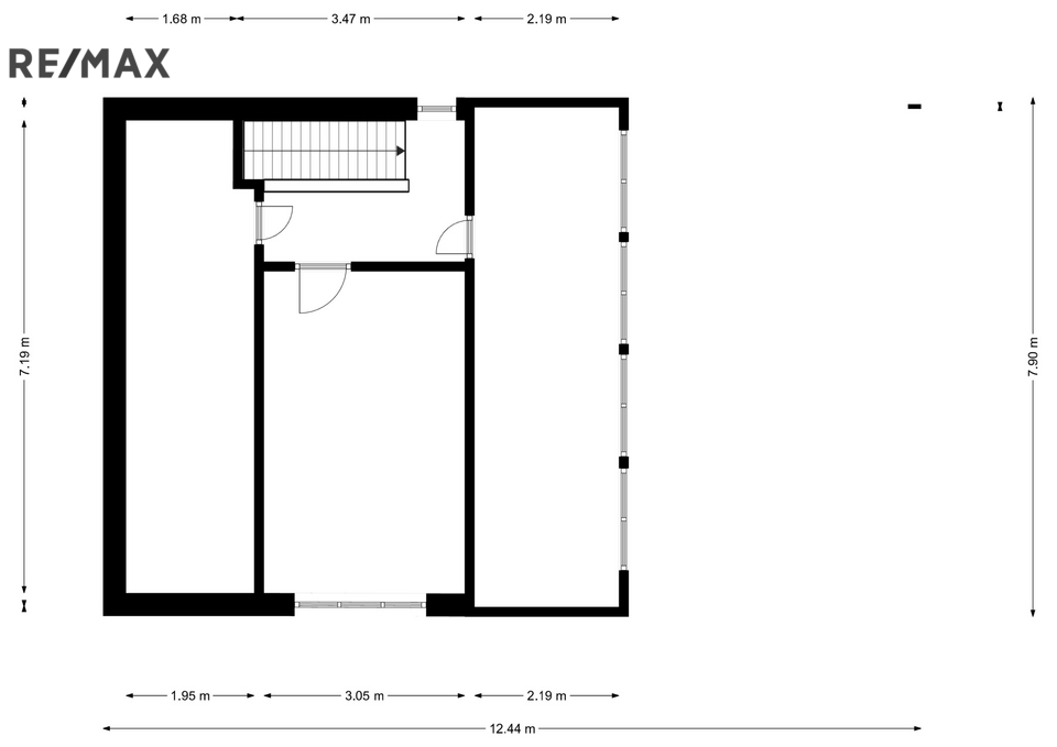
Nabízíme k prodeji starší, ale zachovalý rodinný dům, nacházející se v malebné obci Kramolna, č. p. 131 v těsné blízkosti města Náchod. Tento patrový objekt s jedním podlažím se pyšní zastavěnou plochou 214 m² a užitnou plochou 84 m², což zajišťuje dostatek prostoru pro pohodlné bydlení. Dům je částečně vybavený a jeho součástí je také sklep o ploše 6,4 m².

Nemovitost se nachází na parcele o celkové ploše 1097 m², která nabízí krásnou zahradu a dostatek prostoru pro příjemné venkovní aktivity. V okolí se rozprostírá krásná příroda, lesy a klidná místa, ideální pro relaxaci a odpočinek od městského ruchu.

Dům disponuje třemi prostornými pokoji a jeho zařízení zahrnuje radiátory, krbová kamna, bojler na elektřinu pro ohřev teplé vody, prostornou kuchyň s keramickou varnou deskou. K dispozici je také jedno parkoviště pro pohodlné parkování. Odpad je napojen na kanalizaci a přívod vody zajišťuje vodovod.

Jednou z výhod nemovitosti je její poloha v žádané lokalitě, kde je snadná dostupnost MHD a autobusové dopravy, což usnadňuje každodenní cestování. Dřevěné přístavby v okolí domu dodávají nemovitosti na charakteru a přispívají k příjemné atmosféře.

V případě zájmu o prohlídku mě neváhejte kontaktovat.
Cena:
5 890 000 CZK / za nemovitost
Poznámka k ceně:
Upozornění:
Prodávající si vyhrazuje právo vybrat kupujícího na základě jím zvolených kritérií.
RX finance

Spočítejte si splátku hypotéky

Na kolik vás vyjde pořízení vlastního bydlení? Zadejte pár informací do naší hypoteční kalkulačky a hned si prohlédněte výsledek.

Kupní cena nemovitosti

5 890 000 Kč

Výše hypotéky

Doba splácení

Vypočítaná měsíční splátka

Úroková sazba 3.6%

260 990 Kč

Hypotéku zařídíme za vás

Ušetřete svůj čas i nervy. Naši makléři zařídí veškeré papírování a dovedou vás až k úspěšnému podpisu smlouvy v bance.

Nechte nám kontakt, náš makléř se v pracovní dny ozve do 24 hodin

* – toto pole je nutné vyplnit
Ing. Boris Oláh
RE/MAX Infinity
Masarykovo náměstí 392/14
Hradec Králové, 50002
Česká republika
Tel. na makléře: +420 736 640 016
Tel. do kanceláře: +420 737 580 065
E-mail: boris.olah@re-max.cz

Potřebujete poradit/máte zájem o prohlídku?

* – toto pole je nutné vyplnit

Podrobné informace

Číslo zakázky:
ID 305-NP00827
Poloha objektu:
Samostatný
Počet podlaží v objektu:
1
Užitná plocha:
84 m²
Plocha parcely:
1 097 m²
Druh objektu:
Smíšená
Stav objektu:
Velmi dobrý
Typ nemovitosti:
Domy a vily
Charakter okolní zástavby:
Obytná
Doprava:
MHD, Autobus
Elektřina:
230 V
Odpad:
Kanalizace
Plocha zahrady:
883 m²
Zastavěná plocha:
214 m²
Počet parkovacích míst:
1
Typ domu:
Patrový
Umístění objektu:
Klidná část obce
Voda:
Dálkový rozvod
Vybaveno:
Ano
Energetická náročnost budovy:
G