Translate with 
MENU ZAVŘÍT

Prodej bytu 4+1 v osobním vlastnictví 80 m², Žatec (ID 032-NP09406)

ulice Lípová, Žatec mapa

3 499 000 Kč ( za nemovitost)
GMimořádně
nehospodárná

1x
4x
80 m2
1/8
Exkluzivně

Prostorný byt 4+1 v ulici Lípová, ideální volba pro rodinu

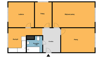
Hledáte nové bydlení, kde budete mít dostatek prostoru pro celou rodinu, výbornou dostupnost služeb a možnost okamžitého nastěhování? Tento zrekonstruovaný byt o dispozici 4+1 a výměře 80 m² v klidné ulici Lípová splní všechna vaše očekávání. Nachází se v panelovém domě po revitalizaci – dům je zateplený, má plastová okna a nový výtah. K bytu náleží také praktická sklepní kóje, která poskytne vítaný úložný prostor navíc.

Dispozice bytu je promyšlená a praktická – všechny místnosti jsou samostatné, což zajišťuje dostatek soukromí a flexibilitu při zařizování. Už při vstupu vás přivítá prostorná chodba s místem pro vestavěné skříně a odkládací stěnu. Koupelna s vanou a toaletou je po rekonstrukci – čistá, moderní a vhodná i pro rodiny s malými dětmi.

Srdcem domova je světlá kuchyň s jídelním koutem, kde se pohodlně potkáte s celou rodinou u snídaně nebo večeře. Prostor nabízí dostatek místa pro vaření i každodenní rodinné stolování. Samostatný obývací pokoj pak poslouží jako ideální místo pro společné chvíle, odpočinek i zábavu – ať už večer u filmu nebo při posezení s přáteli. Díky oddělenosti od kuchyně působí útulně a klidně.

Hlavní ložnice poskytuje rodičům dostatek prostoru pro velkou postel i šatní skříň a nabízí klidné zázemí. Dva samostatné pokoje jsou ideální jako dětské – každý z nich poskytuje dostatek místa na hraní, učení i odpočinek. Čtvrtý pokoj je možné využít jako pracovnu, hernu nebo pokoj pro hosty – podle aktuálních potřeb vaší rodiny.

Pro Vaši lepší představivost přikládám 3D půdorys nemovitosti a vizualizaci pracovny a dětského pokoje, abyste si lépe dokázali představit právě možná Vaše budoucí bydlení.

Byt se nachází v lokalitě, která je mimořádně vhodná pro rodinné bydlení. V docházkové vzdálenosti najdete školku, základní školu, nemocnici, lékárnu i obchody. Lokalita je klidná, s dobrou dopravní dostupností a kompletní občanskou vybaveností.

Pokud hledáte hotový byt, který nabízí prostor, funkční uspořádání a příjemnou lokalitu pro život s dětmi, pak je tato nabídka právě pro vás. Rád vám byt osobně představím – ozvěte se mi a domluvme si prohlídku. Tento byt má vše, co od domova očekáváte.

S případným financováním Vám rádi pomohou naši hypoteční poradci.

Budu se na Vás těšit.
Cena:
3 499 000 CZK / za nemovitost
Poznámka k ceně:
Upozornění:
Prodávající si vyhrazuje právo vybrat kupujícího na základě jím zvolených kritérií.
RX finance

Spočítejte si splátku hypotéky

Na kolik vás vyjde pořízení vlastního bydlení? Zadejte pár informací do naší hypoteční kalkulačky a hned si prohlédněte výsledek.

Kupní cena nemovitosti

3 499 000 Kč

Výše hypotéky

Doba splácení

Vypočítaná měsíční splátka

Úroková sazba 3.6%

260 990 Kč

Hypotéku zařídíme za vás

Ušetřete svůj čas i nervy. Naši makléři zařídí veškeré papírování a dovedou vás až k úspěšnému podpisu smlouvy v bance.

Nechte nám kontakt, náš makléř se v pracovní dny ozve do 24 hodin

* – toto pole je nutné vyplnit
Ing. Pavel Hassman
RE/MAX 4 You
Nám. 1. máje 95
Chomutov, 43001
Česká republika
Tel. na makléře: +420 608 024 888
Tel. do kanceláře: +420 739 500 617
E-mail: p.hassman@re-max.cz

Potřebujete poradit/máte zájem o prohlídku?

* – toto pole je nutné vyplnit

Podrobné informace

Číslo zakázky:
ID 032-NP09406
Dispozice:
4+1
Číslo podlaží:
1
Počet podlaží v objektu:
8
Podlahová plocha:
80 m²
Druh objektu:
Panelová
Stav objektu:
Velmi dobrý
Vlastnictví:
Osobní
Typ nemovitosti:
Byty
Doprava:
Vlak, Silnice, MHD, Autobus
Odpad:
Kanalizace
Užitná plocha:
80 m²
Plyn:
Plynovod
Voda:
Dálkový rozvod
Výtah:
Ano
Energetická náročnost budovy:
G