Translate with 
MENU ZAVŘÍT

Prodej domu 197 m², Praha 8 - Ďáblice (ID 059-NP07717)

ulice Legionářů, Praha 8 – Ďáblice mapa

22 980 000 Kč ( za nemovitost)
CÚsporná

5+
197 m2
661 m2
2
Exkluzivně

Rodinný dům 4+kk se třemi byty 2+kk, zahradou, 5 x parkovací stání v Ďáblicích - Praha 8

Výhradně pro Vás máme rodinný dům po rekonstrukci 4+kk se třemi samostatnými byty 2+kk na adrese Legionářů 147/48, Ďáblice – Praha 8 na pozemku 661 m2 s pěti parkovacími stáními na nádvoří domu a další parkovací stání na ulici před domem se zahradou o rozloze 303 m2. Dům je z roku 1923 a prošel kompletní rekonstrukcí a změnou dispozice místností, a tak vzniklo více prostoru, soukromí a 3 byty.
Dům je částečně podsklepený s komorou na potraviny, technickou místností s pračkou, sušičkou a bojlerem zn. DRAŽICE, 2 x pokoj a jedním pokojem pro hosty se samostatným vchodem z nádvoří. Obývací pokoj s oknem do ulice je součástí kuchyně s novou kuchyňskou linkou se spotřebiči, vše součástí domu a ceny. Spotřebiče: americká lednice zn. BEKO, horkovzdušná trouba zn. AEG, mikrovlnná trouba zn. Concept, sklokeramická deska zn. AEG, digestoř zn. Concept. Koupelna s rohovou vanou a sprchovým koutem, WC je samostatné s malým umyvadlem. Podlahy domu jsou plovoucí a kremnická dlažba s podlahovým topením v koupelně a v ostatních místnosti jsou osazeny radiátory.
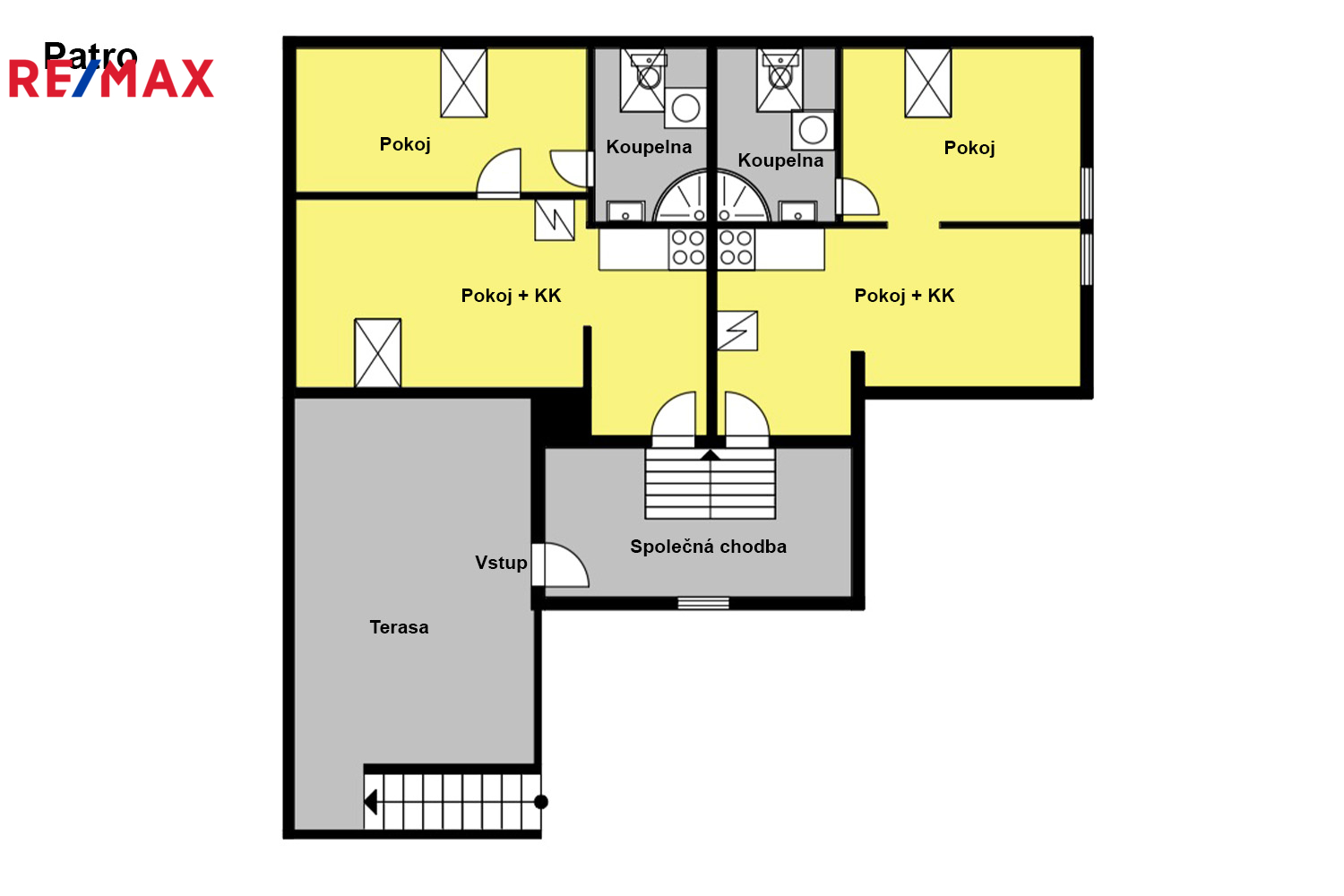
Byty v 2. NP:
Společná chodba pro dva byty vedle sebe byt č. 2 o velikosti 2+kk/cca 34,37 m2 s koupelnou se sprchovým koutem a WC, byt má vlastní bojler, el. hodiny, je vybaven spotřebiči (lednice, el. sporák a trouba, digestoř, pračka, mikrovlnná trouba a nábytek).
Byt č. 3 o velikosti 2+kk/cca 36,13 m2 se dvěma pokoji a kuchyňským koutem se spotřebiči a samostatnou koupelnou se sprchovým koutem.
Byt v přízemí:
Byt č. 1 o velikosti 2+kk se samostatným vstupem do bytů z nádvoří domu. Byt je opět kompletně vybaven nábytkem a spotřebiči a také má vlastní bojler na ohřev vody a vlastní el. hodiny.
Všechny byty a dům jsou vytápěny plynovým kotlem zn. JUNKERS z kotelny a dílny, která má samostatný vstup z nádvoří domu.
Byty jsou v současné chvíli pronajaty a zajištují měsíční výnos 65 000 Kč (není ovšem podmínkou, nájemníci jsou s prodejem seznámeni, záleží na preferencích nového vlastníka).

Technické informace:
Stavba domu je cihlová, zateplená polystyrénem.
Okna jsou nová plastová a v 2. NP jsou i nová plastová střešní okna.
Střešní krytina s vlnitou novou plechovou krytinou včetně okapů a hromosvodu.
Vytápění domu je v kotelně - plynovým kotlem zn. JUNKERS - Přípojka do domu je z 25. 11. 2002.
Dům je napojený na kanalizační přípojku a revizní šachtu od 02. 08. 1996.
Na pozemku je studna
Každý byt a i dům má svůj samostatný bojler na ohřev vody a vlastní elektroměr.
Nově rozvody vody v plastu a elektřiny v mědi.

Pozemek
Zastavěná plocha a nádvoří domu o velikosti 358 m2 je osazeno zámkovou dlažbou a umožňuje vjezd na pozemek přímo z ulice Legionářů
Zahrada u domu o velikosti 303 m2 poskytuje klid a útočiště s posezením pod ovocnými stromy vedle zahradního domku, díky němuž máte kam uklidit vše potřebné pro její údržbu.
Na pozemku je vlastní studna, kterou majitelé nyní nevyužívají.
Ovocné stromy – třešeň, jabloň, švestka

Metro C – nejbližší stanice Ládví / Kobylisy, Tramvaj v dosahu, spojení na D8, Bus
Cena:
22 980 000 CZK / za nemovitost
Poznámka k ceně:
Cena je včetně provize a DPH a může se měnit s poptávkou
Upozornění:
Prodávající si vyhrazuje právo vybrat kupujícího na základě jím zvolených kritérií.
RX finance

Spočítejte si splátku hypotéky

Na kolik vás vyjde pořízení vlastního bydlení? Zadejte pár informací do naší hypoteční kalkulačky a hned si prohlédněte výsledek.

Kupní cena nemovitosti

22 980 000 Kč

Výše hypotéky

Doba splácení

Vypočítaná měsíční splátka

Úroková sazba 3.6%

260 990 Kč

Hypotéku zařídíme za vás

Ušetřete svůj čas i nervy. Naši makléři zařídí veškeré papírování a dovedou vás až k úspěšnému podpisu smlouvy v bance.

Nechte nám kontakt, náš makléř se v pracovní dny ozve do 24 hodin

* – toto pole je nutné vyplnit
Nikol Kiššová
RE/MAX G8 Reality 4
Václavská 864
Kolín, 28002
Česká republika
Tel. na makléře: +420 604 442 422
Tel. do kanceláře: +420 603 392 333
E-mail: nikol.kissova@re-max.cz

Potřebujete poradit/máte zájem o prohlídku?

* – toto pole je nutné vyplnit

Podrobné informace

Číslo zakázky:
ID 059-NP07717
Poloha objektu:
V bloku
Počet podlaží v objektu:
2
Užitná plocha:
197 m²
Plocha parcely:
661 m²
Druh objektu:
Cihlová
Stav objektu:
Po rekonstrukci
Typ nemovitosti:
Domy a vily
Charakter okolní zástavby:
Obytná
K nastěhování:
30. 10. 2025
Doprava:
Dálnice, Silnice, MHD, Autobus
Elektřina:
230 V, 400 V
Odpad:
Kanalizace
Plocha zahrady:
303 m²
Zastavěná plocha:
358 m²
Plyn:
Plynovod
Počet parkovacích míst:
5
Počet podlaží pod zemí:
1
Telekomunikace:
Internet
Typ domu:
Patrový
Umístění objektu:
Okraj obce
Voda:
Zdroj pro celý objekt, Dálkový rozvod
Vybaveno:
Ano
Energetická náročnost budovy:
C
Měrná vypočtená roční spotřeba energie v kWh/m²/rok:
109