Translate with 
MENU ZAVŘÍT

Pronájem bytu 3+1 v osobním vlastnictví 83 m², Praha 5 - Smíchov (ID 218-NP06736)

ulice Staropramenná, Praha 5 – Smíchov mapa

26 900 Kč ( za měsíc)
GMimořádně
nehospodárná

1x
3x
83 m2
3/5

Pronájem bytu 3+1, 83m2, Praha 5 - Smíchov

K dlouhodobému pronájmu nabízíme krásný, světlý a prostorný byt přímo u metra Anděl.

Lokalita poskytuje široké zázemí pro sportovní, relaxační i kulturní volnočasové aktivity a nachází se zde veškerá občanská vybavenost.

Byt prošel velmi vkusnou a kvalitní komplexní rekonstrukcí.
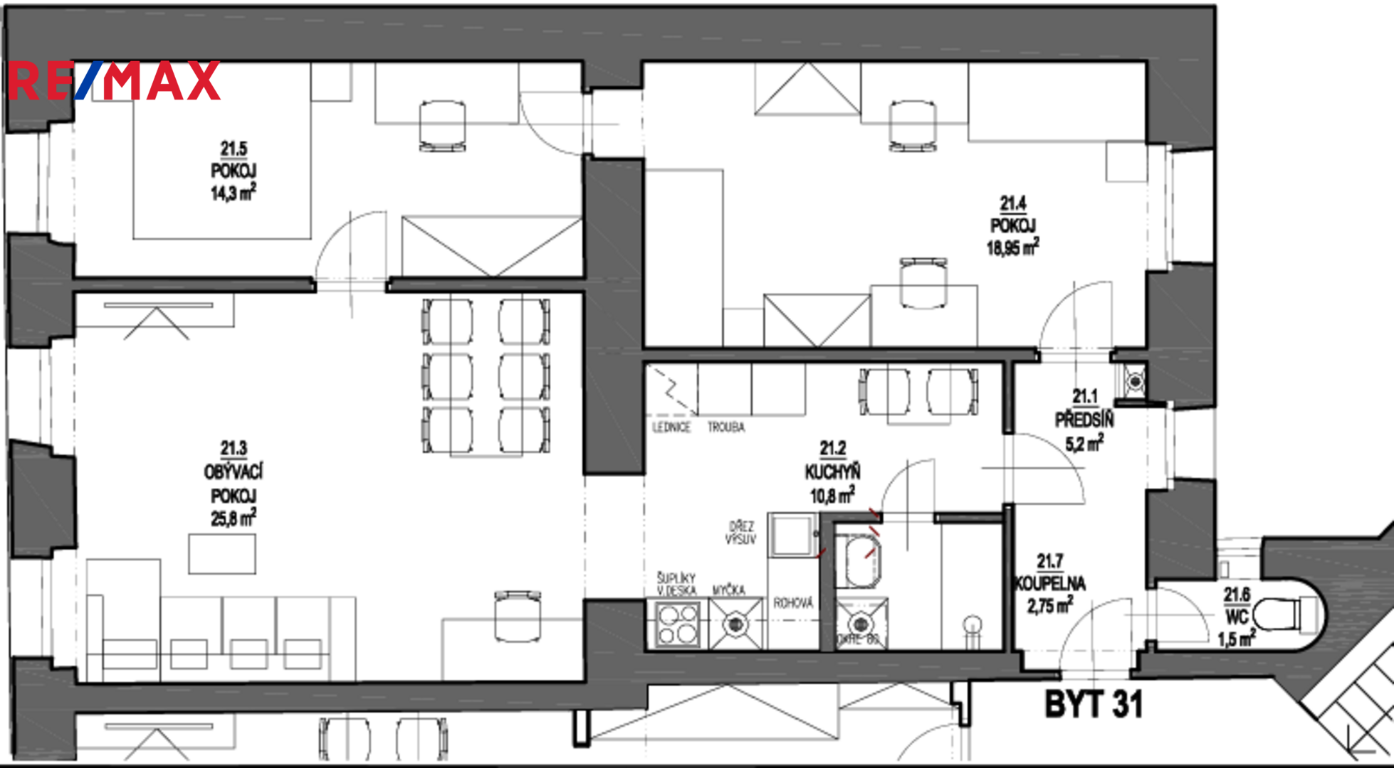
Nachází v 3. NP činžovního domu, jeho podlahová plocha je 83 m2. Dispozičně je řešen následovně: z prostorné předsíně jsou vstupy do samostatného pokoje, kuchyně s plně vybavenou kuchyňskou linkou a samostatného WC. Kuchyně je propojena průchodem s obývacím pokojem, ze kterého se vstupuje do velkorysé ložnice. Koupelna je se sprchovým koutem.

Fotografie kuchyně je vizualizací, reálně kuchyně prochází fází dohotovení.

Nájemné činí 26.900,- Kč + poplatky 700,- Kč / os. bez el. energie, která je převáděna na nájemce. Majitel požaduje kauci ve výši dvou měsíčních nájmů.
Cena:
26 900 CZK / za měsíc
Poznámka k ceně:
+ záloha na služby 700,- Kč / os + el. energie
Upozornění:
Pronajímající si vyhrazuje právo vybrat nájemce na základě jím zvolených kritérií.
Ing. Jitka Zichová
RE/MAX Anděl
Ostrovského 253/3
Praha 5 - Smíchov, 15000
Česká republika
Tel. na makléře: +420 606 369 886
Tel. do kanceláře: +420 725 293 030
E-mail: jitka.zichova@re-max.cz

Potřebujete poradit/máte zájem o prohlídku?

* – toto pole je nutné vyplnit

Podrobné informace

Číslo zakázky:
ID 218-NP06736
Dispozice:
3+1
Číslo podlaží:
3
Počet podlaží v objektu:
5
Podlahová plocha:
83 m²
Druh objektu:
Cihlová
Stav objektu:
Po rekonstrukci
Vlastnictví:
Osobní
Typ nemovitosti:
Byty
K nastěhování:
15. 11. 2025
Doprava:
MHD
Elektřina:
230 V
Občanská vybavenost:
Škola, Školka, Zdravotnická zařízení, Pošta, Supermarket, Kompletní síť obchodů a služeb
Odpad:
Kanalizace
Užitná plocha:
83 m²
Voda:
Dálkový rozvod
Energetická náročnost budovy:
G