Translate with 
MENU ZAVŘÍT

Pronájem bytu 3+kk v osobním vlastnictví 86 m², Český Brod (ID 205-NP12171)

ulice Bezručova, Český Brod mapa

20 000 Kč ( za měsíc)
GMimořádně
nehospodárná

kk
3x
86 m2
3/3
Exkluzivně

Pronájem mezonetového bytu 3 + kk v Českém Brodě

Ve výhradním zastoupení vlastníka si vám dovoluji nabídnout k pronájmu krásný půdní mezonetový byt v ulici Bezručova v Českém Brodě.

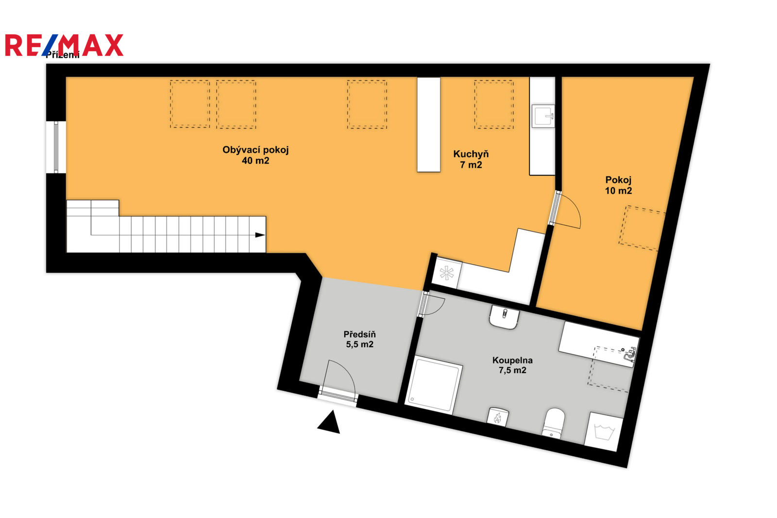
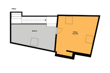
Byt o dispozici 3 + kk (+ galerie/pracovna) je umístěn v 3. nadzemním podlaží cihlového domu bez výtahu. Oficiální výměra bytu je 86,5 m2, do které ale nejsou započítány plochy pod zkosením a celá galerie. Celková podlahová plocha je tedy 116 m2.

V první úrovni bytu najdete předsíň, obývací pokoj s jídelnou a kuchyní, ložnici a koupelnu s vanou i sprchovým koutem. Po dřevěných schodech pak vejdete na galerii, která momentálně slouží jako pracovna. Vedle galerie je umístěna druhá ložnice s šatnou. Výhodou bytu jsou vestavěné skříně v předsíni, pracovně, šatně a bezpečnostní vstupní dveře. Jedinečnost a charakter bytu dodávají dřevěné trámy.

Vytápění zajišťuje vlastní plynový kotel. V bytě je nainstalována klimatizace.

Dům má nová plastová okna a novou střechu. K domu náleží vlastní uzavřená zahrada, kterou je možné využívat.

V Českém Brodě je plná občanská vybavenost. Najdete zde školy, školky, kompletní síť obchodů a služeb. Český Brod má navíc vynikající dopravní dostupnost do Prahy (vlakem cca 30 minut do centra, autem cca 25 minut na Černý Most).

Nájemné 20 000 Kč / měsíc
Poplatky SVJ 1 177 Kč / měsíc
Elektřina 1660 Kč / měsíc
Plyn 1 450 Kč / měsíc
Internet 300 Kč / měsíc
Kauce 40 000 Kč

Byt je ihned k dispozici.


V případě zájmu o prohlídku mě kontaktujte na tel. 774 30 20 12.
Cena:
20 000 CZK / za měsíc
Poznámka k ceně:
+ poplatky
Upozornění:
Pronajímající si vyhrazuje právo vybrat nájemce na základě jím zvolených kritérií.
Ing. Lucie Černá
RE/MAX Alfa
Spálená 97/29
Praha 1 - Nové Město, 11000
Česká republika
Tel. na makléře: +420 774 302 012
Tel. do kanceláře: +420 296 240 400
E-mail: lucie.cerna@re-max.cz

Potřebujete poradit/máte zájem o prohlídku?

* – toto pole je nutné vyplnit

Podrobné informace

Číslo zakázky:
ID 205-NP12171
Dispozice:
3+kk
Číslo podlaží:
3
Počet podlaží v objektu:
3
Podlahová plocha:
86 m²
Druh objektu:
Smíšená
Stav objektu:
Velmi dobrý
Vlastnictví:
Osobní
Typ nemovitosti:
Byty
K nastěhování:
15. 11. 2025
Odpad:
Kanalizace
Užitná plocha:
86 m²
Zastavěná plocha:
254 m²
Plyn:
Plynovod
Počet podlaží pod zemí:
1
Voda:
Dálkový rozvod
Vybaveno:
Ano
Energetická náročnost budovy:
G