Translate with 
MENU ZAVŘÍT

Pronájem bytu 3+1 v osobním vlastnictví 69 m², Nymburk (ID 059-NP07716)

ulice Jasmínová, Nymburk mapa

14 000 Kč ( za měsíc)
GMimořádně
nehospodárná

1x
3x
69 m2
4/8
Exkluzivně

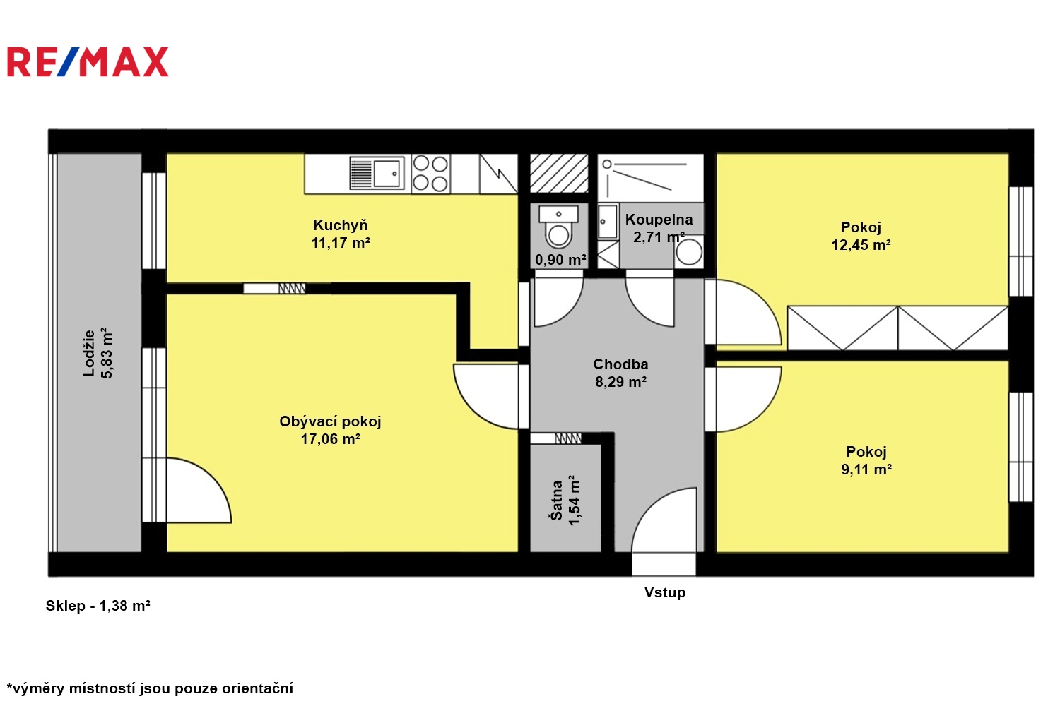
Pronájem bytu 3+1/L o výměře 69 m2 v Nymburce

Nabízím Vám exkluzivně pronájem bytu o dispozici 3+1 s lodžií v klidné a zelení obklopené části Nymburka. Bytová jednotka se nachází ve 3. patře ze 7. panelového domu s výtahem v ulici Jasmínová. Dům je po kompletní revitalizaci (plastová okna, fasáda, zateplení, výtah, střecha).
Byt prošel rekonstrukcí bytového jádra včetně kompletních rozvodů (voda, elektroinstalace, odpady) cca před šesti lety. Současně s jádrem byla pořízena i kuchyňská linka.
Vytápění je dálkové ústřední topnými tělesy.
Součástí nájmu je kuchyňská linka, digestoř, plynový sporák s elektrickou troubou, lednice, mikrovlnka, kulatý stůl, v obýváku stěna a konferenční stolek, v ložnici větší šatní skříň, v koupelně pračka, skříňky, umyvadlo, zrcadlo, toaleta, sprchový kout, v šatně regály.
K bytové jednotce náleží sklepní prostor a možnost využití společné kolárny.
Při podpisu nájemní smlouvy je nutné složit vratnou kauci ve výši dvou měsíčních nájmů a provizi realitní kanceláře 16 940 Kč. Služby a energie jsou cca 4 194 Kč a plyn a elektřina se převádí na nájemce. Plyn je pouze na vaření cca 300 Kč a elektřina cca 1 500 Kč za měsíc.
V okolí je veškerá občanská vybavenost město nabízí dostatek možností pro volnočasové aktivity i každodenní potřeby.
Kousek od nemovitosti je vlakové nádraží a za 40 minut jste v Praze na hlavním nádraží.
Pronajímající si vyhrazuje právo, zvolit si nájemce na základě jim zvolených kritérií.
V případě zájmu o prohlídku nebo více informací mě prosím kontaktujte.
Cena:
14 000 CZK / za měsíc
Poznámka k ceně:
+ energie a služby + vratná kauce 28 000 Kč
Upozornění:
Pronajímající si vyhrazuje právo vybrat nájemce na základě jím zvolených kritérií.
Michal Zadražil
RE/MAX G8 Reality 4
Václavská 864
Kolín, 28002
Česká republika
Tel. na makléře: +420 774 942 980
Tel. do kanceláře: +420 603 392 333
E-mail: michal.zadrazil@re-max.cz

Potřebujete poradit/máte zájem o prohlídku?

* – toto pole je nutné vyplnit

Podrobné informace

Číslo zakázky:
ID 059-NP07716
Dispozice:
3+1
Číslo podlaží:
4
Počet podlaží v objektu:
8
Podlahová plocha:
69 m²
Druh objektu:
Panelová
Stav objektu:
Dobrý
Vlastnictví:
Osobní
Typ nemovitosti:
Byty
K nastěhování:
1. 11. 2025
Doprava:
Vlak, Silnice, MHD, Autobus
Elektřina:
230 V
Odpad:
Kanalizace
Užitná plocha:
69 m²
Zastavěná plocha:
959 m²
Plyn:
Plynovod
Počet podlaží pod zemí:
1
Umístění objektu:
Klidná část obce
Voda:
Dálkový rozvod
Vybaveno:
Ano
Výtah:
Ano
Energetická náročnost budovy:
G