Translate with 
MENU ZAVŘÍT

Prodej domu 108 m², Býšť (ID 061-NP03065)

Býšť, okres Pardubice mapa

10 990 000 Kč ( za nemovitost)
GMimořádně
nehospodárná

3x
108 m2
1736 m2
1
Exkluzivně

Prodej rodinného domu se zahradou, saunou a vinárnou v obci Býšť

Hledáte klidné bydlení mezi Hradcem Králové a Pardubicemi, obklopené přírodou, ale s dobrou dostupností města?

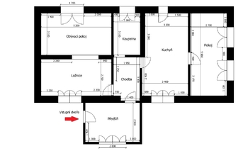
Pak právě pro vás je určen tento útulný rodinný dům o dispozici 3+1 v oblíbené obci Býšť.

Po vstupu do domu Vás přivítá prostorná předsíň, z níž se pohodlně dostanete do všech hlavních částí domu. Světlá kuchyně s jídelním koutem – ideální místo pro rodinná setkání. Na kuchyň navazuje pokoj, který může sloužit jako dětský nebo pracovna. Z chodby se dostanete do koupelny a WC, dále pak do ložnice a obývacího pokoje, ze kterého vedou dvoukřídlé prosklené dveře přímo na zahradu. Uvnitř domu jsou nové podlahy - betonová stěrka, plovoucí podlaha, dlažba. Kuchyň včetně vestavěných spotřebičů - mikrovlnná trouba, elektrická trouba, sklokeramická deska, myčka.

Zahrada o velikosti 1336 m² je skutečnou oázou klidu – nechybí zde zastřešená terasa, velký ořech, jabloňový sad, třešeň a vlastní studna.

V každém ročním období oceníte samostatnou vinárnu s kamenným krbem pro příjemné posezení s přáteli a také saunu, která z domu dělá skutečné místo pro odpočinek.

Součástí domu je garáž, dílna, sklad s dřevěnými posuvnými vraty a rozlehlé podkroví, které nabízí možnost vybudování dalších obytných prostor podle vašich představ.

Obec Býšť leží jen 15 km od Pardubic a 10 km od Hradce Králové, a nabízí ideální spojení klidného venkova s městským komfortem. V okolí najdete lesy, cyklostezky a krásnou přírodu, která přímo vybízí k procházkám a rekreaci.

✨ Shrnutí výhod:
• dispozice 3+1, možnost rozšíření o podkroví
• zrestaurovaná dřevěná špaletová okna
• prostorná zahrada se sadem a studnou
• terasa s podlahou s kanadského modřínu
• vinárna s kamenným krbem a sauna
• garáž
• skvělá dostupnost do Hradce Králové i Pardubic
• cca 5km vzdálená dálnice D35

Koupi lze samozřejmě financovat hypotečním úvěrem. Jaké jsou možnosti na současném trhu, Vám sdělí náš zkušený hypoteční poradce.

Prodávající si vyhrazuje právo vybrat kupujícího na základě jím zvolených kritérií a v případě více zájemců uspořádat aukci.

Zaujalo vás toto jedinečné místo?
Nečekejte, než ho objeví někdo jiný – domluvte si prohlídku ještě dnes!

Těšíme se na Vás.
Cena:
10 990 000 CZK / za nemovitost
Poznámka k ceně:
Upozornění:
Prodávající si vyhrazuje právo vybrat kupujícího na základě jím zvolených kritérií.
RX finance

Spočítejte si splátku hypotéky

Na kolik vás vyjde pořízení vlastního bydlení? Zadejte pár informací do naší hypoteční kalkulačky a hned si prohlédněte výsledek.

Kupní cena nemovitosti

10 990 000 Kč

Výše hypotéky

Doba splácení

Vypočítaná měsíční splátka

Úroková sazba 3.6%

260 990 Kč

Hypotéku zařídíme za vás

Ušetřete svůj čas i nervy. Naši makléři zařídí veškeré papírování a dovedou vás až k úspěšnému podpisu smlouvy v bance.

Nechte nám kontakt, náš makléř se v pracovní dny ozve do 24 hodin

* – toto pole je nutné vyplnit
Karel Šmíd
RE/MAX 4 You II
Antala Staška 511/40
Praha 4 - Krč, 14000
Česká republika
Tel. na makléře: +420 733 691 197
Tel. do kanceláře: +420 733 152 553
E-mail: karel.smid@re-max.cz

Potřebujete poradit/máte zájem o prohlídku?

* – toto pole je nutné vyplnit

Podrobné informace

Číslo zakázky:
ID 061-NP03065
Poloha objektu:
Samostatný
Počet podlaží v objektu:
1
Užitná plocha:
108 m²
Plocha parcely:
1 736 m²
Druh objektu:
Cihlová
Stav objektu:
Dobrý
Typ nemovitosti:
Domy a vily
Charakter okolní zástavby:
Obytná
K nastěhování:
13. 11. 2025
Doprava:
Silnice, Autobus
Elektřina:
230 V, 400 V
Garáž:
Ano
Odpad:
Septik
Plocha zahrady:
1 336 m²
Zastavěná plocha:
233 m²
Typ domu:
Přízemní
Voda:
Dálkový rozvod
Energetická náročnost budovy:
G