Translate with 
MENU ZAVŘÍT

Prodej bytu 2+kk v osobním vlastnictví 55 m², Praha 4 - Modřany (ID 201-NP03265)

ulice Pod sady, Praha 4 – Modřany mapa

8 626 000 Kč ( za nemovitost)
GMimořádně
nehospodárná

kk
2x
55 m2
3/4
Exkluzivně

Nový byt 2+kk s balkónem v komorním domě – Praha 4 – Modřany

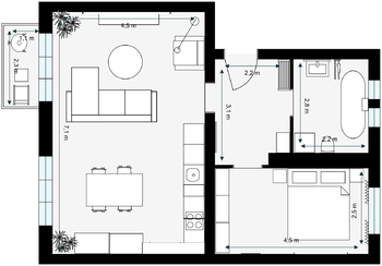
Hledáte nové bydlení v klidné části Prahy s výbornou dostupností a jistotou kvalitního zpracování? Tento byt 2+kk o vnitřní užitné ploše 55,44 m² s balkónem 4 m² a sklepem 4 m² je součástí nově budované zděné nástavby cihlového domu z roku 1960 v ulici Pod Sady v pražských Modřanech.

Byt se nachází ve 3. nadzemním podlaží a nabízí promyšlenou dispozici: předsíň s místem pro vestavné skříně, světlý obývací pokoj s kuchyňským koutem a vstupem na balkón, ložnici a koupelnu s toaletou. Balkón je orientován na jihovýchod s výhledem do zeleně se vzrostlými stromy – ideální místo pro klidné posezení u ranní kávy nebo večerní sklenky vína. Ložnice a koupelna směřují na severozápad, což zajišťuje příjemné klima i v letních měsících.

Stav dokončení bytu bude ve formě kompletně dokončených podlah, osazených zárubní a interiérových dveří a plně hotové koupelny. Pro budoucí kuchyňskou linku bude připravena elektroinstalace i napojení na vodovod a odpad, takže nový majitel může kuchyň ihned nainstalovat podle vlastních představ.

Vytápění je prostřednictvím radiátorů, zdrojem tepla i ohřevu vody je plynový kondenzační kotel, který zajišťuje úsporný provoz a komfortní regulaci.

K celé nové nástavbě se váže záruka 5 let, což je silný argument pro všechny, kdo chtějí nové bydlení bez starostí a jistotu dlouhodobé kvality.

Projekt zahrnuje osm nových bytů vznikajících ve dvou nových podlažích původního domu. Dům má celkem čtyři nadzemní a jedno podzemní podlaží, dva samostatné vchody a 16 bytových jednotek. Ve spodním podlaží jsou sklepní kóje. Výstavba probíhá podle harmonogramu a dokončení je plánováno do konce srpna 2026.

Vlastnictví bytu je družstevní s následnou možností převodu do osobního vlastnictví hned po dokončení stavby. Energetický štítek zatím není k dispozici, proto se uvádí hodnota G.

Modřany patří mezi nejžádanější pražské čtvrti díky spojení zeleně, klidu a skvělé dopravní dostupnosti – tramvajové linky i železniční zastávka zajišťují rychlé spojení do centra. V docházkové vzdálenosti se nachází školy, školky, obchody, kavárny, restaurace, zdravotnická zařízení i cyklostezka podél Vltavy.

Pro vaši inspiraci přikládáme vizualizaci možné podoby interiéru hlavní obytné místnosti, která ukazuje, jak elegantně lze prostor pojmout v moderním a nadčasovém stylu.

Neváhejte mě kontaktovat – čím dříve byt rezervujete, tím více budete moci ovlivnit jeho finální design i výběr materiálů.

Tento byt je ideální volbou pro jednotlivce nebo pár, kteří hledají moderní, bezúdržbové bydlení s pětiletou zárukou na novou nástavbu v tradiční pražské rezidenční lokalitě s příjemnou atmosférou a dostatkem zeleně.
Cena:
8 626 000 CZK / za nemovitost
Poznámka k ceně:
Cena je včetně provize realitní kanceláře.
Upozornění:
Prodávající si vyhrazuje právo vybrat kupujícího na základě jím zvolených kritérií.
RX finance

Spočítejte si splátku hypotéky

Na kolik vás vyjde pořízení vlastního bydlení? Zadejte pár informací do naší hypoteční kalkulačky a hned si prohlédněte výsledek.

Kupní cena nemovitosti

8 626 000 Kč

Výše hypotéky

Doba splácení

Vypočítaná měsíční splátka

Úroková sazba 3.6%

260 990 Kč

Hypotéku zařídíme za vás

Ušetřete svůj čas i nervy. Naši makléři zařídí veškeré papírování a dovedou vás až k úspěšnému podpisu smlouvy v bance.

Nechte nám kontakt, náš makléř se v pracovní dny ozve do 24 hodin

* – toto pole je nutné vyplnit
Jan Halík
RE/MAX Atrium
Podolská 811/138
Praha 4 - Podolí, 14700
Česká republika
Tel. na makléře: +420 603 377 791
Tel. do kanceláře: +420 606 726 515
E-mail: jan.halik@re-max.cz

Potřebujete poradit/máte zájem o prohlídku?

* – toto pole je nutné vyplnit

Podrobné informace

Číslo zakázky:
ID 201-NP03265
Dispozice:
2+kk
Číslo podlaží:
3
Počet podlaží v objektu:
4
Podlahová plocha:
55 m²
Druh objektu:
Cihlová
Stav objektu:
Novostavba
Vlastnictví:
Osobní
Typ nemovitosti:
Byty
Charakter okolní zástavby:
Obytná
Doprava:
Vlak, Dálnice, Silnice, MHD, Autobus
Elektřina:
230 V
Odpad:
Kanalizace
Ostatní rozvody:
Kabelová televize, Kabelové rozvody
Užitná plocha:
55 m²
Plyn:
Plynovod
Počet podlaží pod zemí:
1
Rok výstavby:
2 026
Telekomunikace:
Telefon, Internet
Umístění objektu:
Klidná část obce
Voda:
Dálkový rozvod
Energetická náročnost budovy:
G