Translate with 
MENU ZAVŘÍT

Prodej bytu 2+1 v osobním vlastnictví 53 m², Praha 6 - Veleslavín (ID 320-NP00238)

ulice Šumberova, Praha 6 – Veleslavín mapa

6 950 000 Kč ( za nemovitost)
GMimořádně
nehospodárná

1x
2x
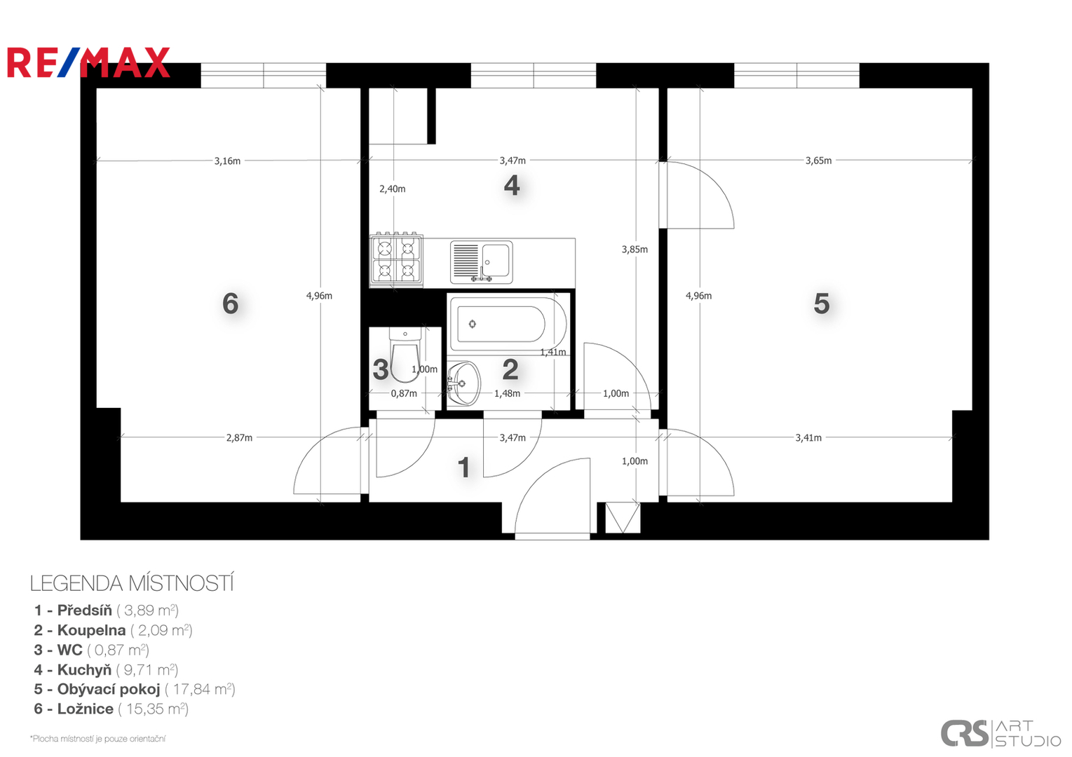
53 m2
2/4
Exkluzivně

Prostorný byt 2 + 1 se dvěma francouzskými okny s výhledem do zeleně, Praha 6, Veleslavín

Exkluzivně nabízím prostorný byt 2 + 1 se dvěma francouzskými okny s výhledem do zeleně,
kousek od metra Petřiny a MHD v klidném prostředí Veleslavína.
Hledáte ideální místo pro život, které kombinuje pohodlí městské dostupnosti s klidem a vyžitím v zeleni?
Máte představivost a toužíte si byt zrenovovat a zařídit podle svých představ?
Tento světlý a vzdušný byt 2 + 1 s dvěma francouzskými okny a sklepem nabízí přesně to, a ještě něco navíc.
Co vás na tomto bytě nadchne:
Výborná lokalita – Veleslavín doslova kousek od metra Petřiny a MHD, školky, školy i nákupního centra,
Příjemná procházka – parkem a starým Veleslavínem na Evropskou na metro, MHD i vlak
Výhled do parku, do zeleně – z obýváku i lodžie francouzskými okny
Flexibilní dispozice – možnost přestavby na moderní byt s velkým obývacím prostorem
Kuchyně čeká na vaši fantazii – připravená na instalaci nové linky nebo propojení s obývákem
Vzdušnost a světlo – francouzská okna, velkoplošná okna
Parkety – zachovalé v obýváku a ložnici
Sklep – suchý v suterén
Dům je zateplený, skvěle udržovaný, SVJ hospodaří s plusem
Skvělá volba pro rodinu, pár nebo kohokoli, kdo chce bydlet pohodlně a mít vše potřebné na dosah.
Prodávající si vyhrazuje právo vybrat kupujícího dle vlastních kritérií.
Zaujala vás nabídka?
Napište mi e-mail a domluvíme si osobní prohlídku.
Cena:
6 950 000 CZK / za nemovitost
Poznámka k ceně:
Upozornění:
Prodávající si vyhrazuje právo vybrat kupujícího na základě jím zvolených kritérií.
RX finance

Spočítejte si splátku hypotéky

Na kolik vás vyjde pořízení vlastního bydlení? Zadejte pár informací do naší hypoteční kalkulačky a hned si prohlédněte výsledek.

Kupní cena nemovitosti

6 950 000 Kč

Výše hypotéky

Doba splácení

Vypočítaná měsíční splátka

Úroková sazba 3.6%

260 990 Kč

Hypotéku zařídíme za vás

Ušetřete svůj čas i nervy. Naši makléři zařídí veškeré papírování a dovedou vás až k úspěšnému podpisu smlouvy v bance.

Nechte nám kontakt, náš makléř se v pracovní dny ozve do 24 hodin

* – toto pole je nutné vyplnit
Bc. David Hanzlík
RE/MAX Welcome Home
Zenklova 2245/29
Praha 8 - Libeň, 18000
Česká republika
Tel. na makléře: +420 733 522 918
Tel. do kanceláře: +420 602 400 024
E-mail: david.hanzlik@re-max.cz

Potřebujete poradit/máte zájem o prohlídku?

* – toto pole je nutné vyplnit

Podrobné informace

Číslo zakázky:
ID 320-NP00238
Dispozice:
2+1
Číslo podlaží:
2
Počet podlaží v objektu:
4
Podlahová plocha:
53 m²
Druh objektu:
Cihlová
Stav objektu:
Před rekonstrukcí
Vlastnictví:
Osobní
Typ nemovitosti:
Byty
Odpad:
Kanalizace
Užitná plocha:
53 m²
Zastavěná plocha:
667 m²
Plyn:
Plynovod
Počet podlaží pod zemí:
1
Energetická náročnost budovy:
G