Translate with 
MENU ZAVŘÍT

Pronájem bytu 2+kk v osobním vlastnictví 70 m², Praha 5 - Košíře (ID 205-NP12285)

ulice Musílkova, Praha 5 – Košíře mapa

23 000 Kč ( za měsíc)
CÚsporná

kk
2x
70 m2
4/6
Exkluzivně

Pronájem 2+kk s terasou a výhledem – Musílkova, Praha 5 – Košíře

Nabízím pronájem příjemného, reprezentativního bytu v klidné části Prahy 5, odkud je to jen pár minut do centra.
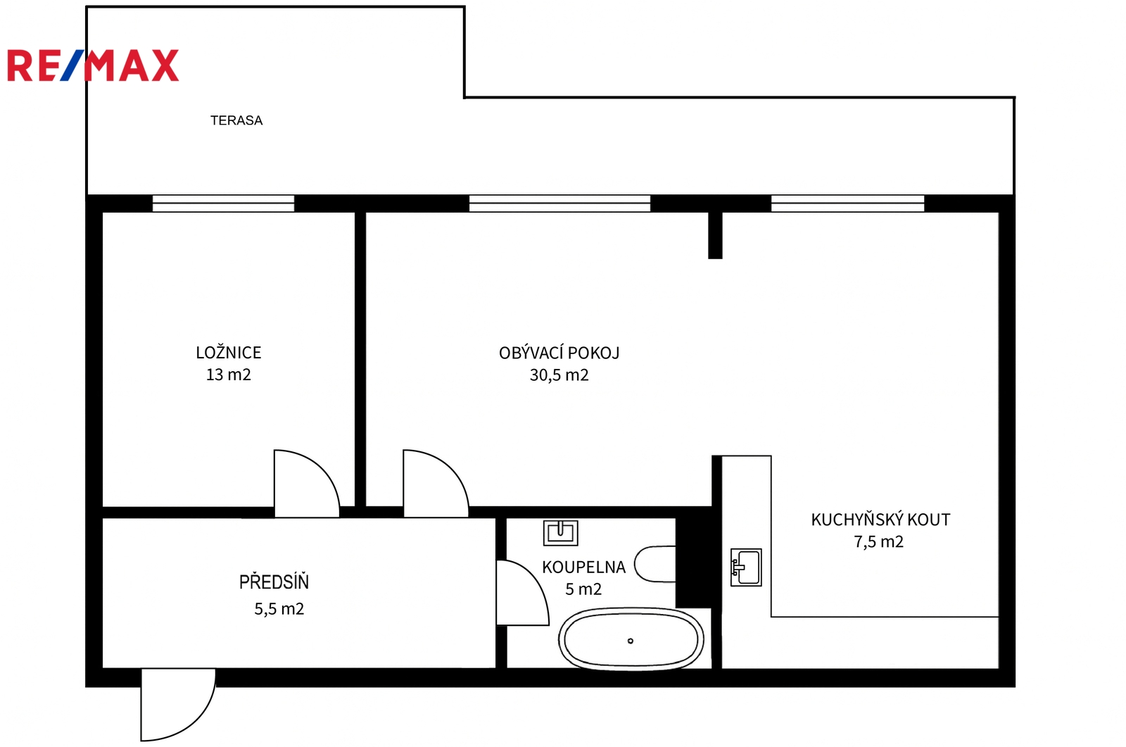
Byt o velikosti 61,4 m² s velkorysou terasou nabízí dostatek světla, prostoru a pohodlí. Jedná se o nadstandardní bydlení pro ty, kdo si potrpí na kvalitu, klid a pohodlí. K bytu náleží garážové stání.

Byt se pronajímá bez nábytku.

Dispozice 2+kk je ideální pro jednotlivce nebo pár, který ocení kvalitu a soukromí:
- předsíň s vestavěnými skříněmi,
- obývací pokoj s kuchyňským koutem a vstupy na terasu,
- ložnice s vestavěnými skříněmi a dalším vstupem na terasu,
- koupelna s vanou a WC,
- prostorná terasa přístupná ze všech místností.

Kuchyňská linka je plně vybavená všemi spotřebiči, podlahy jsou v dřevěném dekoru.
Interiér působí svěže a díky kombinaci světlých barev a dřeva vytváří příjemnou atmosféru. Na oknech jsou nainstalované venkovní žaluzie, které v letních měsících vytvoří příjemné zastínění.

Byt se nachází ve 4. podlaží moderního domu s výtahem v oblíbené lokalitě Praha 5 – Košíře, která nabízí výbornou dopravní dostupnost i dostatek zeleně a klidu. V okolí najdete obchody, kavárny, park Cibulka i oblíbené sportovní stezky.

✅ dlouhodobý pronájem
✅ určeno pro max. 2 osoby
✅ ihned k nastěhování

Měsíční nájemné: 23 000 Kč
Jistota/kauce: 46 000 Kč
Měsíční poplatky: 4 000 Kč
Elektřinu si nájemce převádí na sebe.

Nájemce provizi NEPLATÍ!

V případě více zájemců, majitel bytu upřednostní nájemce bez domácích mazlíčků.

Pokud vás nabídka zaujala a máte vážný zájem o pronájem bytu, prosím, kontaktujte mě co nejdříve.
Cena:
23 000 CZK / za měsíc
Poznámka k ceně:
Upozornění:
Pronajímající si vyhrazuje právo vybrat nájemce na základě jím zvolených kritérií.
Mgr. Gabriela Malimánková, MBA
RE/MAX Alfa
Spálená 97/29
Praha 1 - Nové Město, 11000
Česká republika
Tel. na makléře: +420 777 250 124
Tel. do kanceláře: +420 296 240 400
E-mail: gabriela.malimankova@re-max.cz

Potřebujete poradit/máte zájem o prohlídku?

* – toto pole je nutné vyplnit

Podrobné informace

Číslo zakázky:
ID 205-NP12285
Dispozice:
2+kk
Číslo podlaží:
4
Počet podlaží v objektu:
6
Podlahová plocha:
70 m²
Druh objektu:
Cihlová
Stav objektu:
Velmi dobrý
Vlastnictví:
Osobní
Typ nemovitosti:
Byty
K nastěhování:
8. 12. 2025
Doprava:
Vlak, Dálnice, Silnice, MHD, Autobus
Elektřina:
230 V
Garáž:
Ano
Odpad:
Kanalizace
Užitná plocha:
61 m²
Zastavěná plocha:
367 m²
Plyn:
Plynovod
Telekomunikace:
Internet
Voda:
Dálkový rozvod
Vybaveno:
Ano
Výtah:
Ano
Energetická náročnost budovy:
C